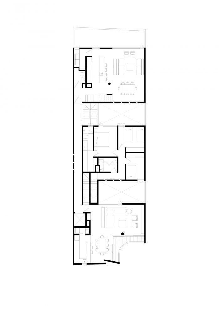
LC710建筑位于墨西哥城 "Colonia del Valle "中心的一个住宅区。该地块呈矩形,正面临街10米,纵深32米。
The building LC710 is located in a residential area in the center of ¨Colonia del Valle¨ in Mexico City. The site has a rectangular form, with a narrow front of 10 meters facing the street and 32 meters in depth.



这种比例和东西走向导致了一种构成方案,它由三个体量和三个 "Patios"/空隙交错而成。
This proportion and the east-west orientation resulted in a compositional scheme which parts from three volumes interleaved with three ¨Patios¨ /voids.

六个住房单元通过两种不同的类型构成了这些体积的内部。在前两个体量中,同样有四个单元,其中社会区域在第一个体量中,面向街道,私人区域在第二个体量中,在中间的 "Patios"/腔体中,与流通核心相连。
Six housing units make up the interior of these volumes through two different typologies. Within the first two volumes the same four units develop, in which the social area is on the first one facing the street and the private areas are on the second one, linked between the circulation core, evident in the intermediate ¨patios¨/voids.

这两个项目区之间的对角线连接使每个单元都能利用第一层的 "门厅 "和屋顶上的花园,因此每个单元都有自己的私人外部区域,与内部空间融合在一起。
The diagonal connection between these two program areas allows each unit to take advantage of the fist floor ¨patios¨ and the gardens on the rooftop, so that each unit has its own private exterior area that merges with the interior space.

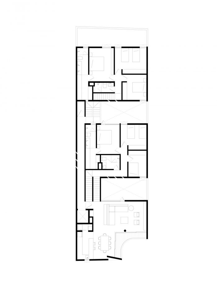
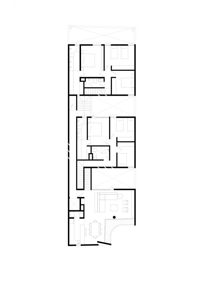
在第三个体量中,有两个不同的单元,每个单元由两个叠加层组成,也与外部空间融合在一起,形成一个更亲密和安静的氛围。
In the third volume two different units take part, each one consisting of two superimposed levels, that also merge with the exterior spaces in a more intimate and silent atmosphere.

所使用的两种材料是混凝土,带有彩色骨料和钢。在良好的老化和低维护方面都有发现。它们的使用不仅是为了提高它们的结构特点,也是为了通过它们的感官质量产生一个良好的氛围。
The two materials used are concrete, with a color aggregate, and steel. Finding in both good aging and low maintenance. Their use not only seeks to exalt their structural characteristics, but also to generate a good atmosphere through their sensorial qualities.




























Architects: Taller Héctor Barroso
Area : 960 m²
Year : 2018
Photographs :Rafael Gamo
Construction : Isaac Gindi
Structural Calculation : Ricardo Camacho
Installations : Tomás Rodríguez
Furniture : La Metropolitana
Landscape : Entorno. Taller de Paisaje
Author : Héctor Barroso
Design Team : Vianney Watine, Diego Rentería, Silene Rivera
City : Ciudad de México
Country : Mexico