该项目包括对巴塞罗那Les Corts社区的一所房子进行内部改革。这是一个有自己特色的地区,不遵循城市扩张的正交网格。这是一个具有方形平面的房子,它面向西方,有两个外墙,一个面向街道,另一个面向内部庭院。
The project consists of the interior reform of a house in the Barcelona neighborhood of Les Corts. It is a district with its own character that does not follow the orthogonal grid of the expansion of the city. It is a house with a square floor plan, it faces west and has two facades, one facing the street and the other facing the interior patio.


在干预之前,房子被一条长长的、黑暗的走廊分割成两个区域,使得自然光无法到达所有的房间,并在它们之间形成了一个分割。虽然有些房间享有大量的自然光,并能进入房子的连续阳台,但其他房间缺乏照明,通过建筑的内部天井通风,并通过走廊与房子的其他部分断开。
Before the intervention, the house was divided into two areas by a long, dark corridor, making it impossible for natural light to reach all the rooms and creating a division between them. While some enjoyed a lot of natural light and access to the continuous balcony of the house, the others lacked lighting, ventilated through the interior patio of the building and were disconnected from the rest of the house through a corridor.

整体改革项目包括通过有效的、明亮的和现代的分配方式对该房产进行重新估价。
The integral reform project consists of the revaluation of the property through an efficient, bright and contemporary distribution.



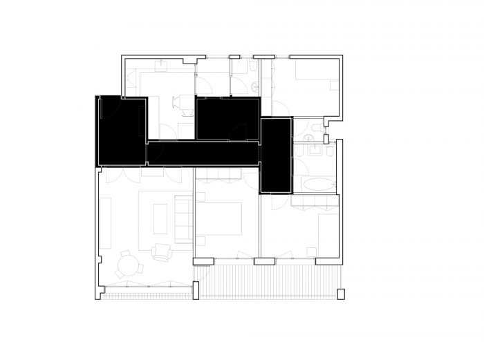
新的方案取消了旧的走廊,并提出了一个中央核心,分配空间并定义了房子的流通和视野,使其成为房子的核心。出于这个原因,该体量以其自身的象征性语言,以蜿蜒、凹槽和多彩的方式被具体化。它里面有一个厕所和部分厨房的储藏室。门与外部的凹槽完全融合,隐藏了它们的位置。
The new proposal eliminates the old corridor and proposes a central core that distributes the space and defines the circulation and views of the house, making it the heart of the house. For this reason, the volume is materialized with its own symbolic language, in a sinuous, fluted and colorful way. Inside it houses a toilet and part of the kitchen storage. The doors are fully integrated with the exterior fluting, hiding their position.


该项目包含了两个线性体量,以不同的方式服务于相邻的空间。一方面,我们发现一个线性壁橱,框住了通往房子的两个主要房间的通道,并为房子提供了一个普通的商店。另一方面,一个实心松木柜被设计在大厅里,将入口和厨房隔开,通过内部的窗户产生视觉连接。
The project incorporates two linear volumes that serve the adjoining spaces in different ways. On the one hand we find a linear closet that frames the access to the two main rooms of the house and provides the house with a general store. On the other hand, a solid pine wood cabinet is designed located in the hall that divides the entrance from the kitchen, generating visual connections through an interior window.
















Architects: Al.Irene Escudé y Aleix Gz Call
Area : 100 m²
Year : 2022
Manufacturers : Cocina
Lead Architects : Aleix Gonzalez, Irene Escudé
Builder : Filacxa Global SL
City : Barcelona
Country : Spain