Le Relais Boréale是位于蒙特利尔Mile-Ex社区的一个啤酒爱好者的聚会和品尝场所。这是Les Brasseurs du Nord公司的返乡之旅,它是魁北克省微型啤酒厂的先驱,35年前在该市酿造了第一批Boréale啤酒。他们希望将其循环方法移植到该项目中,因此请来了几个街区外的L'Abri团队,以设计一个突出生态责任和当地技术的独特场所。
Le Relais Boréale is a meeting and tasting place for beer lovers located in the Mile-Ex neighborhood of Montreal. This is a homecoming for Les Brasseurs du Nord, a pioneer of microbreweries in Quebec, which brewed its first Boréale beers in the city 35 years earlier. Wishful to transpose its circular approach into the project, they brought in L’Abri’s team, based a few blocks away, to design a unique venue highlighting eco-responsibility and local know-how.




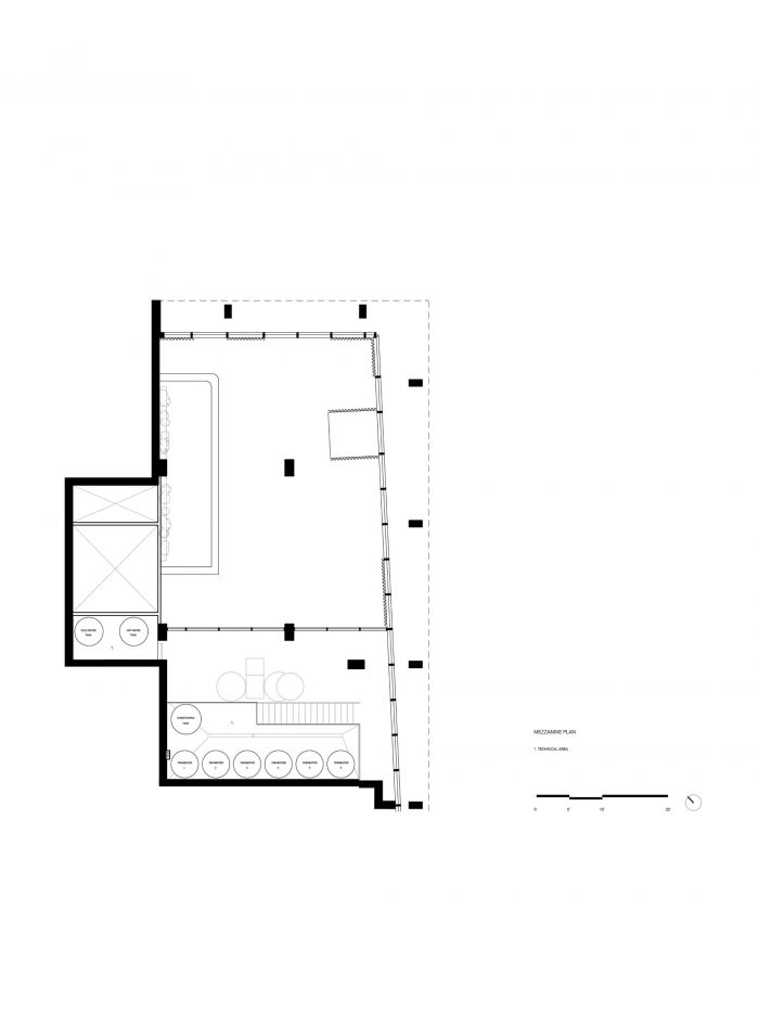
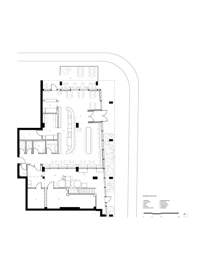
这家微型啤酒厂占据了Fabrik8建筑群中的一个角落,这是一座经过WELL认证的建筑。由L'Abri设计的项目允许将一个由混凝土和玻璃制成的商业套房改造成一个高效的酿酒室和一个可以容纳60人的温暖的餐厅。该布局通过在装有啤酒桶的冷室上方创建一个夹层,充分利用了双层高度的位置。不锈钢发酵罐位于顶部,在大型橡木框架的玻璃墙后面一览无余。这一策略优化了生产空间,突出了金属罐和日夜不停的酿造活动。
The microbrewery occupies a corner space within the Fabrik8 complex, a WELL-certified building. The project designed by L'Abri allowed the transformation of a commercial suite, made of concrete and glass, into an efficient brewhouse and a warm dining room that can accommodate 60 people. The layout takes advantage of the double-height location by creating a mezzanine above the cold chambers containing the beer barrels. The stainless-steel fermenters reside on top, in full view behind a large oak-framed glass wall. This strategy optimizes the production space and highlights the metal tanks and brewing activities day and night.

在品酒室的一侧,柜台的圆角软化了它的线条,并允许以一种友好和流畅的方式让顾客坐下。这个有16排水龙头的长吧台是进入酿酒厂的欢迎点。向酿造室走去,参观者发现了一张深蓝色的大桌子,这是Boréale的标志性颜色。在这个项目的核心,这个独特的家具通过唤起啤酒花园的传统,邀请人们见面和分享。一个户外露台将啤酒厂的活动延伸到街上。
On the tasting room side, the rounded corners of the counter soften its lines and allow to sit customers in a friendly and fluid way. This long bar with 16 rows of taps is the welcoming point when entering the brewery. Towards the brewing room, visitors discover a large dark blue table, the emblematic color of Boréale. At the heart of the project, this unique piece of furniture invites people to meet and share by evoking the tradition of Biergarten. An outdoor terrace extends the activities of the brewery to the street.


天然材料的使用,如本地木材、当地花岗岩和石灰石膏,以及柔和的灯光,有助于温暖餐厅的气氛。精选的大型植物,伴随着攀援的藤蔓墙,让人想起北方的森林,有助于创造一个有机的、人性化的社会环境。
The use of natural materials such as native wood, local granite, and lime plaster, as well as soft lighting, contribute to warming the atmosphere of the dining room. A selection of large plants, accompanied by a wall of climbing vines, recalls the boreal forest and helps to create an organic, human and social environment.


提出了一个对生态负责的方法,该微型酿酒厂与一家公司合作,从酿造残留物中回收废粮,将其转化为面粉,供当地面包店使用。酿酒罐和材料也是二手设备。设计尊重这种关注,并优先考虑本地制造和采购。L'Abri和Construction Modulor的设计-建造团队与附近的工匠们一起工作,他们在创造独特的家具和照明方面有着相同的价值观。
Putting forward an eco-responsible approach, the microbrewery has partnered with a company that recovers spent grains from brewing residues to transform them into flour for local bakeries. Brewing tanks and materials are also second-hand equipment. The design honors this concern and prioritizes local manufacturing and sourcing. The design-build team of L’Abri and Construction Modulor surrounded itself with artisans from the neighborhood who share the same values for creating unique furniture and lighting.


Botté工作室利用回收的元素创造发光的作品,它设计和制作的作品,除其他元素外,还重新利用了蒙特利尔市的旧灯柱圆顶和酒瓶。桌子和椅子是由木工Inat手工制作的作品。蓝色作品和户外长椅的木材来自Bois Public,这是一个从蒙特利尔被砍倒的白蜡树上回收和再利用木材的组织。最后,柜台的花岗岩来自离城市不到3小时的采石场。因此,Relais Boréale及其超本地的设计成为该地区新的本土旗舰。
Studio Botté, which creates luminous works from upcycled elements, designed and produced pieces that reuse, among other elements, old lamppost domes from the City of Montreal and liquor bottles. The tables and chairs are handmade creations by woodworker Inat. The wood for its blue pieces and the outdoor benches come from Bois Public, an organization that recovers and reuses wood from downed Montreal ash trees. Finally, the granite for the counters comes from a quarry less than 3 hours from the city. The Relais Boréale and its ultra-local design thus become a new homegrown flagship in the neighborhood.





Architects: Atelier l'Abri
Area : 750 m²
Year : 2022
Photographs :Raphaël Thibodeau
Construction : Modulor, Élément Bois, Mik Kukulsky, Marilou Pasquier, Julien Latour
Furniture : Inat
Lighting : Studio Botté, Flyss, Bois Public, Sistemalux, Planteca, Polycor, Céragrès, Ramacieri Soligo, House on the Rock, Bilodeau Inox, Atomic Soudure, LG2
Design : Jade Lachapelle, Pia Hocheneder, Nicolas Lapierre, Francis Martel Labrecque
City : Montreal
Country : Canada