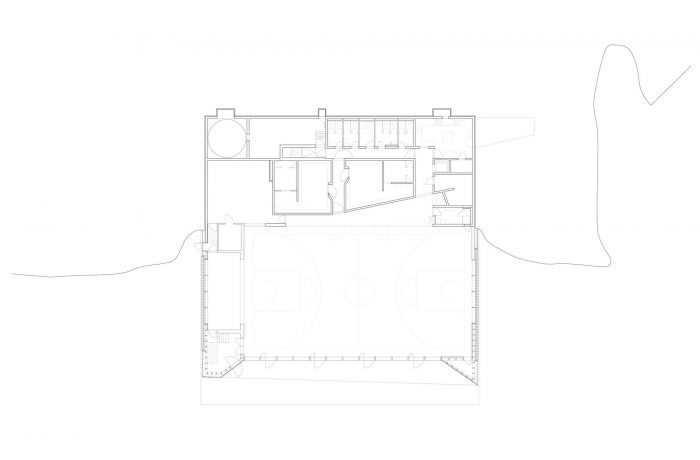
勒沃的新社区会堂是一个多用途的公共基础设施,旨在为整个村庄社区提供服务并将其聚集起来。它是体育活动、表演和社区活动的场所,补充了现有的学校设施,同时为村庄和周边社区开辟了新的可能性。礼堂的入口位于连接村里的教堂和学校入口的道路上,位置非常合适。
Le Vaud’s new community hall is a multipurpose public infrastructure designed to serve and bring together the entire village community. Hosting sports activities, shows, and community events, it supplements existing school facilities while opening up new possibilities for the village and its surrounding communities. The hall’s entrance is sited very appropriately on the road connecting the village church and the school entrance.



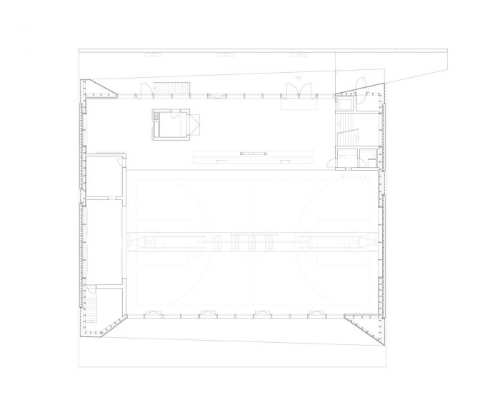
一个裸露的混凝土前院标志着场地的入口,这是一个由运动场、教堂墓地和现有学校操场接壤的连接点。以此为基线,建筑的透明结构顺着地势向下倾斜。在北面,可以看到汝拉山的山脊;在南面,这里可以看到勃朗峰和阿尔卑斯山的田园风光。两个坡屋顶的外墙是主要的承重墙,支撑着巨大的木梁。这使得内部空间完全不受阻碍:可以根据外墙的轮廓自由地扩展和收缩。
A forecourt of exposed concrete marks the venue’s entrance, a connecting link bordered by the sports field, the church cemetery and the existing schoolyard. With this baseline as its anchor, the building’s transparent structure follows the downward slope of the terrain. To the north, the ridges of the Jura Mountains can be seen; to the south, the site offers idyllic views over Mont Blanc and the Alpine landscape. The two gabled façades are the main load-bearing walls, supporting giant wooden beams. This leaves the internal space entirely unobstructed: free to expand and contract following the outline of the outer walls.



这座建筑有它自己非常独特的历史。2016年7月4日,在其开幕前一个月,它被大火完全摧毁。经过一段时间的恢复和哀悼,重建过程提供了一个机会来重新审视和进一步完善建筑的每一个细节。这场建筑灾难和它之后的重生,是即将出版的一本书和一个摄影项目的主题。
This building has its own very unique history. On 4 July 2016, one month before its opening, it was entirely destroyed by fire. Following an interval of recovery and mourning, the reconstruction process provided an opportunity to revisit and further refine every last detail of the construction. This architectural disaster and the rebirth that came after it, are the subject of a forthcoming book and a photographic project.








Architects: LOCALARCHITECTURE
Area: 1209 m²
Year: 2018
Photographs: Matthieu Gafsou
Wood Engineer:Ratio Bois Sàrl, Ecublens
Civil Engineer:2M ingéniérie civile SA, Yverdon-les-Bains
Cvs Engineer:Weinmann-Energies SA, Echallens
Lighting:Etienne Gillabert, Paris + Aebischer & Bovigny, Lausanne
Geometric Engineer:Bovard & Nickl SA, Nyon
City:Le Vaud
Country:Switzerland