二手衣服给人的印象是便宜和容易购买。许多产品种类繁多,彼此之间没有差距。所谓的 "复古",是经过一代又一代的精心传承。由于其历史背景和稀有性,它们的社会价值也在增加。
Used clothes give the image of being cheap and easy to buy. Many products are available in a wide variety with no gaps between them. What is called "vintage, has been carefully passed down from generation to generation. They have increased in social value due to their historical background and rarity.




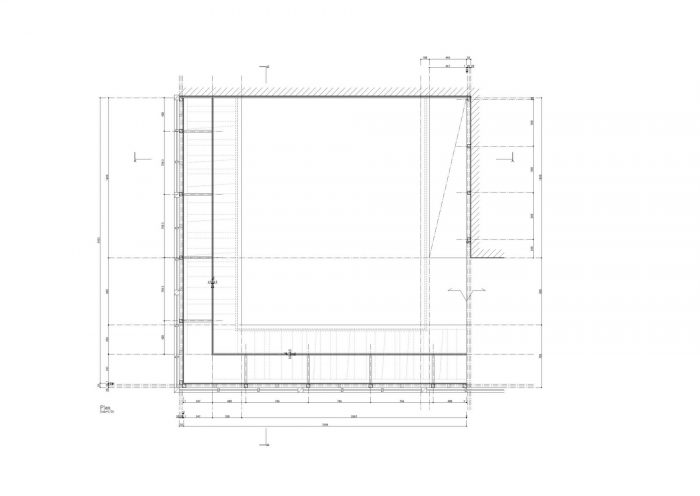
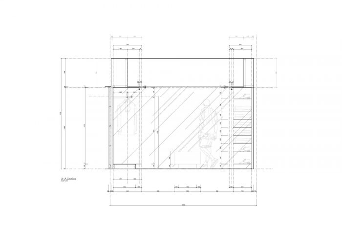
我认为,如果有一个只针对复古服装的空间,而不仅仅是二手衣服,那就很好。我们想创造一个只有产品漂浮的地方,并在一个展示柜里展示。我们的目标是创造一个人们可以进入展示柜并面对产品的地方。
I think it would be good to have a space just for vintage clothes, not just used clothes. We wanted to create a place where only the products float and are displayed in a showcase. We aimed to create a place where people could enter the showcase and face the products.


衣服将被视为一个更可持续的实体,被小心翼翼地传递,而不仅仅是穿出去。我希望它将是这样一个地方,我们可以重新发现价值和价值感。
Clothing will be treated as a more sustainable entity by being passed on carefully, not just worn out. I hope it will be such a place where we can rediscover the value and sense of value.

















Architects: TEKI Design
Area : 23 m²
Year : 2022
Photographs :Tatsuya Tabii
Manufacturers : KAMO CRAFT
Construction : KPW
Architect : Tatsuya Nishinaga
Clients : FIONEER
Hardware : KAMO CRAFT
City : Hiroshima
Country : Japan