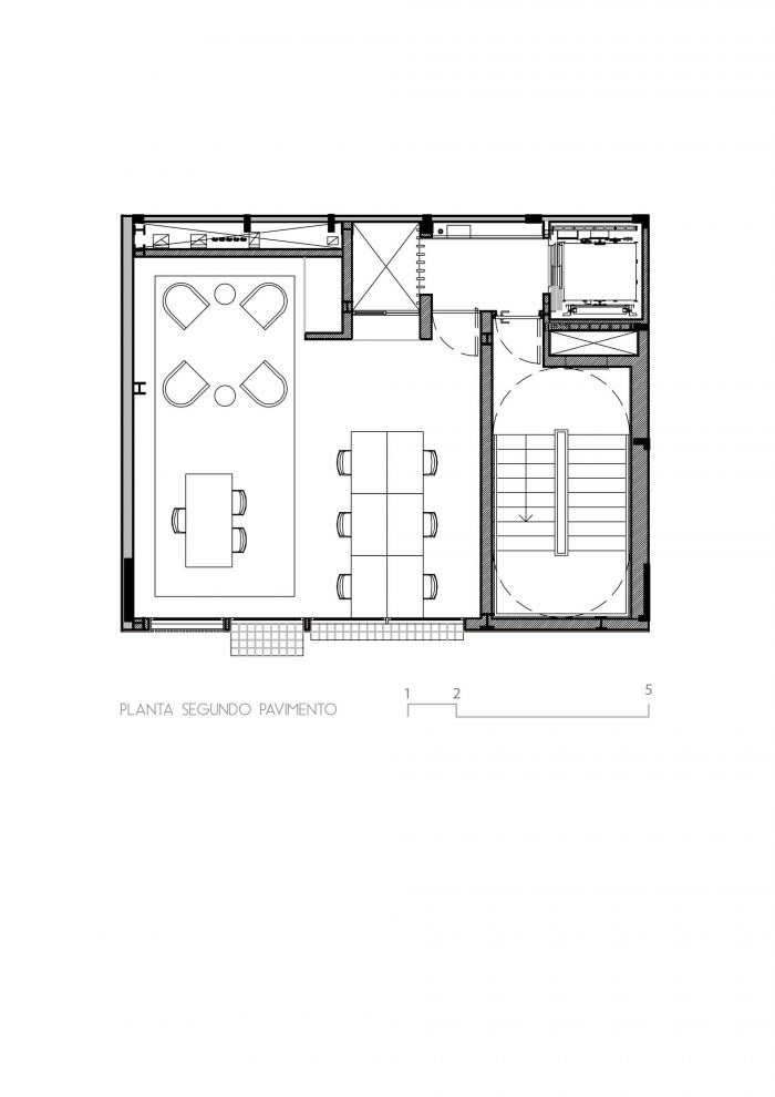
该项目位于Leblon的主要街道之一,其特点是采用了不同质地的调色板,为公司大楼带来了轻快和舒适的氛围。石板砖的地板被应用在底层,而在其他楼层,同样的石板以规则的瓷砖出现在工作间、走廊和服务区。
Located in one of the main streets of Leblon, this project is characterized by a color palette applied in different textures, bringing together a light and cozy atmosphere to the corporate building. The floor in slate tiles was applied on the ground floor, while on the other storeys the same slate appears in regular tiles, in the working rooms, hallways and services.



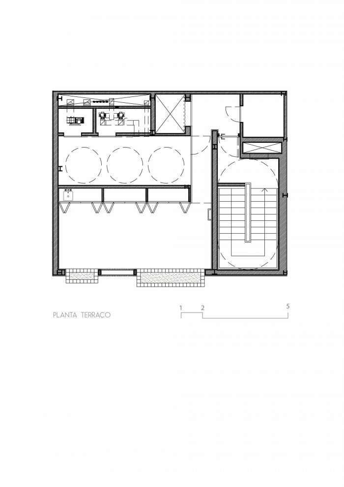
不规则的石板地板再次出现在屋顶上,屋顶上有一个日光浴室,可以看到城市的全景。在建筑内部,一个小轴为走廊和办公室提供照明,同时允许交叉通风,并在底层创造一个封闭的花园。它的外墙,强大而简单,从邻居中脱颖而出,但又不至于让人感到压抑:铝板条和玻璃,白色混凝土和瓷砖的花园。
The irregular slate flooring appears again on the rooftop, which holds a solarium with a panoramic view on the city. Inside the building a little shaft brings illumination to the hallways and the offices, besides allowing cross ventilation and creates an enclosed garden on the ground floor. Its facade, strong and simple stands out from the neighbors without being overwhelming: slatted aluminum and glass, white concrete and tiled gardeners.



这些都是这个项目的强大特点,突出的体量,除了给人以运动感,也打破了外墙的节奏;携带着巴西艺术家Adriana Varejão的杰作,名为 "panacea fantástica"。该项目加强了 "卡里奥卡 "的特点,回顾了现代主义建筑的典型面板,该项目向城市提供了这个杰作。
These are the strong features of this project, the projecting volumes, besides giving movement e breaking the rhythm of the facade; carry the masterpiece of the Brazilian artist Adriana Varejão, named “panacea fantástica”. Reinforcing the “carioca” character of the project, harking back to modernist buildings with their typical panels, this project offers this masterpiece to the city.

























Architects: Felipe Hess Arquitetos
Area : 400 m²
Year : 2017
Photographs :Fran Parente
Manufacturers : Arte Maior, Cia de Iluminação, Deca, Italit, Marvelar, Tresuno
City:LEBLON
Country:Brazil