剧院 "靠边站"。该建筑在定义公共空间和使Deinze的遗产重新可见方面发挥了关键作用。在竞争阶段,TRANS V+向客户提出了一个替代场地。此举创造了一个大公园,一直延伸到莱伊河。
The Leietheater ‘takes a step aside’. The building plays a key role in defining the public space and making the heritage of Deinze visible again. TRANS V+ proposed an alternative site to the client during the competition phase. This move creates a large park that extends as far as the River Leie.



此外,剧院被放置在重要的视线轴上,从而使其在城市中出现。漂移到旧Leiearm的开放空间的Deinze en de Leiestreek博物馆被框定,再次成为Deinze的文化中心。
In addition, the theatre was placed on important sight axes and was thus made present in the city. The Museum van Deinze en de Leiestreek, which had drifted into the open space of the old Leiearm, is framed and is once again the cultural heart of Deinze.

该公园由Marie-Josée van Hee建筑师设计,将行政中心沿线的剧院(由Tony Fretton建筑师设计)与Leiebocht的中心广场连接起来。这里也是Stedelijke学院的所在地,这里是培养年轻人才的地方,也有可能是他们重返雷伊波赫特剧院舞台的地方。
The park was designed by Marie-Josée van Hee architecten and connects the theatre along the Administrative Centre, designed by Tony Fretton architects, with the centre square on the Leiebocht. This is also where the Stedelijke Academie appears, a place where young talent is trained and possibly finds their way back to the stage in the Leietheater.



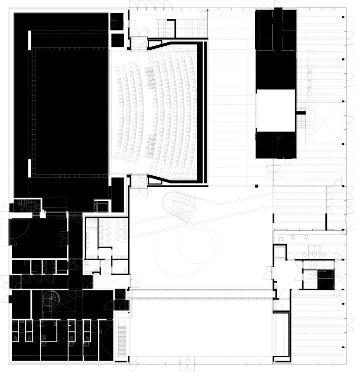
在一个正方形的平面图中,方案组件围绕着一个带有巨大天窗的中央门厅布置。门厅可以通过推开多功能厅的隔墙来扩展。博物馆就在图中。在拐角处有一个咖啡馆,该建筑激活了公共领域,否则,在剧院开放后,在城市动态中就会出现不必要的麻烦。
In a square floor plan, the programme components are arranged around a central foyer with a monumental skylight. The foyer can be expanded by sliding the partition wall with the multifunctional hall away. The museum is in the picture. With a café on the corner, the building activates the public domain in a place where otherwise, after the opening hours of the theatre, a pauze would arise in the urban dynamic.

大礼堂与剧场塔楼赋予建筑一个特有的轮廓。砖砌的衣服是由釉面和亚光的白色石头组成的图案,铺设在卷宗的堆叠上,根据天气情况,灯光会柔和或明亮。向埃米尔-克劳斯做出无声的手势。
The large auditorium with its theatre tower gives the building a characteristic silhouette. The brick dress is made up of glazed and matt white stones in a pattern that is laid over the stack of volumes and, depending on the weather conditions, lights up softly or brightly. A silent gesture to Emiel Claus.











建筑师: TRANS architectuur I stedenbouw, V+
面积: 3500 m²
年份:2020年
摄影:Stijn Bollaert
结构:Ney & partners
技术:博伊登斯研究局
声学:Daidalos Peutz
剧院设备:Theateradvies
城市:Deinze
国家:比利时
Architects: TRANS architectuur I stedenbouw, V+
Area: 3500 m²
Year: 2020
Photographs: Stijn Bollaert
Structure:Ney & partners
Techniques:Studiebureau Boydens
Acoustics:Daidalos Peutz
Theatre Equipment:Theateradvies
City:Deinze
Country:Belgium