Arti设计工作室与Studio Laurencia合作,对位于南雅加达Senopati的亚洲融合餐厅Lei Lo进行了改造。在这个项目中,建筑师使用透明设计重新思考顾客的旅程。
Arti Design Studio, in collaboration with Studio Laurencia, has renovated Lei Lo, an Asian fusion restaurant located in Senopati, South Jakarta. In this project, the architects rethink customer journey using transparency design.




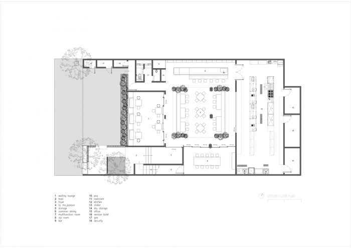
长长的入口通道向顾客介绍了亚洲融合的概念,从它的一些元素开始:木头和黄铜挂毯。在这里,顾客可以看到并感受到雷洛内部的世界。n除了作为过渡,这个区域还可以作为一个等待区(有木质的舒适座椅和站立的桌子来放置咖啡)和雅加达的避风港,无论是烈日还是暴雨。一排花盆内长着长长的草,保护建筑免受雨季偶尔的洪水侵袭。这些植物还可以作为从餐饮区到停车场的景观缓冲区。
The long entrance pathway introduces the customers to Asian fusion concept, starting with a few of its elements: wood and brass tapestry. Here, the customer get a glimpse and a feel to the world inside Lei Lo. nAside from serving as a transition, the area acts as a waiting area (with wooden seats for comfort and standing tables to place coffee) and a shelter from Jakarta’s weathers, be it scorching sun or heavy rainfall. A touch of nature, long grass grows inside a row of planter pots which protects the building from the occasional rainy season floods. The plants also acts as view buffer from dining to parking area.

说到亚洲这个词,一般来说,大众都会想到红灯笼等装饰品。Arti Design Studio没有随波逐流,而是深挖根源,研究到具体的材料。深色的木头和石材的结合,让整个餐厅不仅看起来很亚洲,更有家的感觉。这给人留下了更深的印象。
When it comes to the word Asian, generally, the masses think of ornaments, such as red lanterns. Instead of going with it, Arti Design Studio dig deeper to the roots, researching down to the specific materials. The combination of dark wood and stone makes the entire restaurant feels homy, not only looks Asian. This leaves a deeper impression.

观察顾客的行为,顾客一进门就会选择最好的位置--视野最好的位置。然而,现有的位置被认为是不理想的,因为它面临着停车场和晒太阳的雅加达热。因此,建筑师设计了缓冲区(黄铜挂毯结构和花盆),从而产生了吸引人的景观和独特的阴影游戏。从商业的角度来看,这个设计提高了产能效率。
Observing customer behavior, upon entering the room, the customers would choose the best seat—the one with the best view. However, the existing spot were deemed undesirable as it faces parking area and basks in Jakarta sun heat. For that reason, the architects design buffers (brass tapestry structure and planter box) hence resulted in attractive view and unique shadow play. Seeing from business point of view, the design increases capacity efficiency.

贵宾室既隐蔽又活泼。藤制的门,让穿着贵宾服的人可以从餐厅的另一边看到人影的动作,给顾客一种私密性和归属感。Arti设计工作室确保其设计能给人最好的体验。除了给人以自然的触感,围绕着餐桌的花盆也是服务员经过时的视线缓冲区。这些植物还将服务站隐藏在蓝色盒子后面。这样一来,顾客的体验就不会受到服务场景的干扰。
The VIP room was secluded yet lively. Its rattan door allows the VIP costumers to see the silhouette movements from the other side of the restaurant, giving the customers a sense of privacy and belonging at the same time. Arti Design Studio makes sure its design gives the best experience. Aside from giving touches of nature, planter boxes that surround the tables also acts as view buffers to the waiters passing by. The plants also hide service station behind the blue box. This way, the customers’ experience won’t be disturbed by the service scenes.


装修中要解决的问题之一是现有的层高。为了营造出更高的错觉,建筑师设计了开放式的广场,用方块来隐藏空调和排气管。这些方块与外面的黄铜挂毯和里面的瓷砖是重复的。它的整体凝聚力有助于创造一个强大的视觉品牌形象,让顾客记忆深刻。
One of the problems to tackle in the renovation is the existing floor to floor height. To create a taller illusion, the architects designed open plafond with squares to hide air conditioner and exhaust. These squares are repetitions from the brass tapestry outside and ceramic tiles inside. Its overall cohesiveness helps create a strong visual brand identity that is memorable for the customers.











建筑师:Arti Design Studio
面积:480 m²
年份:2020年
摄影:Jonathan Raditya
厂家:Toto, Mulia Ceramic, mulia glass
负责建筑师:Raynaldo Theodore
设计团队:Natasha Astari
室内设计:Studio Laurencia, Ethelind Laurensia
照明顾问:Erre Luce
结构工程师:Unika Cipta
承包商:PT. Sukses Dekorindo Semesta
城市:雅加达
国家:印度尼西亚
Architects: Arti Design Studio
Area: 480 m²
Year: 2020
Photographs: Jonathan Raditya
Manufacturers: Toto, Mulia Ceramic, mulia glass
Architect In Charge:Raynaldo Theodore
Design Team:Natasha Astari
Interior Design:Studio Laurencia, Ethelind Laurensia
Lighting Consultants:Erre Luce
Structure Engineer:Unika Cipta
Contractor:PT. Sukses Dekorindo Semesta
City:Jakarta
Country:Indonesia