在一个以塞纳河谷的山坡为背景的非凡场地上,这所新学校附属于诺曼底村(法国)的Heudebouville。一片林立的乡间风景。从这个地方的历史中,学校借用了材料和形态:市中心的半木结构房屋的木材用于玻璃框架和框架;钟楼和市政厅的石板用于覆盖和保护外墙和屋顶。
On a remarkable site whose backdrop is the hillsides of the Seine Valley, this new school is attached to the Norman village of Heudebouville (France). A landscape of the wooded countryside. From the history of the place, the school borrows materials and morphology: the wood of the half-timbered houses of the city center for the glazed frames and the framework; the slate of the bell tower and the town hall to clad and protect the facades and the roof.



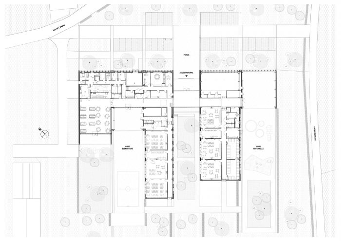
场地上的房屋和农场建筑的形态被重新解释,产生了大型的当代longères(longère是一个狭长的住宅的名字,沿着其山顶的轴线发展,通常由农民和工匠居住,是法国西北部布列塔尼和诺曼底地区的典型)。场地的地理环境决定了工程的植入,房屋根据土地的轮廓插入,并尊重自然土壤。这些准则划定了操场的范围,吸引了果园,并成为收集整个场地的雨水的山谷,为下面的一个景观盆地提供水源。
The morphology of the houses and farm buildings on the site is reinterpreted, giving rise to large contemporary longères (longère is the name for a long, narrow dwelling, developing along the axis of its peak, typically inhabited by farmers and artisans and typical of the regions of Brittany and Normandy in northwestern France). The geography of the site orders the implantation of the work, the houses inserted according to the contours of the land, and respect for the natural soil. These guidelines delimit the playgrounds, draw orchards and become valleys collecting rainwater from the entire site to feed a landscaped basin below.



预测未来。这种分层组织预计了村庄的计划增长和学校的未来扩展,每个家庭都有机会扩展。在尊重原有布局的同时,教室可以增加,食堂、庭院和院子可以扩展,设备可以容纳更多的学生和用户。在这方面,网络和消防安全系统已经考虑到了这种可能的增长。
Anticipating the future. This layered organization anticipates the planned growth of the village and the future expansion of the school, with each household having the opportunity to expand. While respecting the original layout, classrooms can be added, the canteen, courtyards, and yards can be extended and the equipment can accommodate more students and users. In this respect, the networks and fire safety systems already take this possible growth into account.

门廊的结构系统,由于完全没有中间的支承点,允许这种未来的演变和房舍的完全模块化。外墙和屋顶是由现场外预装的模块组成的,结合了气密/水密、绝缘和结构。5x2米的模块是与木匠一起在三维空间中开发的,这使得施工时间得到了控制。
The structural system in porticos, by the total absence of an intermediate bearing point, allows this future evolution and complete modularity of the premises. The facades and the roof are made up of modules pre-assembled off-site, combining air/water tightness, insulation, and structure. The 5x2 m pieces, developed in 3D with the carpenter, have allowed managing the construction time.


碳足迹。学校的建设是减少碳足迹的过程的一部分。木材和石板的使用,光伏板的整合,以及设备加热不消耗化石燃料,使其有可能达到雄心勃勃的E3C2和BEPOS水平。最后,该基地完全由当地材料和在该地区建立的公司建造。
Carbon footprint. The construction of the school is part of a process to reduce its carbon footprint. The use of wood and slate, the integration of photovoltaic panels, and the absence of fossil fuel consumption for the heating of the equipment make it possible to reach the ambitious E3C2 and BEPOS levels. Finally, the site was entirely built with local materials and companies established in the region.





















Architects: HEMAA Architectes, Hesters Oyon
Area : 1500 m²
Year : 2022
Photographs :Sergio Grazia
Manufacturers : Cupa Pizarras
Technical Design : BETEM
Acoustician : Impedance
Project Management Assistance : CICLOP
Amount Of The Works : 4.5 M€
Performance Levels : BEPOS - E3C2
Client : City of Heudebouville
Scheduling, Supervision And Coordination : Tempo
City : Heudebouville
Country : France