你如何在一个多房间的大公寓中创造一个开放的空间,使房间之间不必有门,因为客户希望尽可能少,但你仍然觉得房间是分开的?我们试图清理整个空间,利用公寓现有的结构和技术参数。带有肋骨的钢筋混凝土天花板结构也被暴露出来。这给了公寓一个更原始的特征。
How do you create one open space out of a large multi-room apartment so that there doesn't have to be a door between rooms because the client wanted as few as possible, but you still felt like the rooms were separated? We tried to clean the whole space, to use the existing structural and technical parameters of the apartment. The reinforced concrete ceiling structure with ribs was also exposed. This gave the apartment a rawer character.



这个概念的支持性主题是地板的选择,它应该是整个公寓的统一,包括在浴室和淋浴空间。其中一个选择是水磨石地板,但经过静态分析,客户和我决定采用拉丝混凝土砂浆。
The supporting theme of the concept was the choice of flooring, which was supposed to be uniform throughout the apartment, including in the bathrooms and shower spaces. One of the options was a terrazzo floor but after a static analysis, the client and I decided on a brushed concrete screed.



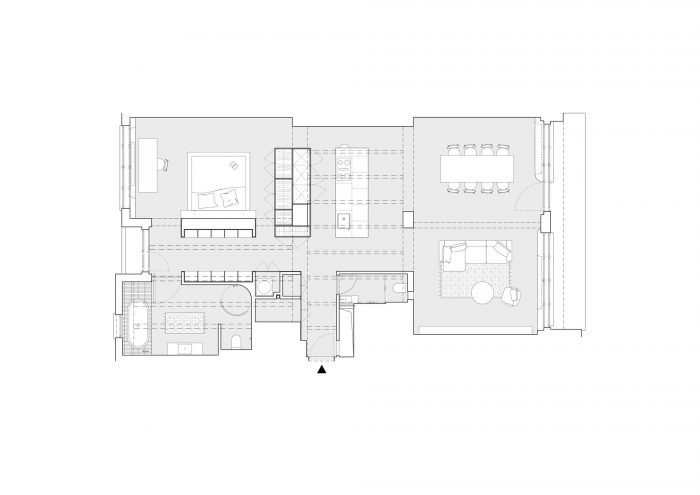
概念的第二个主题是在开放空间中插入 "盒子",这样房间之间就被分开了,同时也以这种方式将公寓的私人部分与住宅部分分开。插入的盒子是由不同的材料和结构制成的。空间的主要分隔元素是一个绿色的扇形盒子,它隐藏了厨房的一部分,包括冰箱、洗碗机或内置烤箱,卧室的衣柜或在入口处服务的壁橱。客户希望门越少越好。
The second theme of the concept is the insertion of "boxes" into the open space, so that the rooms are separated from each other, and also in this way the private part of the apartment is separated from the residential part. The inserted boxes are made of different materials and structures. The main dividing element of the space is a green scalloped box that hides a part of the kitchen with a fridge, dishwasher or built-in oven, wardrobes in the bedroom or also a closet that serves at the entrance. The client wanted as few doors as possible.


在入口处有一个小杂物间和两个内置衣柜。一个嵌入在深色镶板中,转角处是一个图书馆。另一个位于一个绿色的盒子里。中央空间是厨房,有一个衬有镀铜板的岛。这有一个坚实的混凝土台面。岛的台面有巧妙地隐藏的开口,用于生物垃圾分拣机等东西。卧室位于绿盒子的后面。它有三个入口。床头板使用现有的巨大烟囱作为隔断。在主浴室和卧室之间有一个通透的图书馆。
At the entrance there is a small utility room and two built-in wardrobes. One is recessed in a dark panelling that goes around the corner into a library. The other is located in a green box. The central space is the kitchen with an island lined with patinated brass panels. This has a solid concrete countertop. The island's countertop surface has cleverly hidden openings for things like bio-waste sorter. The bedroom is located behind the green box. It has three entrances. The headboard uses the existing massive chimney as a divider. There is a pass-through library between the master bathroom and the bedroom.


公寓的另一半没有任何分割或隔断。这里有一个带生活区的餐厅的空间。在这一半的公寓里还有一个小浴室,里面有一个供访客使用的厕所。浴室的入口在公寓的前庭。
The other half of the apartment is without any divisions or partitions. There is space for a dining room with a living area. In this half of the apartment is also a small bathroom where is a toilet for visitors. The entrance to the bathroom is at the vestibule of the apartment.

由于公寓中使用的许多材料的相互联系,大部分隔断被拆除后形成的景观有时令人惊讶。
The views that were created after most of the partitions were removed are sometimes surprising, due to the interconnection of so many materials used in the apartment.









Architects: Markéta Bromová
Area : 97 m²
Year : 2022
Photographs :Veronika Raffajová
Manufacturers : ABB, Brother & Duck, Delta Light, Maimana, Monobrand, WATEREVOLUTION, Winckelmans, Zangra
Design Team : Dominika Galandová
Program / Use / Building Function : Apartment
City : Praha 7
Country : Czech Republic