与未来相连的房屋。在民用建筑是向大气层排放二氧化碳的主要责任者之一的情况下,有必要投资于新的设计和建筑方式。
A House Connected to the Future. In a scenario where civil construction is one of the main responsible for CO2 emissions into the atmosphere, it is necessary to invest in new ways of designing and building.


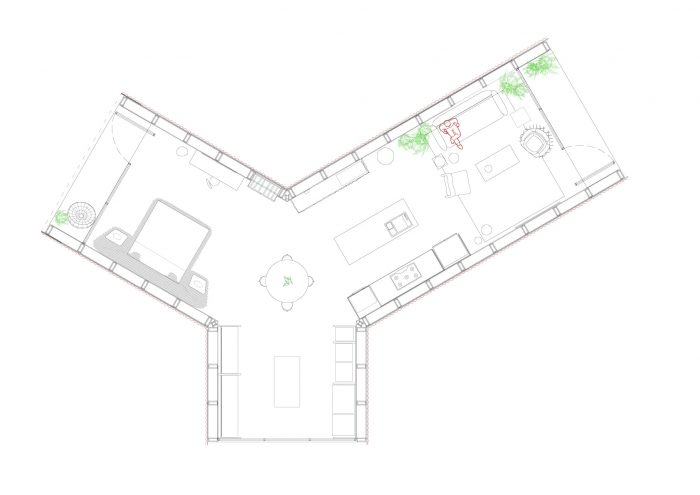
LG ThinQ House是一个开源的数字制造项目,旨在从全球合作平台wikihouse中传播一种可持续的建筑方法。从建筑系统的可用性来看,可以开发各种形式,适应不同的项目需求。一个与新技术相连接的房子,由海军松胶合板建造,在数控机床上加工,只由配件组装。有三条轴线的门廊由一个连接器模块衔接,并覆盖着预制的木板,组装墙壁和天花板。
LG ThinQ House is an open-source digital fabrication project that seeks to disseminate a sustainable construction method from a global collaboration platform, the wikihouse. From the availability of the construction system, it is possible to develop a variety of forms, adaptable to different project demands. A house connected with new technologies, built from naval pine plywood sheets, machined on a CNC machine and assembled only by fittings. There are three axes of porticoes articulated by a connector module and covered with prefabricated wooden boards that assemble walls and ceiling.

这是一项干净、无浪费、有组织和高效的工作。占地100平方米的外部结构(门廊和木质围墙)只用了10天就组装完毕。传统的混凝土建筑每使用一吨混凝土就会向大气排放一吨二氧化碳,而木结构建筑则以同样的比例封存二氧化碳。
A clean, waste-free, organized and efficient work. The external structure (porticos and wooden enclosures) that occupies an area of 100 m² was assembled in just 10 days. While traditional concrete buildings emit 1 ton of CO2 into the atmosphere for every ton of concrete, wood construction sequesters carbon dioxide in the same proportion.

外部结构覆盖着防水的植物纤维瓦,这是一种轻型屋顶,由回收的纸张制成。在房子的内部,木板的完成带来了舒适和优雅,是巴西设计家具的组合,构成了空间,并有Guto Requena选择的艺术品,来自Galeria Nara Roesler的丰富收藏。
The external structure is covered with waterproofed vegetable fiber tiles, a type of light roof, made from recycled paper. Inside the House, the wooden slabs make the finish bringing comfort and elegance and are the setting for the mix of Brazilian design furniture that make up the space with works of art selected by Guto Requena, from the rich collection of Galeria Nara Roesler.

室内包括一个客厅、餐厅、厨房、卧室、两个阳台和LG展厅。所有的材料和饰面都被设计成产生最小的不可回收的废物。不锈钢厨房是专门为LG ThinQ之家设计的,它允许一个符合法律卫生要求的光滑表面,使用的不锈钢因其高性能、耐用性和完全可回收而脱颖而出。
The interior comprises a living room, dining room, kitchen, bedroom, two balconies and LG showroom. All materials and finishes were designed to generate minimal non-recyclable waste. The Stainless Steel Kitchen was designed especially for the LG ThinQ House, which allows for a smooth surface that meets legal hygiene requirements, using stainless steel that stands out for its high performance, durability and for being fully recyclable.

由Guto Requena策划的家具和物品,除了经典作品外,还试图展示巴西设计的新兴名字,如Jorge Zalszupin、Pax.Arq、Estúdio Rain by Breton、Daniel Jorge、Karol Suguikawa、Humberto da Mata。
Lucas Neves, Marcelo Ligieri, Inês Schertel, Alva Design and Maria Cândida Machado (Dpot). 在家具中,一些产品是由Estúdio Guto Requena设计的,如Alma灯、Nóize椅、Delírios扶手椅、Era Uma Vez和Love Project花瓶。除了推出未发表的作品Buffet Atração、Cama Sonhadora和HeartWall,两者都是通过参数化编程进行数字化设计,并在CNC中制造,其语言与房子的结构相似。
The curatorship of furniture and objects by Guto Requena seeks to present ascendant names of Brazilian design, in addition to classics, such as Jorge Zalszupin, Pax.Arq, Estúdio Rain by Breton, Daniel Jorge, Karol Suguikawa, Humberto da Mata,
Lucas Neves, Marcelo Ligieri, Inês Schertel, Alva Design and Maria Cândida Machado (Dpot). Among the furniture, some of the products are designed by Estúdio Guto Requena, such as the Alma lamp, the Nóize chair, the Delírios armchair, Era Uma Vez and Love Project vases. In addition to the launch of the unpublished pieces Buffet Atração, Cama Sonhadora and the HeartWall, both digitally designed through parametric programming and manufactured in CNC, in a language similar to the structure of the house.


木材、原创家具和浅色饰面的选择提供了一个温暖、诱人和内省的氛围。展厅环境因其沉浸在LG的主色调中而脱颖而出,突出了品牌体验。每个家庭都通过LG ThinQ技术实现的智能自动化系统相互连接,产品将设计、人工智能、可持续性和健康护理结合起来,提出了一种新的生活方式和居住互动方式。
The choice of wood, original furniture and light finishes provides a warm, inviting and introspective atmosphere. The showroom environment stands out for its immersion in LG's main color, highlighting the brand experience. Every home is interconnected by an intelligent automation system made possible by LG ThinQ technology, with products that align design, artificial intelligence, sustainability and health care, proposing a new way of living and interacting with inhabiting.


设计、艺术和技术在 "互联之家 "的建设中被整合。一个可持续发展的未来的可能选择。
Design, art and technology are integrated in the construction of a Connected House. A possible alternative for a sustainable future.





Architects: Estudio Guto Requena, PAX.ARQ
Area : 100 m²
Year : 2021
Photographs :Fran Parente, Pedro Urizzi
Manufacturers : Cosentino, Guardian Glass, +55 Design, ALARMBR, Alva Design, Arbol Arts, Arte e Leitura, Bertolucci Iluminação, Braston, Breton, Bunker Design, By Kamy, City Design, Codex Home, Confortomax, Deca, Do Barro Atêlier, Dpot Brasil, Dpot Objetos, Duratex
Structure Calculations : Carpinteria Estrutura
Lighting Project : Foco Luz e Desenho
Civil Works : lock engenharia
Interior Project : Estudio Guto Requena
Landscaping Project : Monica Costa
Creative Direction : Guto Requena
Local Operations Architects : Ludovica Leone
Finances : Sérgio Sá
Project Coordination : Monique Tavares, Thatiana Pacheco
Architecture Team : Mateus Fraga, João Vargas, Rodolfo Torres, Priscila Sati
Junior Architect : Breno Sá Leitão
Intern : Damany Santos
Communications : Thalissa Bechelli
Communication Designer : Paulo Paiva
Products : Ian Diesendruck
Architecture : Orion Campos
Product Designer : Bernardo Yono, Jasmim Caparroz
Product Team : Heitor Espindola
Coordinator : Camila Gonçalves
Computer : Bruno Aricó
Team : Victor Paixão, Paula Sertório, Raphael Nogueira, Ana Carolina Scarpitti
Assembly Construction : Crosslam Brasil
City : São Paulo
Country : Brazil