Studioninedots将住房公司Lieven de Key在阿姆斯特丹的现有办公室改造成一个可持续的、面向未来的总部。该公司的两个分支机构被有效地合并到位于Hoogte Kadijk的现有建筑中,另外还在另一个办公室的位置上为新的社会住房创造了空间。Lieven de Key的新总部在英国建筑性能评估体系中的使用等级为优秀。
Studioninedots transformed the existing office of housing corporation Lieven de Key in Amsterdam into a sustainable and future-proof headquarters. The corporation's two branches were efficiently merged into the existing building on the Hoogte Kadijk, additionally creating space for new social housing on the site of the other office. Lieven de Key's new head office has a BREEAM In-Use rating of Excellent.




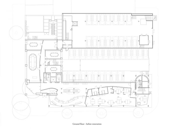
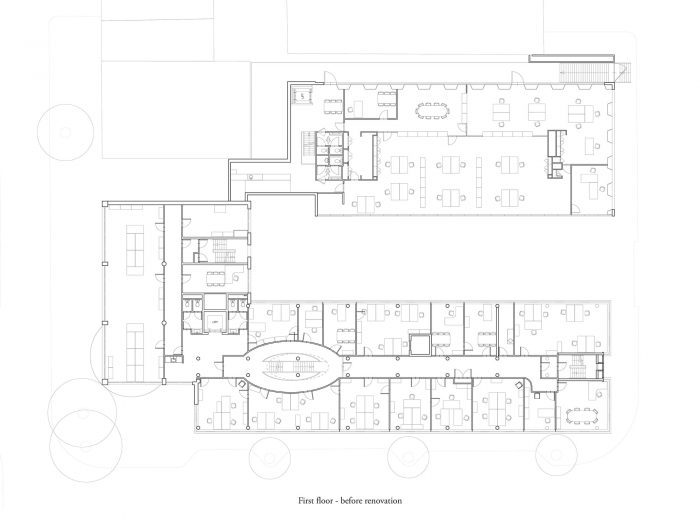
原有办公楼陈旧的内部结构已经尽可能地让位于一个透明和令人惊讶的办公环境,这符合Lieven de Key的现代雄心。新创造的空间为自发的互动和事件提供了空间,并在功能上进行了开放性的解释。灵活的办公概念、自然材料、丰富的日光和建筑周围及内部的大量绿色植物为住房协会的未来做好了准备。
The outdated interior of the original office buildings has made way as much as possible for a transparent and surprising office environment, in line with Lieven de Key's modern ambitions. The newly created spaces provide room for spontaneous interactions and happenings, and are subject to an open interpretation in terms of function. The flexible office concept, natural materials, an abundance of daylight and the plenty of greenery introduced around and in the building prepare the housing association for the future.

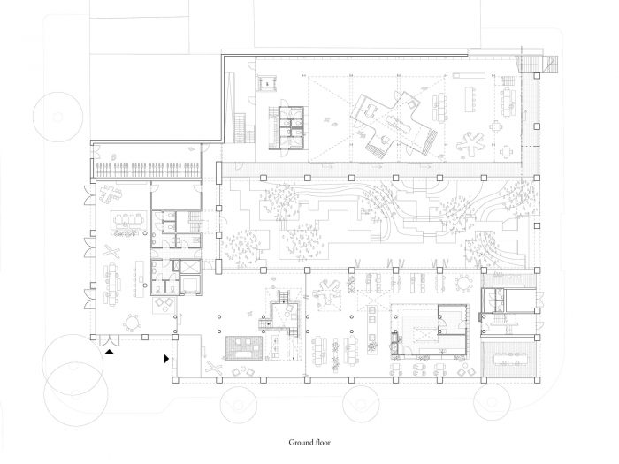
新的外墙的特点是混凝土结构,它像一条带子把原来的建筑连接在一起,使总部有一个强大的存在。连续的窗户建立了内部世界和街道之间的联系。在建筑中心的大空间里有一个绿色的中庭,四周充斥着自然光。
The new facades are characterised by the concrete structure that binds original buildings together like a ribbon, giving the headquarters a powerful presence. The continuous windows establish connection between the inner world and the street. In the large space at the heart of the building lies a green atrium flooded with natural light all around.

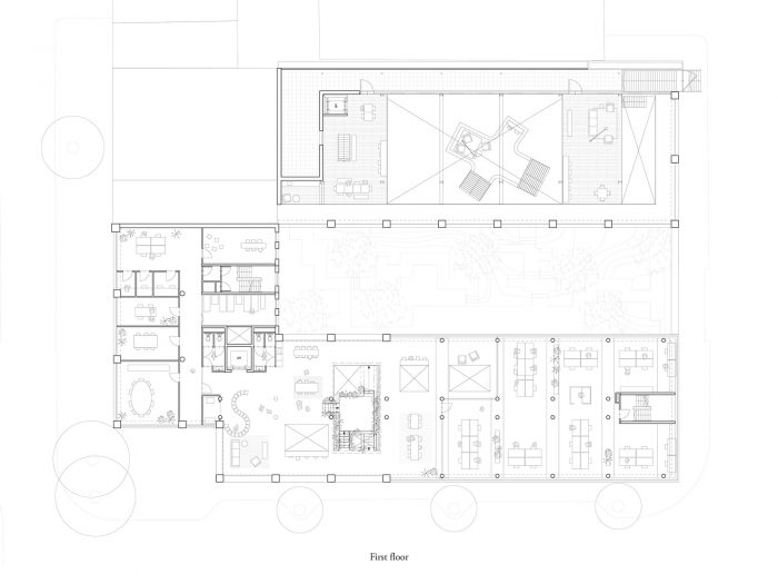
"连接的概念指导着设计:连接现有的建筑,连接人和连接邻里"。Studioninedots设计的出发点是连接的主题--人的连接、现有建筑的连接和与邻里的连接。将三座原有建筑连接在一起,使我们有机会创造一个完全开放的底层,一个具有激励性的联合会议和非正式互动空间的动态景观。灵活的工作空间不仅为不同的项目和用户提供了便利,而且通过在同一建筑物内容纳更多的人而促进了效率。
"The concept of connection guides the design: connecting the existing buildings, connecting people and connecting with the neighbourhood." Studioninedots’ starting point for the design was the theme of connection – of people, of the existing buildings and with the neighbourhood. Linking the three original buildings together gave us the opportunity to create a fully opened ground floor, a dynamic landscape with inspiring spaces for joint meetings and informal interactions. The flexible workspaces not only facilitate diverse programmes and users, but promote efficiency by accommodating more people in the same buildings.

"开放底层空间和办公区,将不同的方案和用户联系起来,并将三个独立的建筑元素结合起来"。穿过整个中庭的高度,升起了中央楼梯,它是建筑的绿肺,也是街道上的吸引眼球之处。楼梯的典型特征是分层平台,作为捷径和同事之间自发互动的新场所。考虑到楼梯上的动态,集体工作的功能被集中在楼梯周围,而需要更多安静或集中的活动则被放置在较远的地方。
"Opening up the ground floor spaces and the office areas links the varying programmes and users, and unites the three separate building elements." Across the full height of the atrium rises the central staircase, the building's green lung and an eye-catcher from the street. The staircase is typified by the split-level plateaus, which act as shortcuts and new places for spontaneous interactions between colleagues. Given the dynamics on the staircase, the collective work functions are grouped around it and the activities that require more quiet or concentration are placed at a distance


在底层的中心是郁郁葱葱的庭院花园。这个绿色的空间似乎通过两侧的开放外墙延续到了Werklab和餐厅,并从Nieuwe Vaart运河边吸引了人们的目光。在天气好的时候,外墙可以全部打开,这样,花园也成为开放的底层的一个组成部分。
At the heart of the ground floor is the lush courtyard garden. This green space seems to continue into the Werklab and restaurant via the open facades on either side, and catches the eye from the Nieuwe Vaart canal. In good weather, the facades can be opened all around, so that the garden also becomes an integral part of the open ground floor.

“新的内部和外部干预措施强调了连接和可持续性的指导性主题"。我们的目标不是增加材料,而是尽可能多地移除材料。这不仅创造了更多无遮挡的高度和透明度,而且对建筑的可持续发展得分有很大贡献。混凝土结构中的框架为建筑提供了特征,它参考了周边地区建筑中的特色拱形元素。
"New internal and external interventions underline the guiding themes of connection and sustainability." Instead of adding materials, we aimed to remove as many as possible. This not only creates more unobstructed heights and transparency, but also contributes greatly to the building's sustainability score. The frames in the concrete structure that provides the building with its identity refer to the characteristic arch elements in the buildings in the surrounding area.













Architects: Studioninedots
Area : 5000 m²
Year : 2021
Photographs :Frans Parthesius
Construction : Strackee
Engineering : Cauberg Huygen
Landscape : DELVA Landscape Architecture | Urbanism
Partner Architect : Metin van Zijl, Albert Herder, Vincent van der Klei
Associate : Jurjen van der Horst
Architect : Bas van der Pol, Sem Holweg, Rutger van der Meer, Gerty Daniels, Adan Cardak, Leire Baraja Rodriguez, Camille Moreau, Eva Souren, Stefanie Krietemeijer
City : Amsterdam
Country : The Netherlands