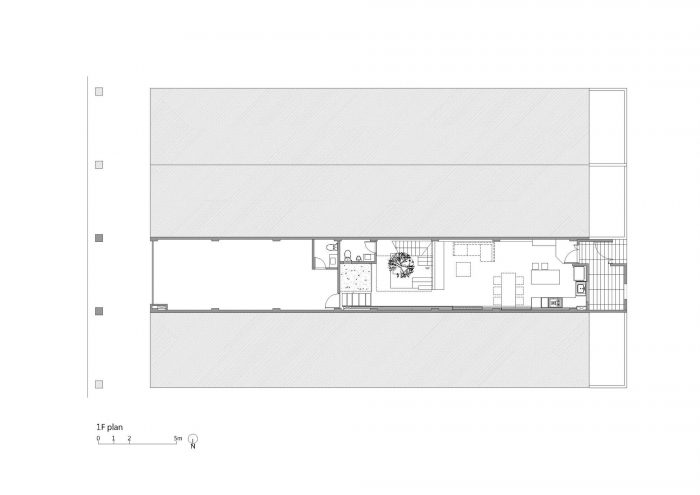
这原本是一栋有几十年历史的排屋,与该街区的一栋排屋相连。排屋的总长度约为30米。原来的建筑结构被中间的采光井分为前后两栋。原来的采光井只起到了额外的采光功能,它的周围是楼梯和厕所等消极空间。排屋的正面面对狭窄而密集的商业街,后院被用作房屋的主入口。
This is originally a row house for decades, which is attached to one of the row houses in the block. The total length of the row house is about 30 meters. The original building structure is divided into two buildings at the front and back by the light well in the middle. The original light well only served the function of additional daylighting, which is surrounded by negative spaces such as stairs and toilets. The front of the row house faces the narrow and dense commercial street, and the backyard is used as the main entrance of the house.





除了提供采光外,我们将让家庭的各种风景在采光井旁展开,使采光井成为户外广场般的核心空间。原本封闭的楼梯被改造成围绕采光井的吊灯,所有通往房间的通道都将通过采光井。丰富多样的居家生活场景,如阅读、工作、健身、儿童游戏、视听娱乐等,都将作为多层次的平台布置在光井周围。光井中央的树让自然风光在室内呈现,它也将成为家庭的精神象征。
In addition to providing daylighting, we will let various scenery of the family unfold beside the light well, making the light well a core space like an outdoor square. The original closed staircase is transformed into a light hanging around the light well, and all the access to rooms will pass through the light well. Rich and diverse life scenes at home, such as reading, work, fitness, children's games, audio-visual entertainment, etc., will be arranged around the light well as multi-level platforms. The tree in the center of the light well allows the natural scenery to be presented indoors, and it will also be a spiritual symbol of the family.


我们希望通过室外广场式的公共空间氛围,凝结出 "家 "的感觉。家庭成员可以有自己独立的空间,可以通过光井广场相互问候和陪伴。
We hope to condense the feeling of "home" through the outdoor square-like public space atmosphere. Family members can have their own independent space and can greet and accompany each other through the light well square.


在外观处理上,考虑到整个排屋外立面的连续性和完整性,尽量保持原有建筑外立面的外观。独立的玻璃砖墙部分是为了保护隐私才增加的。卧室空间安排在靠近街道一侧,以获得更好的采光。玻璃砖和梯田一层层退去,缓冲了与街道的紧张关系,逐渐阻隔了噪音和视觉干扰。
In terms of appearance treatment, the continuity and integrity of the facade of the entire row houses were considered, and the appearance of the original building facade was maintained as much as possible. The independent glass brick wall was partially added only for privacy. The bedroom space is arranged close to the street side for better daylighting. Glass bricks and terraces retreating layer by layer buffer the tension with the street, gradually blocking noise and visual interference.


我们希望这个老房子的改造能让住在里面的成员在家里享受到户外空间的自由。
We hope that the transformation of this old house will allow the members living in it to enjoy the freedom of outdoor space at home.









Architects: YD Architects
Area : 450 m²
Year : 2022
Photographs :Studio Millspace
Lead Architect : Chun Yen Chen
Country:China