Lindower 22是西柏林Wedding历史工人区的首批工业重建项目之一,涉及到前Max Hasse Machinen Fabrik的重建,这是一个20世纪初的红砖工业综合体。随着旧工业的衰落,它最初被20世纪90年代后的再生进程所遗弃,而这些进程反而触及了柏林的其他地区。
Lindower 22 is one of the first industrial redevelopment projects in the historic working-class district of Wedding in West Berlin and involves the redevelopment of the former Max Hasse Machinen Fabrik, an early 20th-century redbrick industrial complex. With the decline of old industries, it was initially left behind by the regeneration processes following the 1990s, which instead touched the other districts of Berlin.




尽管这样,随着建筑质量方面令人难以置信的空间的可用性,近年来,它吸引了越来越多的艺术家、艺术画廊和创意工作室,其中许多人在废弃的工厂里的同一个阁楼空间里一起工作。今天,Wedding被认为是一个非常活泼的多元文化区,并在城市政策中发挥着核心作用,是其通过文化计划进行的雄心勃勃的城市重建的一部分。Lindower 22旨在将超过10,000平方米的闲置空间改造成一个城市智囊团,一个符合柏林文化精神的自由思想家的空间。
Despite this with the availability of incredible spaces in terms of architectural quality, in recent years it has attracted increasing numbers of artists, art galleries, and creative ateliers, many of them working together in the same loft spaces in abandoned factories. Today Wedding is considered a very lively, multicultural district and plays a central role in the policies of the city as part of its ambitious urban redevelopment through a culture plan. Lindower 22 is designed to transform over 10,000 square metres of unused spaces into an urban think tank, a space for free thinkers in keeping with Berlin's cultural spirit.

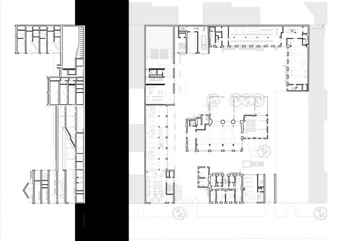
该项目涉及一系列的干预措施,首先是利用不同的再生策略对两座最著名的建筑进行改装,恢复和扩大街边的公共住房,并拆除效率最低和不太著名的建筑,建造一座具有不同楼层和功能的新建筑。
The project involves a series of interventions that began with refitting, using different regeneration strategies, the two most prestigious buildings, restoring and expanding the public housing on the street side, and demolishing the least efficient and less prestigious buildings to construct a new building with various floors and functions.

该项目的哲学方法取决于文化、实验和艺术的能力,以重新激发建筑群的休眠结构,建立一个创新区,让艺术家、研究人员、初创企业、文化协会、时装设计师、艺术画廊和当代小工匠能够聚集在一个社区中,相互影响和启发,产生一个混合中心,与城市共同成长和发展。建筑方法是哲学方法的后续,是基于对具有非凡历史和质量的建筑的尊重的想法。这意味着两个操作概念:基本和有用。
The philosophical approach to the project depends on the ability of culture, experimentation, and art to restimulate the complex's dormant fabric, building an innovative district where artists, researchers, start-ups, cultural associations, fashion designers, art galleries, and small contemporary artisans can get together in a community and influence and inspire each other, generating a hybrid hub that grows and develops together with the city. The architectural approach is a follow-on from the philosophical one and is based on the idea of respect for a building that has an extraordinary history and quality. This meant two operational concepts: basic and useful.



基本的,例如,在Lindower 22上采取的改造策略。这意味着试图使用最大的效率和线性,将改变现有结构的需要保持在最低限度:所有新的输入都是 "标准 "的,换句话说,是最简单的。这很有用,因为每一个仍然有效的元素或现有系统都被抢救出来,只有在严格必要的情况下才增加和更新。截至目前,Lindower 22的保留部分和街边建筑的修复工作已经完成。
Basic, for example, the retrofitting strategy adopted on Lindower 22. It means an attempt to use the maximum efficiency and linearity to keep the need to alter existing structures to a minimum: all-new input is "standard", in other words, the simplest possible. Useful, because every element or existing system that still works has been salvaged, adding and modernising only where strictly necessary. As of present, the restoration work on the retained sections of Lindower 22 and the streetside building has been completed.



在第一阶段,大教堂的建筑,康多和康多林D,被再生为Callie's,一个促进艺术、创意和文化交叉的实验机构,AP,Callie's的姐妹图书馆,Plastique Fantastique的总部和许多其他创意的现实。在第二阶段,Kondolin B建筑将被重建,并将被用作多任务空间(一个电影院,同时也是一个会议厅),艺术的新空间,以及对食物的思考和实验(咖啡、食品实验室、超市和住宅)。
In the first phase, the buildings of the Cathedral, the Kondo and Kondolin D, were regenerated to house Callie's, an experimental institution for the promotion of art, creativity, and cultural crossing, AP, the sister library of Callie's, the headquarters of Plastique Fantastique and many other creative realities. In the second phase, the Kondolin B buildings will instead be reconstructed and will be used as multitasking spaces (a cinema-theater that also functions as a conference hall), new spaces for art, and for reflection and experimentation on food (coffee, food lab, supermarket, and residences).






















Architects: Asa Studio Albanese
Area: 1230 m²
Year: 2015
Photographs: Francesca Iovene
Associate Architect:Heim Balp Architekten
City:Berlin
Country:Germany