市政厅位于中心街道Lederergasse--一条宜居、安静的街道,通过烟草厂连接林茨的主要广场和港口。现有的建筑--其主要物质来自16世纪--已经被翻新和扩建。在一个持续数年的过程中,首先,底层的房舍被改造成公司自己的建筑师办公室。一楼和二楼的公寓被清理出来,并被翻新到其建筑结构上。在过去的两年里,库存得到了补充,增加了一个新的库存。
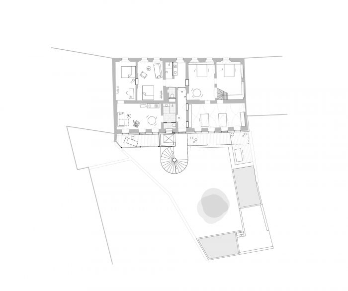
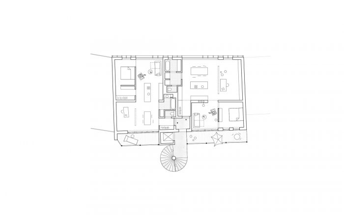
The Town House is located in the central street Lederergasse - a livable, quiet street that connects Linz's main square, via the tobacco factory, with the port. The existing building – its primary substance from the 16th century – has been renovated and expanded. Over a process lasting several years, first, the premises on the ground floor were converted into the company's own architect's office. The apartments on the 1st and 2nd floor were cleared out and renovated down to their constructive structures. In the last two years, the inventory has been supplemented with an addition.



为了使现有建筑在没有重大干预的情况下进行温和的翻新,在改变有关新层数的开发计划的过程中,也确定了一个带有连接核心、楼梯和电梯的新入口的位置。通过这种方式,历史物质的特征可以以最好的方式被保留下来。加建工程是根据生态、经济和结构的要求进行的,采用混合结构--主要是木材结构。
In order to enable a gentle renovation of the existing building without major interventions, during the process of changing the development plan regarding the new story number, the position of a new entrance with a connection core, staircase and lift has been also defined. In this way, the characteristics of the historical substance could be preserved in the best possible way. The addition is carried out according to ecological, economic, and structural requirements in mixed construction - mostly timber construction.

作为一个内部项目,这个建筑项目一直是我们创新改造方法和特殊解决方案的实验对象。例如,底层挖掘出的CLAY被加工成夯土墙,现在这些夯土墙在加层时被用作预制的承重部分。
As an in-house project, this construction project has always been an experimental object for us for innovative renovation methods and special solutions. For example, the CLAY from the excavation on the ground floor was processed into rammed earth walls and these are now being used as prefabricated load-bearing parts when the story is added.


利用木-混凝土复合技术,几百年历史的木质天花板可以被保留下来,并在静力学和建筑物理学方面得到加强。一个五层的螺旋楼梯是由专门开发的预制混凝土构件建成的。
Using wood-concrete composite technology, the several hundred-year-old wooden ceilings could be preserved and strengthened in terms of statics and building physics. A five-story spiral staircase was built from specially developed precast concrete elements.

独立的楼梯被包裹在金属网中,在接下来的几年里,金属网将被猕猴桃和藤蔓卷须所覆盖。为了以最好的方式抵消密封性,我们为庭院建筑的屋顶提供了一个绿色屋顶,庭院中的区域用透水的GRP网格使其具有强大的可玩性。
The free-standing staircase is wrapped in a metal net, which is to be overgrown with kiwi and vine tendrils over the next few years. In order to counteract the sealing in the best possible way, we have provided the roofs of the courtyard buildings with a green roof and the areas in the courtyard have been made robustly playable with water-permeable GRP grids.

在另一个建筑项目中被处理掉的栏杆被重新调整,现在在我们的阳台架子上找到了新的用途。木质的附加物在街道一侧显示了一个木板和横梁的外墙,涵盖了几个需求,如防坠落、防火屏障功能和结构。
RAILINGS that were disposed of during another construction project have been re-adapted and are now finding new uses in our balcony shelf. The wood addition shows up on the street side with a mullion and transom facade that covers several needs, such as fall protection, the fire barrier function, and the structure.

除了所有这些生态、经济和形式上的考虑外,社会和社区的想法对我们也很重要。除了具有交流阳台和庭院区域的LIVELY和LIVABLE联排别墅外,我们还认真对待作为邻居和同行的责任。
In addition to all these ecological, economic, and formal considerations, the social and community idea was also important to us. In addition to a LIVELY and LIVABLE townhouse with communicative balconies and courtyard areas, we also took our responsibility as a neighbor and counterpart seriously.

南面的阳台和底层的花园使办公室的工作人员和楼里的居民能够进行交流,并成为会议区。街道一侧也应该同样友好,有一个人们喜欢行走的底层。我们在主立面前的小板凳是用来休息的—我们对此感到非常高兴
Balconies on the south facade and garden on the ground floor enable communication and the meeting area for workers of the office and inhabitants of the building. The street side should be just as friendly, with a ground floor that people like to walk along. Our small bench in front of the main facade is used to rest - we are very happy about that!


























Architects: mia2/Architektur
Area : 1275 m²
Year : 2021
Photographs :Kurt Hörbst
Manufacturers : Geberit, Duravit, RÖFIX, Uginox, Elmer , Forbo Flooring, Knauf
Lead Architects : Sandra Gnigler, Gunar Wilhelm
Structural Engineering : Kotlaba Ziviltechniker GmbH
Construction Unit : SIMADER, Baumeister und Zimmermeister GmbH
Heating And Plumbing : Peter Bönisch Installationsges.m.b.H.
City : Linz
Country : Austria