该建筑位于波西米亚森林的中心,可以看到利普诺湖的景色。这个小木屋建在一个曾经是旧木屋的地方。它的设计是为附近的山地运动提供各种条件下的完美基地。
The building is located in the heart of Bohemian Forest with a view of Lipno lake. This cabin was built in a place where an old wooden cabin used to be. It is designed to provide the perfect base for nearby mountain sports in all conditions.



设计遵循了其附近建筑的城市风格,并尊重了该地区的高度条件。这片土地被森林挡住了区域铁路线,该铁路线在东北方向穿过该地区。利普诺湖的一个较窄的部分在轨道后面向东南方向开放,那里是伏尔塔瓦河的河口。
The design follows the urbanism of the buildings in its neighborhood and respects the height conditions in the area. The land is screened by forest from the regional railway line, which passes through the territory to the northeast. A narrower part of the Lipno lake opens to the southeast behind the track, there lies the mouth of the Vltava River.


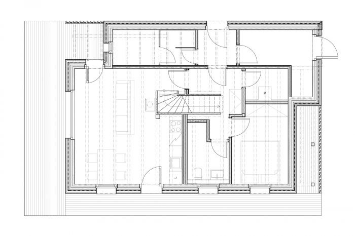
房屋的形态符合波西米亚森林建筑的几个原则:长方形的平面图,紧凑的形状,沿着等高线的方向,创建一个有盖的门廊,以及更明显的屋檐衔接(悬空)。该建筑为单层,有一个阁楼。檐口平面与门窗的门楣在一条水平线上的高度一致,是对檐口的一种现代诠释。
The morphology of the house stands on several principles of Bohemian Forest architecture: rectangular floor plan, compact shape, orientation along the contour line, creation of a covered porch, and more pronounced articulation of the gable (overhang). The building is a single-story with an attic. The height alignment of the eaves plane with the lintel of the windows and doors on one horizontal line is a contemporary interpretation of the cornice.


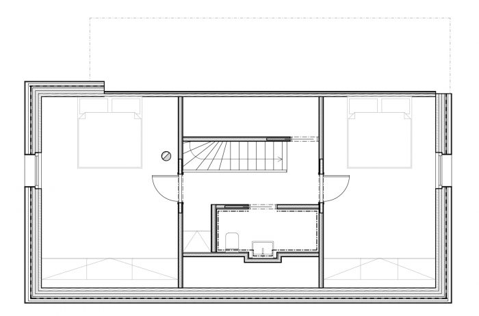
利普诺湖的景色,以及背景中的两个主要山峰,成为项目的重点。房屋的居住空间以面向湖面的主导性坡屋顶方窗为中心。其他的窗户都可以直接看到森林。森林作为一种材料、气味和颜色出现在室内。一层有一个小房间,一个浴室,一个洗衣房,一个小桑拿房,以及一个储存运动和技术设备的房间。阁楼上隐藏着一个浴室、一个储藏室和两间卧室,屋檐上有一个圆形的窗户,框住了该地区的其他山峰。
The view of Lipno lake, with two major peaks in the background, becomes the main point of the project. The living space of the house is centered around the dominant gabled square window facing toward the lake. The other windows have a direct view of the forest. The forest is present in the interior as a material, smell, and color. One small room, a bathroom, a laundry room, a small sauna, and a room for storing sports and technical equipment are located on the ground floor. The attic hides a bathroom, a pantry, and two bedrooms with a circular window in the gable, framing other peaks in the area.

房子的三面都有一个木制的露台,根据其不同的宽度,与屋顶的显著悬垂一起,创造了一个用于各种用途的空间(坐在阳光下和阴凉处,桑拿休息间,储存木材和自行车)。
Three sides of the house are lined by a wooden terrace, which, depending on its variable width, creates, together with a significant overhang of the roof, a space for various uses (sitting in the sun and in the shade, a sauna rest room, storage of wood and bicycles).

该建筑被设计成由CLT板制成的木质结构,在内部可见。外墙的包层由垂直落叶松型材组成,窗户由集成的滑动百叶窗补充,屋顶是金属板。该建筑是由一家家族公司3AE实现的,该公司与作者紧密合作。除了建筑的最终质量,他们还确保了高水平的细节执行。共同的价值观、对细节的把握和对自然材料的欣赏使最终的结果产生了共鸣。
The building is designed as a wooden structure made of CLT panels visible in the interior. The cladding of the facade consists of vertical larch profiles, the windows are complemented by integrated sliding shutters, and the roof is sheet metal. The building was realized by a family company 3AE which worked in close collaboration with the author. Besides the final quality of the building, they also ensured a high level of detailed execution. Shared values, a sense of detail, and an appreciation of natural materials make the final result resonate.

























Architects: Les Archinautes
Area : 118 m²
Year : 2021
Photographs :Petr Polák
Manufacturers : Novatop, AGROP NOVA, Poklem, Značková okna
Lead Architects : Gabriela Králová
Project Documentation : 3AE [Radek Vybíhal]
City : Lipno nad Vltavou
Country : Czech Republic