新的住宅是对潘普洛纳Milagrosa区的一个旧摩托车修理店进行改造的结果。该项目的意图是成为该地区这种改造形式的一种原型,因为该地区有大量的工业厂房现在处于废弃状态,它们的改造将大大有助于该地区的振兴,然而这种可能性对当地居民来说在很多情况下是未知的。
The new dwelling is the result of the transformation of an old motorbike repair shop in the Milagrosa district of Pamplona. The intention of the project is to be a kind of prototype for this form of reconversion in the neighborhood, as it has a large number of industrial premises now in disuse and their transformation would greatly help to revitalize the area, a possibility that is however unknown in many cases to the local residents.





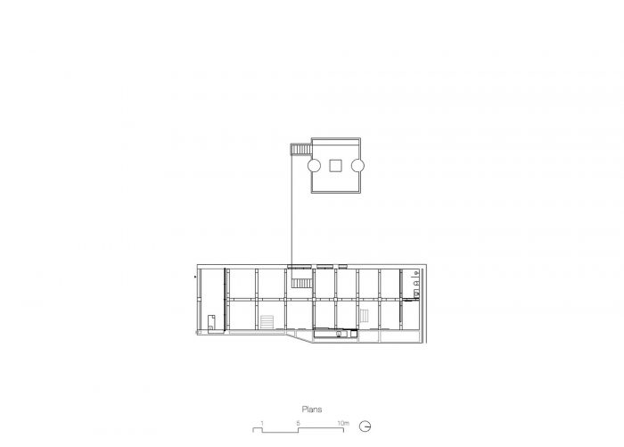
鉴于阁楼所处的街道之间的水平差异,它充当了建筑其他部分的平台。该项目的主要目的之一是剥离商店中所有不必要的现有元素。然后,空间将被释放出来,以展示支持该建筑的强大和可塑性结构。目前的结构体系,在本质上是构造性的,因为它是由混凝土支柱、梁和板组成的,也允许立面向街道和街区庭院开放。这些正面的透明度和它们的不同方向,使空间在漫反射和连续的白光下变得非常宁静。此外,这种拆除和开窗的操作使入口处被改造成一个门廊,一个半私人的城市花园,它既是一个过滤器,也是房屋和街道之间的一个联合和过渡空间。
Given the difference in level between the streets on which the loft is situated, it acts as a podium for the rest of the building. One of the primary aims of the project was to strip the shop of all the unnecessary existing elements. The space would then be freed up to show the powerful and plastic structure that supports the building. The present structural system, which is tectonic in nature as it is composed of concrete pillars, beams, and slabs, also allows the façades to open up towards both the street and the block courtyard. The given transparency of these fronts and their different orientations give the space a great serenity thanks to a diffuse and continuous white light. Furthermore, this operation of dismantling and aperture allows the entrance to be transformed into a porch, a semi-private urban garden that acts both as a filter and as a space of union and transition between the house and the street.





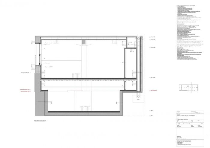
在内部,该项目通过创建一个主要的中央空间,并将所有的装置和存储空间压缩在剩余的相邻表面,来规范楼层的规划。因此,这个中央空间被理解为一个巨大的白色舞台,由于引入了一个固定在现有支柱上的新结构,出现了一个定义不同访问平台的裙楼。最终,该平台确保了整个阁楼的空间连续性得到保持。然而,这个抽象空间的深度和规模的概念是通过用奥库姆木制成的垂直建筑元素来定义的。固定和移动的平面使厨房或浴室以这样一种方式被放置,即它们被隐藏起来,但同时又可以被接近。简而言之,阁楼是一个类似于瑞士建筑师阿道夫-阿皮亚(Adolphe Appia)所提出的场景设计,在这里,裙楼下的新空间被转化为一个工作空间,一个国内的舞台坑。这个空间,与阁楼的其他部分不同,是由混凝土墙和建筑的现有地基定义的,因此是地平面的延续。
Internally, the project regularises the floor plan by creating a main central space and compacting all the installations and storage spaces in the remaining adjacent surface. Thus, this central space is understood as a great white stage in which, thanks to the introduction of a new structure that is anchored to the existing pillars, a podium emerges that defines different accessible platforms. Ultimately, the podium ensures that the spatial continuity throughout the loft is kept. Nevertheless, the notion of depth and scale in this abstract space is defined by means of vertical architectonic elements made of Okoume wood. Fixed and mobile planes that allow the kitchen or the bathroom for instance to be placed in such a way that they are concealed but at the same time accessible. In short, the loft is a scenography similar to those proposed by the Swiss architect Adolphe Appia in which the new space under the podium is transformed into a working space, a domestic stage pit. This space, unlike the rest of the loft, is defined by concrete walls and the existing foundations of the building, thus being a continuation of the ground plane.

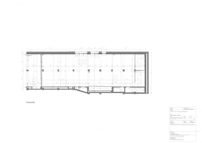
对这个空间的刻意预设,使其具有特定的用途和材料,将平台的其他部分从特定的功能中解放出来,从而使住宅具有很大的灵活性,每个可进入的空间都可以容纳任何活动。此外,为了进一步提高使用的灵活性,楼梯作为家具,可以随意调整位置,从而引入多种路线和内部配置。这种未定义空间的策略是允许用户根据他们的需要来利用空间,因为毕竟,阁楼必须像其词源所示,是一个开放的地方,一个永恒的地方,在其中以灵活的方式生活和工作。
The deliberate predefinition of this space with a specific use and materiality frees the rest of the platforms from a specific function, thus giving the dwelling a great deal of flexibility in which each accessible space can accommodate any activity. In addition, and to further enhance the flexibility of use, the staircases act as furniture that can be repositioned at will, thus introducing multiple routes and internal configurations. This strategy of undefined spaces is what allows the user to appropriate the space according to their needs, since, after all, a loft must be, as its etymology indicates, an open place, a timeless place in which to live and work in a flexible manner.
























Architects: Arrova | Atelier . Rojo - Vergara
Area: 226 m²
Year: 2020
Photographs: Iñaki Bergera
Calculation Of Structures:Sara Bonet
Contractor:Construcciones Bakaikoa
Carpentry:Lakumatek / Carpintería Carrera
Metal Joinery:Renoven
City:Pamplona
Country:Spain