在 "林间阁楼 "里,完全与大自然融为一体,几乎没有内部和外部的区别。在床上,你可以看到月亮和星星,醒来后可以看到花园里的鸟和蝴蝶。使用钢结构的优点是多种多样的,包括更容易获得自由跨度和结构平衡--就像这个项目中床头的玻璃角一样,可以毫无障碍地看到外面的全貌。
In the Loft Between the Trees, there is total integration with nature, with little distinction between inside and outside. From the bed, you sleep seeing the moon and stars, and wake up seeing the birds and butterflies in the garden. The advantages of using steel structures are diverse, including greater ease in obtaining free spans and structural balances - as is the case of the glass corner at the head of the bed in this project, which allows a complete view of the outside without obstacles.





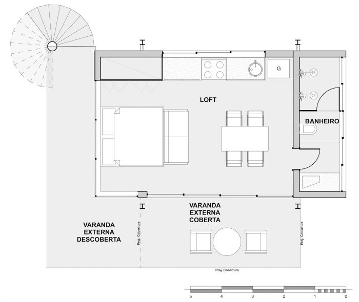
该阁楼建于2018年,位于布鲁马迪诺市--MG市,采用钢结构和陶瓷砖砌墙。裸露的混凝土是该项目中的主要材料,被用作天花板和地板的装饰。大面积的玻璃跨度,除了带来现代和工业化的视觉效果外,还允许与自然充分融合,使50平方米的小空间看起来更宽阔,与周围的环境更有联系。
Built in 2018, in the municipality of Brumadinho - MG, the loft has a steel structure and ceramic brick masonry wall. The exposed concrete is a predominant material in the project, being used as ceiling and floor finish. The large glazed spans, in addition to bringing a contemporary and industrial visual approach, allow full integration with nature, making the tiny space of 50m² seem wider and more connected with the surroundings.


阁楼的平面图的几何形状非常简单,只有一个卫生间的隔断。其余的项目在一个单一的房间里进行,这个房间完全开放并延伸到一个有顶的门廊。正是在这个带有玻璃屋顶的门廊上,内部和外部溶入了一个愉快的空间,与周围充满活力的大西洋森林完全相连。树梢和天空是房屋屋顶板上创建的开放式露台的永久景观。这是一个真正的休息场所,可以从当代城市生活中解压。
With a floor plan whose geometry is extremely simple, the loft has only one partition for a bathroom. The rest of the program takes place in a single room that opens up and extends completely onto a covered porch. It is on this porch with a glass roof that the inside and the outside dissolve into a pleasant space of total connection with the vibrant surrounding Atlantic Forest. The treetops and the sky are the permanent landscape of the open terrace created on the roof slab of the house. A true place to rest and decompress from contemporary urban life.



















Architects : Rudner Lopes Arquitetura
Area : 50 m²
Year : 2018
Photographs :Ivan Araújo
Manufacturers : Directa, Infinito Vidros, TH Engenharia
Architects In Charge : Rudner Lopes
Engineering : TH Engenharia
Country:Brazil