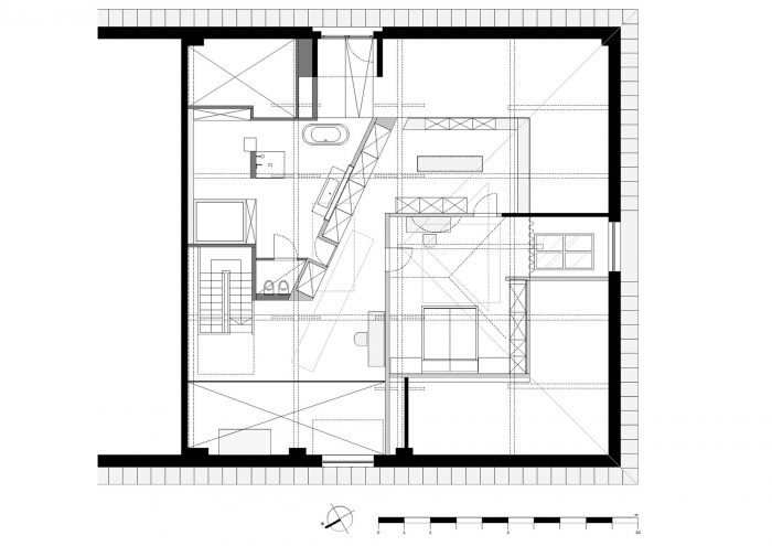
埃斯林根(Esslingen)的帕尔姆谢尔公园(Palmscher Park)是威廉时代后期的一个前军营。在千年之交,它被改造成了一个住宅区,由于其迷人的山坡位置,已经成为一个非常受欢迎的住宅区,离埃斯林根镇中心只有十分钟的步行距离。当一家中介公司搬出位于两层楼房短端的阁楼空间时,一个有两个小孩的家庭想把这个地方改造成他们的新家。在400平方米的空间里,一个开放而宽敞的生活空间被创造出来,它具有不同的生活区域和诱人的视觉视角。
The Palmscher Park in Esslingen is a former army barracks from the late Wilhelmine era. It was transformed into a residential complex at the turn of the millennium and has become a very popular residential area thanks to its attractive hillside situation, only ten minutes walking distance from Esslingen town centre. When an agency moved out of a loft space at the short end of a two-storey block, a family with two small children sought to transform the site into their new home. An open and spacious living space with differentiated living zones and tantalising visual perspectives was created across 400 square metres.



现在,当访客进入阁楼时,一个宽阔的空间沿着水平和垂直轴线打开。生活区与入口区仅由一个L形的过滤帘子隔开。在楼梯脚下,一个衣柜隐藏在镜面墙后面,将汤姆-迪克森的镜面球无限地来回反射。
Now when a visitor enters the loft, a wide space opens up along a horizontal and vertical axis. The living area is only separated from the entrance area by an L-shaped filtering curtain. At the foot of the staircase a wardrobe is concealed behind a mirrored wall, reflecting Tom Dixon’s Mirror Ball infinitely back and forth.

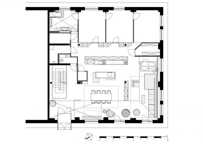
一楼是围绕着用餐区布置的。一张长桌被地毯和细长的、相交的吊灯安置在空间里。由于三个自由堆叠的固体表面方块,一个开放式的厨房与用餐空间很好地连接起来。后排的厨房单元放置了不同的家用电器和一个高而窄的酒架,创造了一个诱人的不锈钢、漆木和固体表面的组合。金色的意大利玻璃砖的防溅板让人想起业主的出身和童年。这一排厨房单元也为儿童的生活空间提供了屏障。它的后墙装有集成橱柜,形成了通往三个儿童卧室的走廊。
The ground floor is laid out around the dining area. A long table is located in space by a carpet and slender, intersecting, pendant lamps. An open-plan kitchen connects well with the dining space thanks to three, freely stacked, solid surface cubes. A rear row of kitchen units houses different household appliances and a tall, narrow wine rack, creating an enticing mix of stainless steel, lacquered wood and solid surface. The tiled splash back of golden, Italian glass tiles recalls the owners’ origins and childhood. The row of kitchen units also screens the children’s living space. Its rear wall containing integrated cupboards forms the corridor leading to the three children’s bedrooms.

一段凸出的墙将起居室和用餐区相互隔开。在厨房一侧,它的表面被赋予了黑板漆。彩色玻璃反映了另一侧的房间,平面屏幕被整合到墙的两边。起居室区域由一个宽大的沙发景观和深绒毛地毯主导。一架三角钢琴矗立在房间封闭的一端,前面是软垫布墙,上面有一个天窗。对面的两扇门通向露台。
A projecting section of wall divides the living and dining areas from one another. On the kitchen side its surface has been given a chalkboard finish. Coloured glass reflects the room on the other side, and flat screens are integrated into both sides of the wall. The living area is dominated by an expansive couch landscape and a deep-pile carpet. A grand piano stands at the enclosed end of the room in front of an upholstered fabric wall, surmounted by a skylight. Two doors opposite lead out onto the terrace.

它们周围的墙壁从地板到天花板都是镜像的。在镜面和玻璃门上描画了一个分支的线条图案,唤起了人们对树枝的联想,并与花园的实际景观重叠。镜面墙与一个高大的木柴容器相邻,它为雕塑般的悬挂式烧木柴的炉子放置燃料。精确、光滑的玻璃表面和随机堆放的木材形成了一种令人兴奋的对比,这种对比反映在整个空间中。
The wall surrounding them is mirrored from floor to ceiling. A branching pattern of lines is traced upon the mirrored surfaces and glass doors, awakening associations with twigs and branches and overlapping with the actual view of the garden. The mirrored wall borders a tall firewood container, which holds the fuel for the sculptural, suspended wood-burning stove. The precise, smooth glass surface and the randomly piled wood create an exciting contrast, which is reflected throughout the space.

温暖的自然材料和颜色--包括深色的橡木镶木地板,墙壁和窗帘上的泥土色调,以及闪闪发光的金色表面--在粉红色的广阔色彩、立方体固体表面形式和玻璃表面找到了相应的类比。由于其倾斜的天花板,这个房间得到了额外的动态变化;它们各自的表面通过对比鲜明的色彩方案得到了强调。
Warm natural materials and colours – including a dark-stained oak parquet floor, earthy tones on the walls and curtains, but also the shimmering golden surfaces – find a corresponding analogy in pink expanses of colour, cuboid solid surface forms and glass surfaces. The room receives an additional dynamic twist thanks to its sloping ceilings; their individual surfaces are accentuated by a contrasting colour scheme.

上层是父母的领地。单独的书房不是设计方案的一部分,因此在一个开放的区域内设置了一个小型工作站。这是房中房结构的一部分,它掩盖了卧室,因为客户特别要求一个完全没有光线可以渗透的卧室。这个几乎密封的房间,其轮廓遵循最简单的房屋轮廓--铅笔的五笔--只通过门和通往天窗和窗户的窗帘通道与外部世界保持联系。天花板上温暖的深蓝色被一个大的灰色圆圈所点缀。这个圆圈和侧墙是一张空白的画布,由五个脆弱的光球投射到各个方向,形成迷宫般的阴影游戏。
The upper level is the parents’ domain. A separate study was not part of the brief, so instead a small work station is located in an open-plan area. This is part of a house-in-house construction, which conceals the bedroom, because the clients specifically asked for a bedroom into which no light could permeate at all. This almost hermetically sealed room, the contours of which follow the simplest of house outlines – five strokes of a pencil – only retains contact with the outside world via the doors and a curtained passage to a skylight and windows. The ceiling’s warm dark blue is punctuated by a large grey circle. The circle and side walls serve as a blank canvas for a labyrinthine shadow-play that is cast in all directions by five fragile spheres of light.

浴室向上开放,为隐蔽的卧室提供了一个完美的对立面。一面镜子墙是分隔浴室和走廊的唯一元素。悬挂的光滴因此照亮了这两个区域,并将拼贴的物体和房间连接起来,形成一个诗意的景观。
The bathroom open upwards, providing a perfect counterpoint to the hideaway bedroom: A mirrored wall is the only element separating the bathroom from the corridor. Suspended light drops thus illuminate both areas and connect the collage-like objects and rooms to form a poetic landscape.

阁楼ESN体现了将军营转化为办公室,并最终转化为一个宽敞而特殊的生活空间的特殊转变。
The Loft ESN embodies an exceptional transformation of an army barracks into an office, and finally into a spacious and exceptional living space.













Interior Designers: Ippolito Fleitz Group
Area : 400 m²
Year : 2014
Photographs :Zooey Braun
City:ESSLINGEN
Country:Germany