"每次我重建自己,我都会在碎片中更加完整"--这是作为尼尔多-何塞的起点的一句话。反思这些话在你生活中的影响和重建的意义,建筑师意识到,房子的作用也是干扰刺激的感觉,它负责提供这种团聚的内心。从这个角度看,Nildo将阁楼的巢穴理想化了,这是一个情感主人的空间,通过感官来拥抱、安慰,也触动灵魂。
"Every time I rebuild myself, I am more whole in pieces" - this was the phrase that served as a starting point for Nildo José. Reflecting on the impact of these words in his life and the meaning of rebuilding, the architect realized that the role of the house also interferes in the stimulation of sensations, which are responsible for providing this inner reunion. From this point of view, Nildo idealized the loft NINHO, a space of affective welcome, to embrace, bring comfort through the senses and also touch the soul.



"每次我重建自己,我都会在碎片中更加完整"--这是作为尼尔多-何塞的起点的一句话。反思这些话在你生活中的影响和重建的意义,建筑师意识到,房子的作用也是干扰刺激的感觉,它负责提供这种团聚的内心。从这个角度看,Nildo将阁楼的巢穴理想化了,这是一个情感主人的空间,通过感官来拥抱、安慰,也触动灵魂。
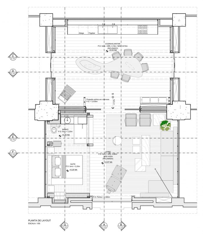
With 80m², and despite being visually integrated, the environment is divided into three areas with distinct functions: kitchen, social, and intimate. A point in common between the spaces is the European Oak lining, by Oscar Onno Paris, applied to the floor, wall and ceiling, which involves all and reinforces the feeling of welcome. In addition, they also have the same architectural language, following a re-reading of the original construction of the Jockey Club, thus reinforcing the design intent of integration and unity.


厨房分为三个动作:做、吃/喝和阅读,采用了当代 "生活厨房 "的趋势。做饭的动作是通过一个由凯撒石提供的五米长的工作台面和Dellano橱柜进行的,所有的烹饪活动都是在这里进行的;"吃/喝 "是通过一个白色的树脂有机桌子进行的,这个桌子是办公室专门为这个项目设计的,一边是餐厅,另一边是一个酒吧。亮点是阿尔梅达椅子,由著名设计师Etel Carmona和建筑师一起为该项目专门设计,他们用他们共同的姓氏来命名该作品。最后,阅读区与原来的窗框结合在一起,那里有一个来自圣埃斯皮里图的巴西大理石制成的门廊,适合图书馆。
The kitchen, subdivided into three actions: doing, eating/drinking, and reading, employs a contemporary trend of 'living kitchen'. The cooking action happens through a single five-meter countertop, supplied by Caesarstone, and with Dellano cabinets, where all the cooking activities are organized; the eating/drinking happens through an organic white resin table, designed by the office especially for the project, where on one side there is the dining room and on the other, a bar. The highlight are the Almeida chairs, projected exclusively for the project by the renowned designer Etel Carmona, together with the architect, who named the piece with a last name they have in common. Finally, the reading section was incorporated with the original window frames where there is a Brazilian marble portico from Espírito Santo that fits the library.

推进这个空间,人们发现社会部门,那里是生活,也是其相互联系的分支:收集、聚集和互动。Saccaro设计的沙发、Etel interiors设计的Oscar Niemeyer的Alta扶手椅、Jean Prouve的Potence灯、Scapinellis扶手椅、Ronan & Erwan Bouroullec为Vitra设计的咖啡桌和BB Italia的Fobo扶手椅,加强了办公室的意图,即用不同来源和时代的作品形成一个世界性的装潢。在艺术作品的选择上,标记存在的名字,如:"Tunga"、"Los Carpinteiros"、Vanderlei Lopes、Tulio Pinto、Leonora Barros、Flavio Cerqueira、Thiago Rocha Pitta、Gal Oppido、Ildeu Lazarini 和 Mario Cravo Neto。
As the space advances, one finds the social sector, where is the living room and also its interconnected subdivisions: collecting, gathering, and interacting. The sofa, executed by Saccaro, the Alta armchairs by Oscar Niemeyer from Etel interiors, the Potence lamp by Jean Prouve, Scapinellis armchairs, Ronan & Erwan Bouroullec side tables for Vitra, and the Febo armchair by BB Italia, reinforce the office's intention to form a cosmopolitan décor, with pieces from different origins and moments. On the artwork selection, names like: "Tunga", "Los Carpinteiros", Vanderlei Lopes, Tulio Pinto, Leonora Barros, Flavio Cerqueira, Thiago Rocha Pitta, Gal Oppido, Ildeu Lazarini and Mario Cravo Neto stand out.

最后,位于起居室前面和一个大夹层箱内的私密区域,由Cerâmica Atlas覆盖,也被细分为三个行动:睡觉、洗澡和冥想,由卧室、浴室和露台花园组成(全球现代主义的准则之一),被重新考虑,以优先考虑居民的冥想和断开联系。
Finally, the intimate area, located in front of the living room and inside a large mezzanine-box, covered by Cerâmica Atlas, also subdivided into three actions: sleeping, bathing and meditating, composed of bedroom, bathroom and terrace-garden (one of the guidelines of the world modernism), was rethought to prioritize the meditation and disconnection of the dweller.

该项目的发展来自于对新的空间使用形式和当代人日常生活中存在的新习惯的尝试,希望通过有助于幸福的环境来刺激人际关系,优先考虑人、他们的真相、他们的经验、行动和情感,以创造温馨的氛围,让一切发生。能够创造和唤醒记忆的空间,它拥抱着灵魂,使居住者完整,成为真正的巢穴。
The development of the project comes from an attempt to perceive the new ways of using spaces and the new habits present in the daily life of the contemporary individual, with the desire to stimulate human relationships through environments that contribute to well-being, prioritizing people, their truths, experiences, actions, and emotions, in order to create welcoming atmospheres where everything happens. Spaces capable of creating and awakening memories, which embrace the soul, and which complete their residents, becoming true nests.













Architects: Nildo José
Area : 80 m²
Year : 2018
Photographs :Denilson Machado - MCA Estúdio
Manufacturers : Deca, Ad. studio, Aline Matsumoto, Atlas Concorde, Basile Marcenaria, Bia Abreu Paisagismo, Brilia Iluminação, Caesarstone, Casas Moyses, Casual Móveis, Dellano, Dimlux, Dom Daqui Tapetes, Dpot, Entreposto Tecido, Etel Interiores, Futon Company, Gattai, Montblanc Marbles, Nara Otta, Oscar ono, Protecnica Revestimentos, Saccaro, Selvvva, Studio Vitty, Tresuno, Uau automações, Uniflex Cidade Jardim, Via Madeiras, Vidro Laser, VitrA, Vivi Cecco e Fernanda, Vivix
City:CIDADE JARDIM
Country:Brazil