由ILLA主持的住宅改造和室内设计,被授予2012年最佳建筑--住宅改造类奖项。Uma Arquitetura设计和实施的住宅建筑对象,保留了3.6米宽的老房子(改建为车库和办公室),选择在工业建筑的后面建造:大的天花板,通过屋顶棚子采光和通风。在混凝土结构中加入了垂直和水平的金属循环。
The Residential Renovation and Interior design, authored by ILLA, was awarded the Best Architecture 2012 - Residential Renovation category. The residential building object of reform design and implementation of Uma Arquitetura, have preserved the old house with of 3.6m wide (converted in a garage and office), opting for the construction at the back of an industrial building : large ceiling with light and ventilation through the roof shed. In the concrete structure had been a vertical and horizontal circulations metal added.



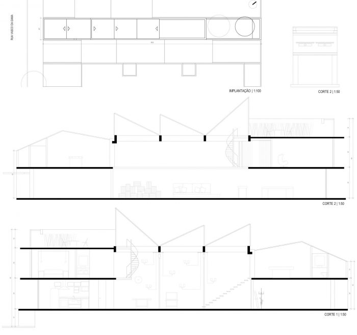
瓦斯科阁楼是一个设计机会:一个旧的棚屋建筑的一部分,它的前主人对其进行了部分更新,大约有246平方米,位于巴西南部的阿雷格里港。挑战:将现有的建筑变成一个宜居的地方。现有的工业 "氛围 "应该被翻新,为年轻开放的新主人创造一个舒适,但又有趣的家--他喜欢举办聚会,喜欢有朋友在身边。
首先,有必要恢复建筑的可居住性,投入尽可能少的资金 - 始终保持原有的工业布局和内部的能量。为了更好地控制温度和声学,用新的双层绝缘金属屋顶取代了被风吹雨淋的旧屋顶,以适应原来的倾斜结构。
The loft Vasco as a design opportunity: an old part of a shed building partially renewed by it’s former owner – with approximately 246sqm, located in Porto Alegre - Southern Brazil. The challenge: turning the existing building into a livable place. The existing industrial “atmosphere” should be refurbished to create a cozy, but yet fun, home for the young open-minded new owner - who enjoys to throw parties and to have friends around.
To start, it was necessary to recover the building habitability, investing the smallest amount of money possible –always preserving the original industrial layout and the energy within. For a better temperature and acoustic control, old-weather-damaged-metallic rooftop was substituted for new double layer insulated metallic roof sheating, proper for the original steep leaning structure.

阳台上的天然草层创造了一个以前从未使用过的令人愉快的区域,并有助于位于其下方的主卧室的温度控制。盥洗室的卧室有房子里唯一的滑动门,当它关闭时,可以使人感到亲密和隐私--因为整个房子是以开放空间的概念设计的。
为了降低成本,在施工过程中建造了一个4米长的混凝土沙发,上面放置了特制的坐垫。厨房的橱柜是由简单的粉红色胶合板制成的,而餐桌和椅子;电视架和迷你酒吧是由家人和朋友继承的复古改造的家具。
A natural grass layer at the terrace created a pleasant area that was never used before, and helped on temperature control in the main bedroom, located right below it. The en-suite bedroom has the only sliding-door of the house, when it’s closed enables a moment of intimacy and privacy - as the whole house was designed in open space concept
To cut costs, a 4 meters concrete sofa was built during construction, on which were placed specially-made cushions. The kitchen cabinets are made of simple pink plywood sheets, while the dining table and chairs; TV shelf and mini bar are vintage remodeled furniture, inherited from family and friends.

几平方米的木质地板被轻巧地镶嵌在客厅里,天井的地板(室外)用旧砖和碎石覆盖。
A few square meters of timber floor was lightly set indicating the living room and the patio floor (outdoor) was covered in old bricks and gravel.

镶木地板主要应用于大厅的门厅,使空间更加舒适,并与其他环境形成微妙的差异,此外,在露台上,地板是用拆下来的砖头和沙砾铺成的,而通道则是用铺在上面的砖头铺成的。
The parquet floor was applied only in the living room area, making the space cozier and delicately differentiated from the other areas, while in the patio, the floor was made of demolition bricks and gravel, and the access staircase was made of wood boards left over from the project.






Architects: ILLA
Area: 246 m²
Year: 2011
Year Of Project:September, 2010
Conclusion:July, 2011
Execution And Project:ILLA
City:Porto Alegre
Country:Brazil