SO - IL,一家位于布鲁克林的设计公司,为两岸制作公司LOGAN的纽约演出完成了新的办公室和工作室空间。该项目位于SoHo中心区一栋有地标的建筑的二楼,有一个6500平方英尺的角落阁楼空间。SO - IL的设计建立在Logan的动态工作模式上,并试图创造一个支持强烈的合作和集体感的环境。洛根团队的很大一部分由移动顾问组成,他们根据项目的需要加入团队。
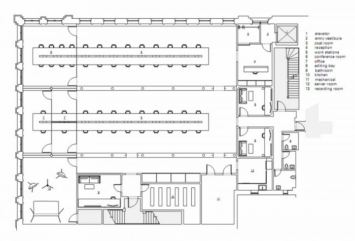
SO – IL, a Brooklyn-based design firm, completes new office and studio space for the NewYork opera- tion of LOGAN, a bicoastal production company.The project is located in a 6,500sf corner loft space on the second floor of a land-marked building in the heart of SoHo. SO – IL’s design builds on Logan’s dynamic working model and attempts to create an environment that supports a strong sense of collaboration and collectivity. A large part of Logan’s team consists of mobile consultants that join the team on a per-project basis.


这种不断变化的工作环境几乎不需要个性化的工位和房间,而是需要高度的灵活性。SO - IL重新思考了办公空间如何在罗根的组织下运作--创造了层层透明,完全共享的工作空间。该空间被分为两个相同的、对称的直角空间。每个长房间都有一个65英尺的连续定制工作桌。共享办公桌可以容纳任何规模的工作小组,将公司的几乎所有业务都整合在一个地方:设计、生产和会议。
This constantly changing work setting requires little personalized work stations and rooms, but a high level of flexibility. SO – IL rethinks how office space can work given Logan’s organization—creating layers of transparency, and completely shared work spaces. The space is divided into two identical, symmetrical rectilinear spaces. Each long room has a 65 foot continuous custom work table. Accommodating working groups of any size, the shared desks consolidate almost every operation of the company in one place: design, production, and meetings.

每张连续工作桌的末端部分由玻璃墙隔开,使隔音效果好的私人办公室和会议室可以共享同一个工作面。办公室的辅助功能,包括三个毛毡包裹的声音隔离的编辑室沿着空间的外围组织。无缝的、从地板到天花板的织物墙分隔了中央工作区,在视觉上打破了空间的规模,同时保持了一个共享的环境,并允许自然光穿透。一个拉伸的PVC发光天花板提供了完全均匀的无影灯。
The end section of each continuous table is divided by glass walls, allowing for acoustically private offices and meeting rooms to share the same work surface. The supporting functions of the office, including three felt- wrapped sound-isolated editing suites are organized along the periphery of the space. Seamless, floor-to-ceiling translu- cent fabric walls separate the central work areas, visually breaking down the scale of the space, while maintaining a shared environment, and allowing natural light to penetrate. A stretched PVC luminous ceiling provides totally even, shadowless lighting.

透过一层层的织物看去,人和物永远都是显得几乎是失焦的。织物墙捕捉自然光,并像投影屏幕一样,随着一天中光线的变化而改变颜色。无缝隙的织物、发光的天花板和连续的办公桌共同创造了一个抽象和无尺度的环境,使在这个空间工作的人从典型的使用期望中解放出来。这种抽象性,结合空间的对称性和织物的空间模糊性,在观察相邻空间时产生了反射的错觉,创造了一种梦境般的超现实体验。
Looking through layers of fabric, people and objects perpetually appear almost as if out of focus. Fabric walls catch natural light, and like a projection screen, change colors as light changes throughout the day. Together, the seam- less fabric, luminous ceiling, and continuous desks create an environment of abstraction and scalelessness, freeing those working in the space from typical expectations of use. This abstraction, combined with the symmetry of spaces, the spatial ambiguity of the fabric, creates the illusion of reflections when looking into adjacent spaces, creating a dream-like, surreal experience.










Architects: SO-IL
Area: 6500 m²
Year: 2012
Photographs: Iwan Baan , Naho Kubota
Manufacturers: Felt Studio, FilzFelt, Gerriets, LG Hausys, NewMat, Studio Hoon Kim
City: New York
Country: UNITED STATES