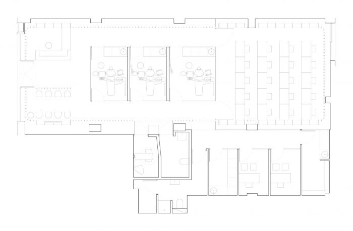
该项目包括将一个零售空间翻新成一个新的牙科诊所,包括三个病人室和一个可容纳20名学生的教室。它的重点是在这样一个紧凑但多样化的项目中,对自然光的利用和流通模式的优化。
This project consists of the refurbishment of a retail space into a new dental clinic including three patient rooms and a classroom for 20 students. It focuses on the use of natural light and the optimization of circulation patterns in such a compact but diverse program.





该空间只有通过其商店的正面和背面的一个窗户才能获得自然光。考虑到这一点,该项目让整个外壳不被覆盖,叠加了一系列不同材料的半透明表皮。这些层调节每个房间所需的不同程度的自然光和隐私。一方面,一个橡树木格子覆盖了空间主窗台的整个周边。格子建立了一个规则的正交网格,能够解决所有当地的程序性要求,如门槛、架子、抽屉、屏幕和接待台。这种规则的元素使诊所的内部空间均匀化,同时允许自然光和视觉连接。它也部分地显示了之前存在的建筑框架的不一致性。
The space only has access to natural light through its store front and a window on the back. With this in mind, the project leaves the entire shell uncovered, overlaying a series of translucent skins of various materials. These layers regulate the different levels of natural light and privacy that each room requires. On one hand, an oak wood lattice covers the entire perimeter of the space’s main bay. The lattice establishes a regular orthogonal grid, able to resolve all local programmatic requirements, such as thresholds, shelves, drawers, screens and reception desk. This regular element homogenizes the interior space of the clinic, while allowing for natural light and visual connections. It also partially shows the inconsistencies of the preexisting architectural frame.



另一方面,空间中央的磨砂玻璃盒容纳了三个病人房间,同时也将通道区域与教室分开。这个质朴的体量自由地矗立着,没有到达天花板。它的半透明表皮允许自然光穿过,同时为病人提供隐私。
On the other hand, a frosted glass box in the center of the space houses the three patient rooms, while also separating the access area from the classroom. This pristine volume stands freely without reaching the ceiling. Its translucent skin allows for natural light to go through, while providing privacy to the patients.

诊所的物质性由一个连续的抛光混凝土地板完成。地板被一系列的腔室和管道穿透,这些腔室和管道容纳了牙科设备所需的所有技术系统。商店的正面是由大块的透明玻璃组成,由临时设计的镀锌钢框架支撑。
The clinic’s materiality is completed with a continuous polished concrete floor. The floor is pierced by a series of chambers and ducts that host all the technical systems that the dental equipment requires. The store front is composed by large pieces of clear glass, held by ad-hoc-designed galvanized steel framework.









Architects: PRÁCTICA
Area: 208 m²
Year: 2020
Photographs: Fernando Alda
Manufacturers: AutoDesk, Brinner, General Climatización, Madel, Robert McNeel & Associates, Salvador Escoda, S.A., www.brinner.es
Arquitectos A Cargo:Jaime Daroca, José Mayoral, José Ramón Sierra
Clientes:Aldentista.es
Ingeniería:MB Ingenieros
City:Seville
Country:Spain