在卢米特高中,你可以欣赏到精彩的戏剧表演,体验到归属感和团结精神,还可以在休息时间聆听自发的音乐表演。迁入新楼的库奥皮奥艺术高中,对表演艺术的教学做出了全国性的贡献。这所拥有600名学生的高中专门研究创造性的科目,如音乐、舞蹈和表现性艺术。2022年秋季落成,它将是Kuopionlahti海滨开发的第一个完成部分。它也将是100年来库奥皮奥市中心的第一座新学校建筑。
At Lumit High School, you can enjoy great theatre performances, experience a sense of belonging and togetherness, as well as listen to spontaneous music performances during break times. The Kuopio Art High School, which has moved into a new building, is a nationally significant contribution to the teaching and learning of the performing arts. The 600-student high school specializes in creative subjects such as music, dance, and expressive arts. Inaugurated in autumn 2022, it will be the first completed part of the Kuopionlahti waterfront development. It will also be the first new school building in central Kuopio in 100 years.



Lumit的设计是2017年公共建筑竞赛的一部分,该竞赛旨在为Kuopionlahti地区的发展寻找一个愿景。完成后,Kuopionlahti沿海地区将成为一个主要的城市文化中心,那里的建筑环境将与周围的自然环境保持平衡。其目的是创造一个学习环境,使用户有能力进行表演艺术教学和专业学习。挑战不仅在于高度具体的空间方案和教学活动,而且还在于该建筑作为共享文化建筑的作用,将举办各种公共活动。
Lumit's design was part of a public architecture competition in 2017 which sought to find a vision for the development of the Kuopionlahti area. When completed, the Kuopionlahti coastal area will become a major urban cultural center, where the built environment will be in balance with the surrounding nature. The aim was to create a learning environment that would equip users to teach performing arts and study professionally. The challenges were not only the highly specific space program and teaching activities but also the role of the building as a shared cultural building, which will host a variety of public events.


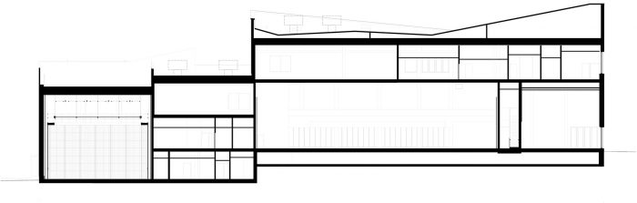
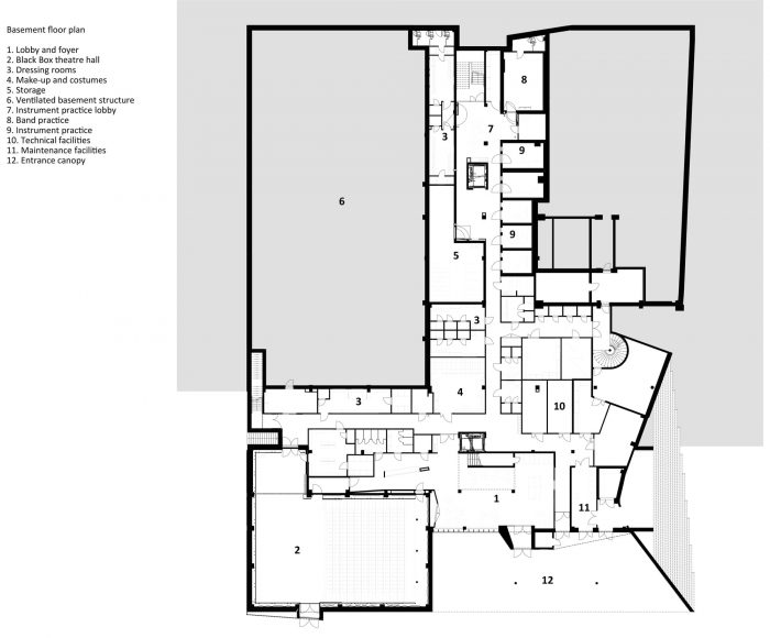
Lumit有三个主要入口,分别是主门厅和大堂区。大多数的公共功能和大厅都位于街道层面,与大厅相邻,使其易于进入,特别是在活动使用方面。音乐和舞蹈教室位于大厅附近,这样在建筑的外墙上也可以看到(和听到)他们的活动。
Lumit has three main entrances to the main foyer and lobby areas. Most of the public functions and halls are located at street level, adjacent to the lobbies, making them easily accessible, especially for event use. The music and dance classrooms are located close to the halls so that their activities can also be seen (and heard) on the facades of the building.

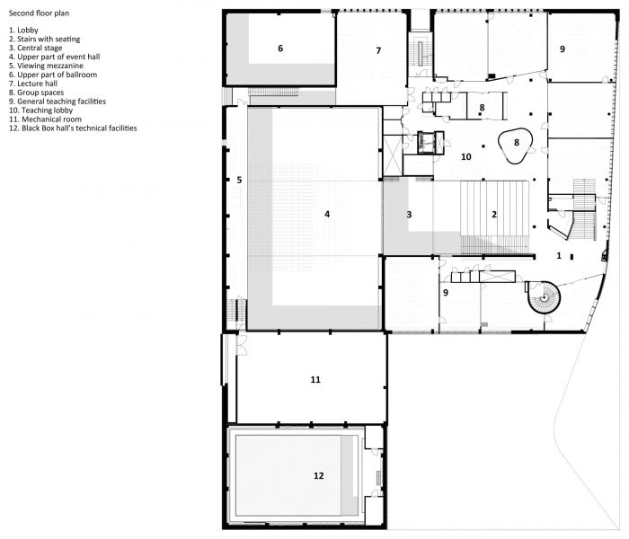
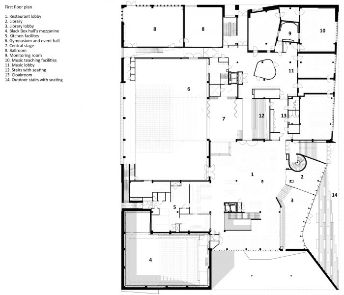
内部空间的核心是一个多方向的表演舞台,它可以同时用滑动墙打开成三个方向:运动馆、餐厅和中央礼堂。各组空间围绕看台楼梯及其大厅分层排列。该解决方案允许分区分层,开放的学习环境强调大厅附近的小组工作,而楼层的外缘则是更集中的学习空间。
At the heart of the interior space is a multi-directional performance stage, which can simultaneously be opened up into three directions with sliding walls: the sports hall, the restaurant, and the central auditorium. The groups of spaces are arranged in layers around the grandstand stairs and its lobby. The solution allows for a zonal hierarchy, with open learning environments that emphasize group work adjacent to the lobby and more focused learning spaces on the outer edges of the floor.

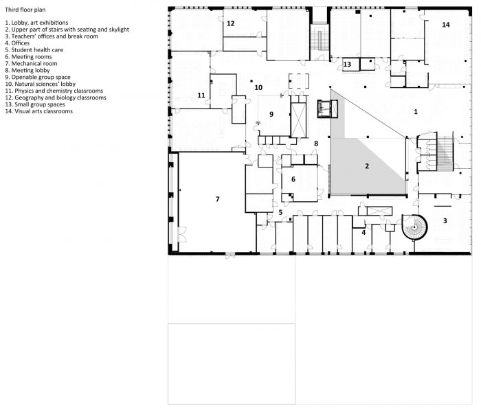
学校的黑匣子多功能戏剧厅、特殊音乐学习空间和舞蹈厅为文化和艺术学习提供了完全特殊的条件。大量的戏剧和表演设备以及精心设计的音响效果是设计的一个特别重点。黑匣子大厅是芬兰唯一一个供学校使用的同类表演空间。
The school's Black Box multi-purpose theatre hall, special music learning spaces, and dance halls provide completely exceptional conditions for cultural and artistic learning. The extensive theatrical and performance equipment as well as carefully designed acoustics have been a particular focus of the design. The Black Box Hall is the only performance space of its kind in Finland that is for school use.

新建筑考虑了周围环境的特殊性,如传统的库奥皮奥网格城市规划和海滩景观。天幕下的楼梯连接了室内和室外空间,另外还作为一个室外礼堂、表演空间和室外教室。天幕还能保护大厅的玻璃表面免受过热和天气条件的影响。Lumit的浅灰色砖块立面对繁忙的街道形成了一个低调的外壳,但在温暖的木质包层中向街道和公园开放。由于大型大厅的外墙没有窗户,砖的外墙通过不同的铺设方式形成了细微的差别,从而创造出趣味。
The new building considers the special features of its surroundings, such as the traditional Kuopio grid city plan and beach landscape. The staircase under the canopy connects the indoor and outdoor spaces, additionally serving as an outdoor auditorium, performance space, and outdoor classroom. The canopy also protects the glass surfaces of the lobbies from excessive heat and weather conditions. Lumit's light grey brick façade forms an understated shell to the busy streets but opens out to the street and parks in the warm wood cladding. As the large halls have windowless façades, the brick facades where nuances with various laying patterns to create interest.

卢米特是一所社区性的、功能性的和安全的高中,空间设计强调视觉连接和开放性,但也强调了撤退和放松的可能性。从周围的街道和广场可以感受到新文化建筑的脉搏,因为从外面可以看到和听到全天候的活动。
Lumit is a communal, functional, and safe high school, where the spatial design emphasizes visual connections and openness, but also the possibility to retreat and relax. The pulse of the new cultural building can be felt from the surrounding streets and squares, as the 24/7 activity can be seen and heard from the outside.



































Architects: Lukkairoinen Architects
Area : 9550 m²
Year : 2022
Photographs :Aukusti Heinonen
Manufacturers : GRAPHISOFT, Aura ST-Team, Fenestra, HSL Group, JELD-WEN Finland , Jukola industries, Knauf, Kone Oyj, Koolmat Desso, Lumir Oy, Mapei Ultratop, Metos, Nordtreat Finland , Purso, Puusepänliike Peltoniemi Oy, Raita Sport Oy, Saint-Gobain Finland, Ecophon, Solibri, Tambest Glass solutions, Tiileri
Structural Engineer : Esa Tuohimaa, Eemeli Tikkanen
Utility Engineer : Granlund Oy / Petri Korhonen (heating, plumbing and air conditioning design), Seppo Mäkelä (electricity and lighting design) Akukon Oy / Tapio Ilomäki (audiovisual design), Timo Risku (mechanical theatre systems design)
Landscape Architect : VSU Maisema-arkkitehdit Oy / Outi Palosaari
Lead Contractor : NCC Finland OY
Fire Protection Engineer : Palotekninen Insinööritoimisto Markku Kauriala Oy / Päivi Myllylä & Risto Ranua
City : Kuopio
Country : Finland