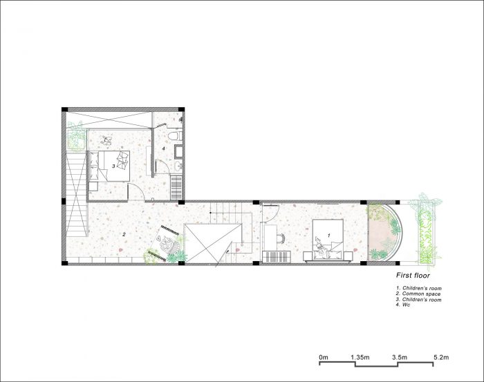
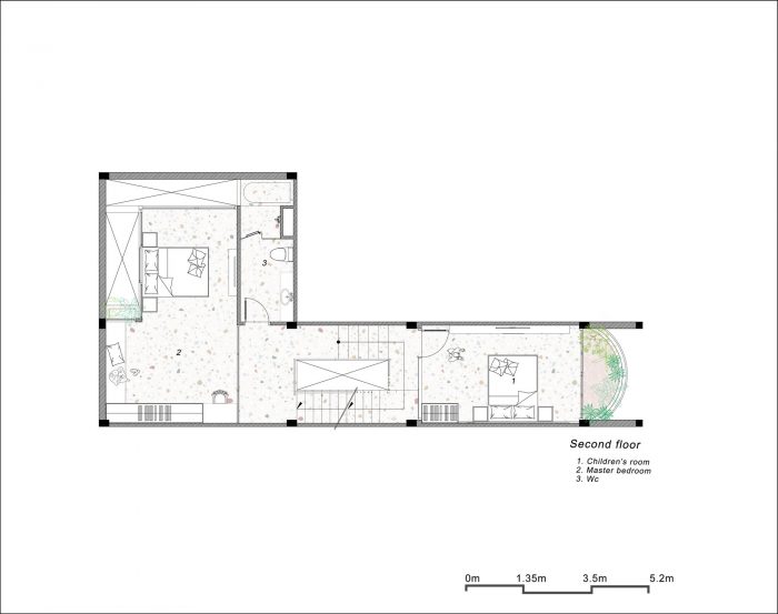
LVS.house在地面面积方面与其他的筒子楼有一个关键的区别。房子有一个狭窄的宽度,在后面打开,类似于字母L。这为建筑的特殊设计提供了一个非常有趣的发展方向。
LVS.house has a key difference from the other tube houses when it comes to the ground area. The house has a narrow width that opens up in the back, which resembles the letter L. This offers a very interesting direction to develop the special design for the construction.






投资者希望所有的公共和个人空间都尽可能的开放,以创造最好的联系,同时也便于监督他们两个孩子年幼时的活动。
The investors want all common and personal spaces to be as open as possible to create the best connection, and also to easily supervise the activities of their 2 kids at a young age.

除了分层住宅的解决方案,我们还注重在垂直方向上利用光线和空气流通。连接空间和天灯被用来创造层,连接自然元素和居住在其中的人。
Beside the split-level home solution, we also focus on exploiting the light and air circulation vertically. The connecting spaces and sky lights are used to create layers that connect the natural elements and the people living in it.


在这个建筑中,我们旨在采用关于材料使用的极简主义方法,希望恢复基本建筑的核心价值,为家庭带来更好更积极的生活。
We aimed for a minimalism approach regarding material usage in this construction, with the hope to revive the core value of basic architecture to bring a better and more positive life to the family.


































Architects: AD9 Architects
Area: 345 m²
Year: 2020
Photographs: Quang Tran
Manufacturers: AutoDesk, Hafele, Jotun, Lafarge Holcim, Toto, Adobe, PT&T, Trimble Navigation, Vietceramics, Xingfa
Architect In Charge:AD9 architects
Design Team:Nguyen Nho, Phan Trong Hiep, Dang Thanh Phats, Nguyen Thanh Hai Nam, Nguyen Duc Truyen, Hua Huu Phuoc
Construction:Tan Thanh Hung Construction Company
Furniture Construction:Dam San
Steel Construction:Nguyen Minh Mechanical Manufacturer Company
Country:Vietnam