该房屋位于特拉维夫历史上保存下来的街区之一。M-house的设计概念是规划一个现代城市别墅,它结合了当地的乡土气息和现代建筑。该方案描述了一个欧洲家庭的度假屋,该家庭常年接待亲戚和朋友。房子必须容纳各种功能,并为居民保持一个 "舒适的氛围"。
The House is set in one of the historically preserved neighborhoods' of Tel Aviv. The M-house design concept was planning a modern urban villa which combines local vernacular with modern architecture. The program has given described a vacation home for a European family which hosts relatives and friends all year long. The house had to accommodate the various function and still keeping a “cozy atmosphere” for the inhabitants.



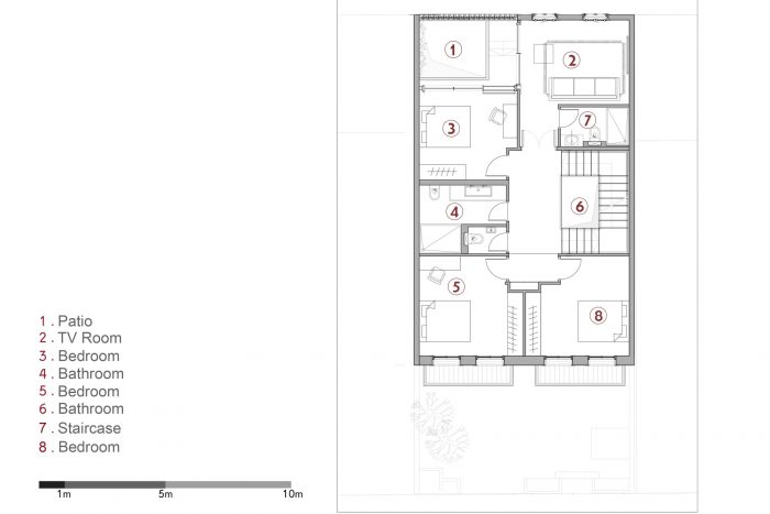
M屋是一个典型的排屋,有两个立面,一个朝北,另一个朝南。外部花园位于南立面;它被规划为客厅内部空间的延伸。北立面被设计成一个天井,作为房子和街道之间的室外门厅。此外,天井作为一个半透明的 "光井",在白天吸引着北方的反射阳光。
M house is a typical row house with two facades one facing north and the other facing south. The exterior garden is located on southern elevation; it was planned as an extension of the interior space of the living room. The northern elevation was designed as a patio that acts as outdoor foyer between the house and the street. Furthermore, the patio functions as a translucent “light well” which attracts reflected northern sunlight during the day.


房屋的底层平面布局被设想为一个 "开放的计划"。该计划集合了房子的大部分公共活动:客厅、阅读角、用餐区和厨房。设计意图是分散这些功能的界限,以便在这些区域之间创造一种视觉上的透明度。一楼的玻璃立面旨在成为一个动态的隔断,允许一个长的视角穿过房子的空间。
The Houses ground floor plan layout was conceived as an “open plan”. The plan assembles most of all the public activities of the house: living room, a reading corner, dining area, and kitchen. The design intention was to diffuse the boundaries of the functions in order to create a visual transparency between these areas. The glass elevation on the ground floor was intended to be a dynamic partition allowing a long perspective through the house spaces.



在室内,设计受到了强烈的现代法国和意大利家具的影响。温暖而柔和的颜色和织物被选择来与房子内部的主要元素--钢制图书馆和楼梯形成对比。楼梯和图书馆的黑色钢元素在室内空间中具有框架性,它将所有的室内景观都框向了外部空间。
On the interior, the design is influenced by a strong sense of modern French and Italian furniture. Warm and soft colors and fabrics were chosen to contradict the main element in the interior of the house the steel library and stairs. This black steel element of the stairs and library has a framing quality within the interior space, it frames all interior views towards the exterior space.



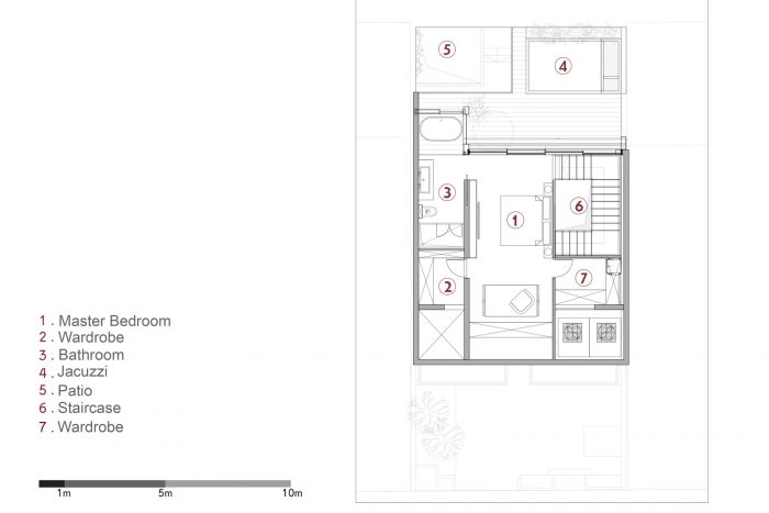
在房子的下部,地下室作为一个音频和娱乐室,被规划在天井附近。上层则是所有的卧室套间。在这些房间里,露台被设计成可以看到南部的花园。建筑师最初的计划是寻找一种建筑语言,将当地的参照物和当代地中海元素结合起来。这些当地元素,如天井、露台和花园,被重新定义为现代的解释。
In the lower part of the house, the basement serves as an audio and entertainment room which was planned adjacent to the patio. The upper floors hold all the bedroom suites. In these rooms, terraces were designed to view the southern garden. The architect's initial plan was to search for an architectural language which combines local references and contemporary Mediterranean elements. These local elements such as a patio, terraces, and garden are redefined with a modern interpretation.
















Architects: Paz Gersh Architects
Area : 350 m²
Year : 2017
Photographs :Neve Tzedek, Amit Giron
Manufacturers : Flexform, Boffi, Poliform, Rimadesio, Fenestra
Photos Styling : Sigal Shachamon
Design Team : Zvi Gersh (principal), Zohar Shvarzberg, May Alon
City : Tel Aviv-Yafo
Country : Israel