该项目是在一个80年代的旧电气元件厂中开发的,位于波尔图市的一个旧的混合使用区(住宅/工业)。设计团队从最初阶段就积极介入,即在以下基础上制定了一个概念。
The project was developed in an old electrical components factory from the 80s, located in an old area of mixed-use (residential/industrial) in the city of Porto. From a very preliminary stage of the process the design team actively intervened, namely in the development of a concept based on:



混合用途项目、酒店和音乐厅的定义。
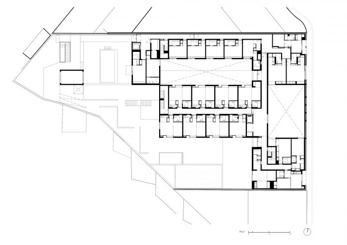
重新利用现有建筑的结构配置,再现新的建筑和以前建筑的三个体量。
保持建筑的主立面,由于其工业特征,并保持波尔图这个地区的一些特征。
将以前被工业建筑占据的大部分现有的有盖区域变成一个有花园和树木的开放空间,使之成为城市的可渗透区域。
the definition of mixed-use program, Hotel, and Concert Hall.
the reuse of the structural configuration of the existing buildings reproducing, the new construction, and the three volumes of the former buildings.
maintaining the building's main facade, owing to its industrial character and keeping some of the characteristics of this area of Porto.
turning a large part of the existing covered area, previously occupied by industrial buildings, into an open space with gardens and trees giving back permeable areas to the city.


项目组和业主确定的计划要求将部分建筑区重新改造成一个酒店,有不同的住宿单位(62个公寓工作室和房间),并安装一个音乐厅、一个音乐图书馆和排练室。音乐 "这一主题是将酒店项目与音乐厅联系起来的融合元素。
The plan defined by the Project Team and the Owner called for the reconversion of part of the built-up area into a Hotel, with different accommodation units (62 - apartment studios and rooms) and the installation of a Concert Hall, a music library, and rehearsal rooms. The theme "music" was the converging element associating the Hotel program with the Concert Hall.



该项目始终专注于向城市开放户外空间以及餐厅、音乐图书馆和音乐厅。现有建筑和外墙的选址被纳入新项目的设计中。其目的是,重新改造不会抹去对现有建筑的记忆,而是加强它们在城市景观中的存在。因此,一个旧工厂变成了一个具有创新项目的多元空间,打算重新美化波尔图市的一个非常退化的地区。
The project was always focused on opening" to the city the outdoor spaces as well as the restaurant, the music library and the Concert Hall. The siting of the existing building and facades was incorporated into the design of the new project. It was intended that the reconversion would not erase the memory of the existing buildings, but rather enhance their presence in the urban landscape. An old factory thus became a multifaceted space with an innovative project that intends to requalify a very degraded area of the city of Porto.


同时,唤起人们对一个时代的怀念,它保持和重视存在前的建筑的记忆。据了解,尽管该建筑的新用途,但其工业遗产的历史价值因此得到了加强。原有的财产保留了其基本元素,如主立面和其殿堂的形状。对于新的规划用途,有必要增加或减少一些元素,但始终保持原有的特点。
At the same time evokes the nostalgia of a time and it maintains and values the memories of pre-existence buildings. It is understood that the historical value of the industrial heritage of the building was thus reinforced despite its new use. The original property had its fundamental elements preserved, such as the main façade and the shape of its naves. For the new planned uses, it was necessary to add or subtract several elements but always maintain the pre-existing characteristics.


项目组力图保持设计的简洁,以整体语言为基础,使用最少的材料。在内部,反复使用混凝土(裸露的石板和地板)、石灰砂浆(在墙壁上)与天然木材细节(开口和配件)形成对比,以及实心砖(在墙壁的一些特殊区域)。
The Project Team sought to keep the design clean and simple, based on a monolithic language and using the smallest number of materials. Inside, the recurrent use of concrete (exposed slabs and floors), lime mortar (on the walls) contrasting with natural wood details (openings and fittings), and solid brick (in some special areas on the walls).



在室外,石灰砂浆、木材和实心砖的使用,都已经用于室内空间,创造了一种连续性的感觉。有不同单元的房间,Arquitectos Aliados负责室内设计包,包括FF&E(家具/照明设计)。
Outside, the use of lime mortar, wood, and solid brick, all already used in interior spaces, creates a sense of continuity There are different units of rooms and Arquitectos Aliados were responsible for the interior design package including FF&E (furniture/lighting design).


















Architects: Arquitectos Aliados
Area : 4890 m²
Year : 2022
Photographs :Alexander Bogorodskiy
Coordination : Susana Leite
Project Team : Luís Barbosa, Clara Araújo, Margarida Martins, João Farinha
Client : MOUCO
Engineering : Encep, Jfa, Speed of Light, Niluft, Amplitude, Exactusensu, Blackfrog / Arq. José Prata
Landscape Design : Arquitectos Aliados, Lda / Susana Leite
City : Porto
Country : Portugal