一个现代的公寓,与Brasíliadz初期的集体住房的现代设计有明确的联系。这就是我们的客户当时给我们的指导,今天我们最亲爱的朋友,在开始建筑设计时,改造位于巴西利亚中部的公寓。一旦确立了设计的概念,我们的意图是达成一个解决方案,以满足现代生活的动态和巴西利亚住宅规模的特殊生活方式,由卢西奥-科斯塔理想化。
A contemporary apartment, with a clear connection to the modern design of collective housing in the beginning of Brasíliadz. That was the guidance, which our clients gave us at the time, today our dearest friends, in the beginning of the architectonic design to remodel the apartment, located in middle of Brasília. Once establish the concept of the design, the intentions were to reach out to a solution that appease the dynamic of modern life and the peculiar way of living in the residential scale of Brasília, idealized by Lúcio Costa.



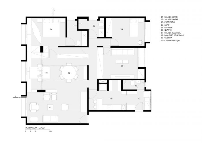
自由的视野,使巴西利亚的DzUrbsdz成为它的特点,是浸透在巴西利亚的Estúdio MRGB设计中的几个特点。清楚地出现或多或少,取决于建筑师在行使日常工作中所面临的主题。至于公寓MA的流动性、渗透性和空间的宽松性在社交空间,如客厅、餐厅和工作空间中明显存在。所有的空间都是完全整合的,边界的配置是微妙的,保护每一个空间的功能。视野没有任何障碍,所有的房间都允许他们充分理解,清晰和客观的社交空间。我们的客户和我们的Estúdio MRGB,对60年代的设计的尊重是由家具来保证的,家具具有重要的作用,并创造了完美和预期的气氛。这些整合空间的作品是由最伟大的大师,建筑师Sérgio Rodrigues和Paulo Mendes da Rocha设计的。
With the free view, spatial generosities that make the DzUrbsdz of Brasília what it is, are a few characteristics that are impregnated in the design of the Estúdio MRGB in Brasília. Clearly appears more or less, depending on the theme that the architects face during the exercise of the daily job. As for the apartment MA the fluidity, permeability and spatial generosity are there clearly in the social spaces such as living room, dining room and work space. All the spaces are fully integrated, and the boundaries are configured subtlety, protected each and every one there functions. The view has no obstacles, all rooms allow their full comprehension, clear and objective of the socialization spaces. The esteem of our clients and ours of the Estúdio MRGB, for the design of the 60’s are insured by the furniture that has an important role, and creates the perfect and intended atmosphere. The pieces that integrate the spaces were designed by the greatest masters, architect Sérgio Rodrigues and Paulo Mendes da Rocha.


弗洛伦斯-诺尔和查尔斯-雷-伊姆斯也做出了同样的贡献,使空间与当代家具、巴西新一代有前途的设计师贾德-阿尔梅达和费尔南多-普拉多的概念完美和谐。主卧室和社交区之间的边界是由位于餐厅后面的一块木板界定的。在这块大木板上有一扇通往主卧室的门,它与木板上的垂直木条融为一体。这些元素赋予了隐私、舒适和必要的健康,使空间的私密性和社交性得到完美利用。在面板的另一侧是一个精心设计的画廊,以加强夫妇俩收集的艺术之美。与城市的狭长关系,一块带有几何形状的个性化瓷砖面板是由Estúdio MRGB设计的,参考了伟大的艺术家Athos Bulcão,在巴西利亚市的主要建筑中可以看到,成为所有建筑师、艺术家和巴西利亚市民的参考。
Florence Knoll a Charles Ray Eames contributes equally, bringing the spaces the perfect harmony with the contemporary furniture, concepts of the new and promising generation of Brazilian designers, Jader Almeida and Fernando Prado. The borderline between the master bedroom and social area, are defined by a wooden panel, located in the back of the dining room. Integrated into the large wooden panel a door to the master bedroom, which blends with the vertical wood strips of the panel. Those elements grant privacy, comfort and the necessary wellbeing for the perfect use of the spaces intimate and social. On the opposite side of the panel is located a gallery carefully design to enhance the beauty of the art collected by the couple. The narrow relation to the city, a panel of personalized tiles with geometric forms was designed by Estúdio MRGB in reference to the great artist Athos Bulcão, which can be seen in the main buildings of the city of Brasília, became a reference for all architects, artist a citizen of Brasília.









Architects: Estúdio MRGB
Area : 140 m²
Year : 2015
Photographs :Haruo Mikami
Manufacturers : Estúdio MRGB, GR interiores, Sonotto - Legneto
Construction : WW Arquitetura & Construção
Collaborators : Ana Orefice, Rodolfo Marques, Flavia Groba
Authors : Igor Campos, Hermes Romão
City : Brasília
Country : Brazil