在莫卡建筑事务所为位于巴西南部库里蒂巴市中心的产品设计机构Mad Creative设计的项目中,色彩、纹理和不寻常的材料的混合界定了200多平方米的空间。该机构负责全国范围内主要品牌的开发,向由合伙人Ana Sikorski和Katia Azevedo领导的建筑事务所求助,以创造一个比以前大三倍的空间。这个项目的动机是团队的扩大,主要是回归到传统的办公程序。安娜解释说:"他们在一个较小的工作室,要求我们开发一个空间,为员工提供更多的生活质量,并为在那里工作的人提供舒适的环境"。
A mix of colors, textures and unusual materials define more than 200 sq m, in Moca Architecture's project for Mad Creative, a product design agency, located in downtown Curitiba, south of Brazil. Responsible for the development of major brands nationwide, the agency turned to the architecture office, led by partners Ana Sikorski and Katia Azevedo, to create a space three times larger than the one previously occupied. The project was motivated by the expansion of the team and, mainly, by the return to the traditional office routine. “They were in a smaller studio and called us to develop a space that would provide more life quality for employees and comfort for those who work there”, explains Ana.






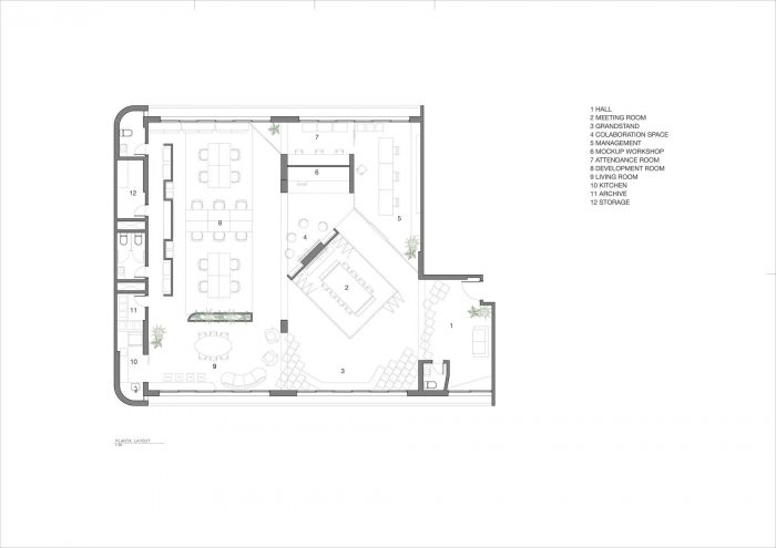
该项目的主要目标是创造一个环境,作为家庭办公室的延伸,以促进员工的回归并激发他们的创造力和生产力。为此,我们开发了彩色划分的区域,为小组活动、工作动态、讨论、集体用餐和休息时间提供空间。环境的舒适性和流动性是项目的主要出发点。在会议室里,开发了一个折叠门系统来整合整个区域。在它的正前方,还有一个看台,为大型演讲提供坐席,使环境更加包容和放松。
The main goal of the project was to create an environment that would function as an extension of the home office, to facilitate the return and instigate the creativity and productivity of the employees. For this purpose, color-divided areas were developed, with space for group activities, work dynamics, discussions, collective meals, and resting time. The comfort and fluidity of the environment were the main starting points for the project. In the meeting room, a system of folding doors was developed to integrate the entire area. Right in front of it, there is also a grandstand that offers sitting for big presentations and makes the environment more inclusive and relaxed.


正如你在摩卡的许多项目中看到的那样,颜色在空间的划分和环境的个性中起着根本性的作用。在这种情况下,有必要考虑到光线和颜色在空间中的入射情况,思考特定的照明,使其在印刷测试和产品开发过程中不会干扰或扭曲结果。
As you can see in many of Moca's projects, the colors played a fundamental role in the division of spaces and in the personality of the environment. In this case, it was necessary to take into account the incidence of light and color in the space, thinking about specific lighting that would not interfere or distort the results in the printing tests and in the product development process.

寻找不寻常的材料是 "疯狂创意 "的业主的要求。据建筑师说,"他们提出了一个具有城市风格的环境建议,与品牌美学相匹配,并带来创新和创意,用不明显的材料给人以惊喜"。彩色金属结构、蓝色地毯、油漆天花板、胶合板和中密度纤维板:颜色和纹理的混合占据了整个空间,在物业的入口处就能看到一个用粉色胶合板制成的门户,旨在展示和储存该机构开发的项目。这个空间不仅仅是一个工作场所,它是一个品牌声明,激励并欢迎其客户和员工。
The search for unusual materials was a requirement of Mad Creative’s owners. According to the architect, “they came up with a proposal for an environment that had an urban style that matched the brand aesthetics and brought innovation and creativity, surprising with materials that were not obvious”. Colored metallic structures, blue carpet, painted ceilings, plywood, and MDF: the mix of colors and textures takes over the space and is seen right at the entrance of the property, in a portal made with pink plywood, designed to display and store the projects developed by the agency. More than a workplace, the space is a brand statement that inspires and welcomes its customers and employees.














Architects: Moca Arquitetura
Area : 2820 ft²
Year : 2021
Photographs :Eduardo Macarios
Manufacturers : Schneider Electric, Deca, Rocca, Tintas Suvinil
Lead Architects : Ana Sikorski e Katia Azevedo
Reform Project : Luiz Motta, Andressa Machado, Fernanda Gonçalves, Aline Berto, Lilian Gasparatto, Fernanda Amorim, Eduardo Lobato, Maria Bastazini
City : Centro
Country : Brazil