通过2014年举行的竞赛,我们被指定设计马格达林学院的新学院图书馆。新建筑用一个更大的图书馆取代了相邻的一级保护建筑佩皮斯大楼中狭窄且设备简陋的设施,其中包括一个档案设施和一个图片画廊。
We were appointed to design Magdalene College’s New College Library through a competition held in 2014. The new building replaces cramped and poorly equipped facilities in the adjacent Grade 1 Listed Pepys Building with a larger library, incorporating an archive facility and a picture gallery.




新建筑选址在一个高度敏感的历史环境中,沿着大师花园的封闭空间和研究员花园的更开放空间之间的界墙。它的位置扩展了建筑和庭院的四边形排列,这些建筑和庭院是从学院的修道院起源发展而来的。
The new building is sited in a highly sensitive historic setting, along the boundary wall between the enclosed space of the Master’s Garden and the more open space of the Fellows’ Garden. Its placement extends the quadrangular arrangement of buildings and courts that developed from the monastic origins of the college site.

图书馆从第二庭院进入,穿过一个小门,在一棵古老的紫杉树下走出来。从这个阴暗的角落,你可以感觉到在草坪边缘的河流的存在。我们想让建筑成为一个逐渐上升的旅程,走向光明。在上升的过程中,会有一些房间、画廊,以及一些可以拿着书的地方。在顶部,可以看到草坪上的水面。我们想为人们创造各种不同的方式,让他们根据自己的喜好来定位。你可以坐在一个大厅里,一个小房间里,或者把自己塞进一个小的私人空间里。
The library is approached from Second Court, through a little doorway, and out under an old Yew tree. From this shady corner, you sense the presence of the river opening out at the edge of the lawn. We wanted to make the building a journey that gradually rose up towards the light. On the way up there would be rooms, galleries, and places to perch with a book. At the top, there would be views out over the lawn towards the water. We wanted to create a variety of ways for someone to situate themselves depending on inclination. You might sit in a grand hall, a small room, or tuck yourself into a tiny private niche.

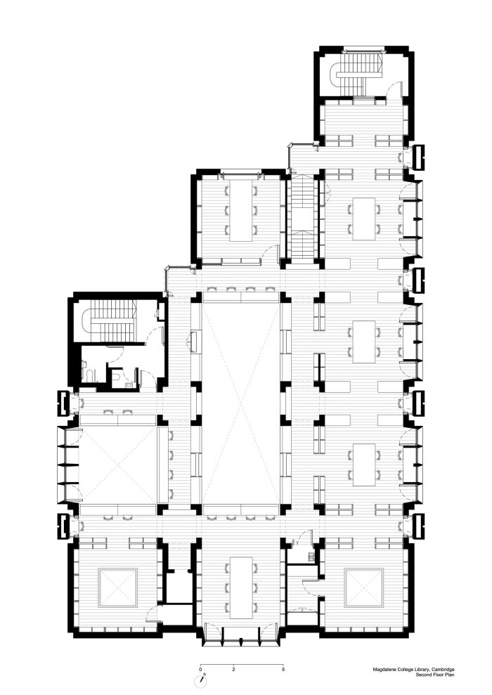
对我们来说,好的建筑会让各种体验与潜在的秩序相对应,从而产生和谐。新图书馆是建立在相互关联的元素的逻辑格子结构之上的。一个有规律的砖烟囱网格支撑着地板和书架,并将暖空气带入建筑内进行通风。在每一组四个烟囱之间,都有一个屋顶灯笼,将光线引入下面的空间:空气上升,光线下降。
For us, good architecture plays a variety of experiences against underlying order so as to produce harmony. The new library is based upon a logical latticework of interrelated elements. A regular grid of brick chimneys supports the floors and book stacks and carries warm air up to ventilate the building. Between each set of four chimneys, there is a roof lantern bringing light down into the spaces below: air rising and light falling.


这种有规律的排列产生了一种自然的层次结构,狭窄的区域用于流通,宽阔的区域用于阅读室。承重砖垂直结构的划分,支持跨度工程木材的水平结构被用来加强组织方案。这创造了一个经纬度的基本模式,我们希望使用该建筑的人能够直观地理解。
This regular array produces a natural hierarchy with narrow zones for circulation and wide zones for reading rooms. The delineation of load-bearing brick vertical structure, supporting spanning engineered timber horizontal structure is used to reinforce the organizational scheme. This creates an underlying pattern of warp and weft that we hope can be understood intuitively by people using the building.



新图书馆的材料和形式来自于它的环境和学院的要求,即建造一个高度耐用和可持续的建筑。旧的学院建筑是承重砖,有木质地板和坡屋顶结构。砖制烟囱使天际线生动起来,石制窗花使人眼前一亮。我们试图用这套建筑元素来建造新的建筑。我们用木材而不是石头做窗框,随着时间的推移,窗框会变成像石头一样的银灰色。
The materiality and form of the new library are derived both from its context and from the College’s brief to make a highly durable and sustainable building. The older college buildings are of load-bearing brick, with timber floors and gabled pitched roof structures. Brick chimneys animate the skyline and stone tracery picks out the fenestration. We tried to make the new building from this set of architectural elements. We used timber instead of stone for our window tracery, which will weather over time to become a silvery grey like the stone.




我们与建筑商仔细合作,寻找各种砖块,以配合学院老建筑的挂毯式质量。同时,这是一座现代化的建筑,采用了创新的被动式通风策略,以最大限度地减少使用中的能源,并采用工程木材结构来减少建筑中的碳含量。
We worked carefully with our builders to find a variety of bricks that would match the tapestry-like quality of the older College buildings. At the same time, this is a modern building that employs innovative passive ventilation strategies to minimize energy in use and engineered timber structure to reduce carbon embodied in its construction.




























Architects: Niall McLaughlin Architects
Area : 2000 m²
Year : 2021
Photographs :Nick Kane
Manufacturers : Eurban, Junckers, Neue Holzbau AG, Schüco, Reynaers, VMZINC
Main Contractor : Cocksedge
Structural Engineer : Smith and Wallwork
Project Manager : Savills
Quantity Surveyor : Gleeds
Project Associate : Tim Allen-Booth
Project Architect : Claire McMenamin
Wood Supplier Internal Oak Joinery : James Latham
Acoustics Consultant : Max Fordham
M&E Consultant : Max Fordham
Fire Engineer : MLM
Building Control : MLM
Internal Joinery : Wedd Joinery Limited
City : Cambridge
Country : United Kingdom