在家的感觉,同时体现国际咨询公司Accuracy的独特的企业形象:这是L'Abri通过设计精致的工作空间来迎接的挑战。基于Maison Accuracy内住宅项目的准则,建筑师为员工和访客提供了温暖而慷慨的办公室。
Feeling at home, while embodying the unique corporate identity of the international consulting firm, Accuracy: this is the challenge that L'Abri took up by designing refined workspaces that rhyme with conviviality. Building on the codes of residential projects within Maison Accuracy, the architects offer warm and generous offices for employees and visitors alike.





L'Abri和Construction Modulor的团队遵循其设计-建造方法,从项目的最初阶段就开始参与,为这家欧洲咨询公司的蒙特利尔新办公室寻找理想的地点。当远程办公的热潮促使许多公司减少他们的工作区域时,Accuracy做出了大胆的选择,搬入一个更大的空间。建筑师根据该公司的运营情况采用分析方法,提出了一个基于灵活性、舒适性和创建公共空间的新布局模式。
Following its design-build approach, the team of L'Abri and Construction Modulor got involved from the earliest stage of the project by participating in the search for the ideal location for the European consulting firm's new Montreal offices. Accuracy made the bold choice to move into a larger space at a time when the craze for teleworking has prompted many companies to reduce their work areas. Applying an analytical approach based on the company’s operations, the architects proposed a new layout model based on flexibility, comfort, and the creation of common spaces.


离开市中心的高楼,定居在蒙特利尔老城,Accuracy选择了一个充满特色和历史的地方,这给建筑师们带来了强烈的灵感。无论是将新的体量与原来的工厂地板天花板仔细分离,还是采用天然材料,如胡桃木和石灰膏,设计都突出了这个建于1868年的前仓库的建筑遗产,其坚固的砖石墙和木质及钢结构。在两个巨大的天窗的覆盖下,形成了内部庭院,宽敞的种植空间沐浴在自然光中,为其注入了独特的特征和特殊的空间质量,这一点在内部建筑中得到了放大。
Leaving a downtown tower to settle in Old Montreal, Accuracy chose a place full of character and history that strongly inspired the architects. Whether with the careful separation of the new volumes from the original mill floor ceilings, or the natural materials, such as walnut and lime plaster, the design highlights the architectural heritage of this former warehouse, built in 1868, with its solid masonry walls and its wood and steel structure. Covered by two monumental skylights that create inner courtyards, the generously planted space bathes in natural light, injecting a unique character and an exceptional spatial quality into it, which is magnified by the interior architecture.

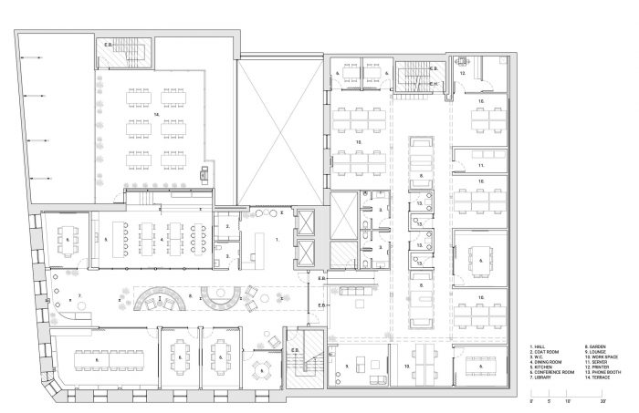
该项目通过两翼展开,其中一个是公共客户区,另一个是员工的私人区域。这种分布使团队有更大的亲密感和自由,以鼓励放松和归属感。选择浅色调、简洁的饰面和休闲家具突出了轻松的氛围。在开放式办公室和传统的封闭式会议室模式之间发展一种混合概念,L'Abri设计了灵活的布局,优化了面积,同时促进了团队合作和生产力。
The program unfolds through two wings hosting a public client area, and a more private section for employees. This distribution allows the team to have greater intimacy and freedom to encourage feelings of relaxation and belonging. The choice of lighter tones, sober finishes, and lounge furniture accentuates the relaxed atmosphere. Developing a hybrid concept between open-plan offices and the traditional model of closed conference rooms, L'Abri designs flexible layouts that optimize square footage, while promoting teamwork and productivity.

在客户侧,胡桃木温暖地装扮着各种会议室和公共区域,带来了个性和优雅,但又不至于陷入浮夸。中央的定制家具的曲线与周围的正交形状形成对比,给项目带来独特的平衡和签名。
In the client wing, walnut warmly dresses the various conference rooms and common areas, bringing character and elegance without falling into ostentation. The curves of the central, bespoke furniture contrast with the surrounding orthogonal shapes, giving a unique balance and signature to the project.

为公司整合新的组织和运营原则,Maison Accuracy提供了明亮、舒缓和舒适的办公空间,在这里,美感激发并鼓励人们回到工作中来,建立更多的人际和协作关系。
Integrating new organizational and operating principles for the company, Maison Accuracy offers bright, soothing, and comfortable office spaces, where beauty inspires and encourages a return to work in person for more human and collaborative relationships.












Architects: Atelier l'Abri
Year : 2022
Photographs :Raphaël Thibodeau
Manufacturers : Artemide, Santa & Cole, Sistemalux, Cime, Planteca
Main Contractor : Modulor
Client : Accuracy
Project Team : Jade Lachapelle, Keyan Le, Pia Hocheneder, Nicolas Lapierre, Mik Kukulsky, Kelly Belzy, Julien Latour
City : Montreal
Country : Canada