马尔默体育学校位于马尔默的体育场区。它是一所具有体育特色的学校,有540名7-9年级的学生。它提供12种不同的运动,与学校的课程相结合。这是该市与马尔默一些领先的体育俱乐部之间的合作,它使学生能够专注于他们选择的运动以及他们的学术工作。这似乎是一个很好的安排,该学校在马尔默排名第一,吸引了来自全市以及市外其他地区和城镇的不同背景的学生。
Malmö Sports School is situated in the stadium area in Malmö. It is a school with a sports profile, home to 540 pupils, grades 7-9. It offers 12 different sports integrated with the school’s curriculum. It is a collaboration between the city and some of the leading sports clubs in Malmö and it enables the pupils to focus on their sport of choice as well as their academic work. This seems to be an excellent arrangement and the school is ranked as number one in Malmö and attracts pupils from different backgrounds from all over the city as well as other areas and towns outside the municipality.



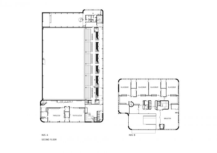
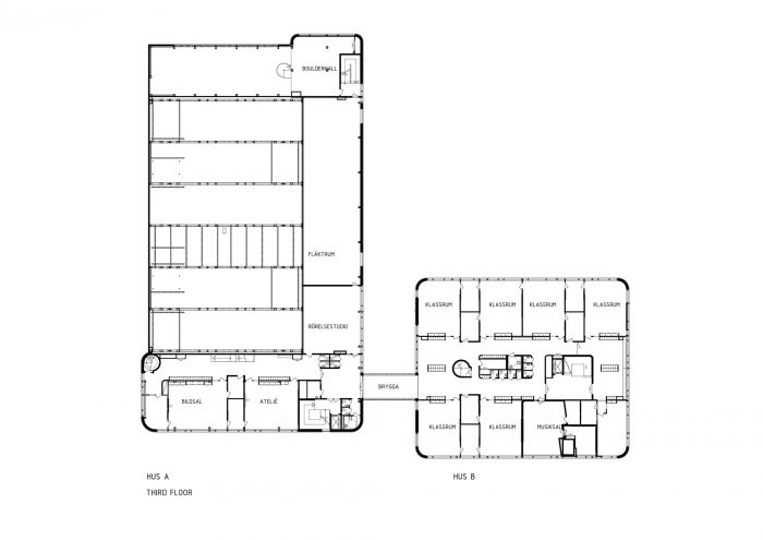
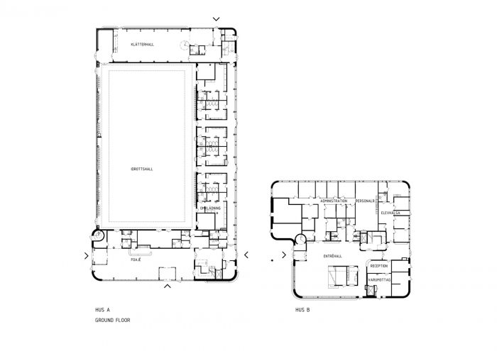
与学校建筑融为一体的是一个可容纳500名观众的体育馆和一个攀岩馆,在幕墙后面有一个14米高的攀岩墙。这创造了一个从外部向北立面的壮观景色。
Integrated with the school building is a gymnasium with seats for 500 spectators and a climbing hall with a 14 meters high climbing wall displayed behind a curtain wall. This creates a spectacular view from the outside toward the north façade.


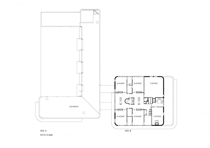
该项目的挑战是在一个相对较小的场地上为540名学生创建一所学校。这也包括满足人行道和自行车道的要求,让消防车可以直接通过该地块,以及保护许多现有的树木,由于地下设施的限制,以及对一个有凝聚力的学校庭院的要求。这导致了一所五层楼的学校被分成两座建筑,以便行人和自行车道可以穿过该地块。这两座建筑在第三和第四层用玻璃桥连接。学校的部分操场被放置在第四层的体育馆屋顶上。
The challenges of the project were to create a school for 540 pupils on a relatively small site. This also included meeting the requirements for a pedestrian and bicycle path with access for fire trucks going straight through the plot, as well as conservation of many existing trees, restrictions due to underground installations, and requirements for a cohesive schoolyard. This resulted in a school in five stories divided into two buildings so that the pedestrian and bicycle path could run through the site. The two buildings are connected on the third and fourth levels with glass bridges. Part of the schoolyard is placed on the roof of the gymnasium on level four.



学校位于体育场区,因其60年代的标志性白色混凝土体育建筑而闻名。新建筑的设计是基于它所容纳的活动,以及该地区和周围现有的建筑。学校的建筑散发着活力和活动,同时也给人以友好的印象。该建筑采用白色混凝土外墙和圆角设计,与历史相联系,同时有助于发展该地区的独特性。
The school is located in the Stadium Area famous for its iconic white concrete sports buildings from the 60s. The design of the new building is based on the activities it is housing as well as the area and existing surrounding buildings. The architecture of the school radiates energy and activity and at the same time, it gives a friendly impression. The building is designed with white concreate facades and round corners which links to the history and simultaneously contributes to developing the uniqueness of the area.


窗户和遮阳板像跑道一样一直环绕着建筑。暖色调的元素显示出这是一个儿童和青少年的活动场所。该建筑的设计也是为了提高缺乏住宅楼的地区的安全性。新的学校和体育建筑没有封闭的外墙,这使它与周围的环境相互影响。即使在较暗的时间,窗户也能照亮这个地区,显示出它的活动。
The windows and sunscreens are running all the way around the building like running tracks. Elements of warm accent colors show that it is an active place for children and teens. The building is also designed to improve the safety in areas that is lacking residential buildings. The new school and sports building have no closed facades which makes it interact with its surroundings. The windows light up the area even during the darker hours, displaying the activities it houses.













Architects: Chroma Arkitekter AB
Area : 11300 m²
Year : 2021
Manufacturers : Aprobo, Malagris, Tantum
Lead Architects : Ulla Nordström, Annika Markstedt
Structural Engineering Company : Tyrens
Landscape Collaborator : Sweco
Interior Architect : Sara Bruck
Engineer Consultant : Simon Carlsson
Client : Stadsfastigheter, Malmö kommun
City : Väster
Country : Sweden