这个空间的使用者是一位长期研究错颌畸形的正畸医生。位于Dongtansunhwan-daero 127-5,这个地方是根据她的背景和特点自然设计的。我们在生活中有16颗上下牙齿,所以总共有32颗牙齿。在牙齿生长的顺序上有一个共同的规则,其中有一个有趣的部分。
The user of this space is an orthodontist who has been researching malocclusion for a long time. Located at Dongtansunhwan-daero 127-5, this place is naturally designed according to her background and characteristics. We have 16 upper and lower teeth in our lives, so in total 32 teeth. There is a common rule in the order when teeth grow which has an interesting part.



牙齿开始生长要从口腔内的第6颗牙齿开始,也叫第一颗臼齿。然而,在上层牙齿的情况下,情况有些不同。在某些情况下,第4颗前臼齿在第3颗犬齿之前就开始生长,这就把第3颗牙齿挤了出来,或者导致第3颗牙齿伸出来。因此,每个人在一生中都会自然而然地经历错位,而不是源于环境、习惯和遗传等原因。让我们把注意力集中在我们生命中暴露于错牙合畸形威胁的时间上。
Teeth start growing to start with the 6th tooth from inside the mouth, also called the first molar tooth. However, in the case of the upper teeth, it is a little different. In some cases, the 4th premolar tooth starts growing before the 3rd canine tooth, which pushes the 3rd out or causes the 3rd tooth to stick out. Therefore everyone will naturally experience a malocclusion during their lives not deriving from reasons like environment, habits, and genetics. Let’s focus on the time in our lives when we exposed to the threat of malocclusion.



牙齿将被编号为1至8,从前牙开始向口腔内部延伸。1号:第一颗门牙/2号:第二颗门牙/3号:第三颗犬齿/4号:第一颗前臼齿/5号:第二颗前臼齿/6号:第一颗磨牙/7号:第二颗磨牙/8号:第三颗磨牙(智齿
Teeth will be numbered 1 to 8 starting from the front tooth towards the inside of the mouth. No.1: 1st front tooth / No.2: 2nd front tooth / No.3: 3rd canine tooth / No.4: 1st premolar tooth / No.5: 2nd premolar tooth / No.6: 1st molar tooth / No.7: 2nd molar tooth / No.8: 3rd molar tooth (wisdom tooth)

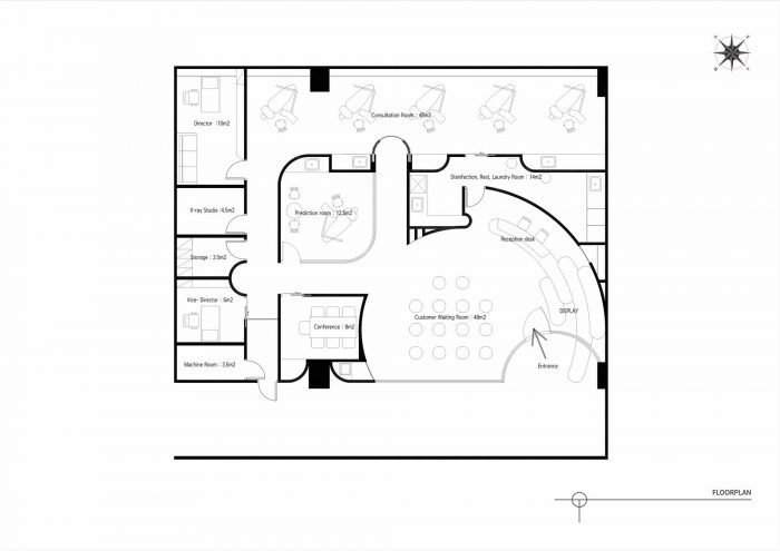
当列出与他们每个人相关的符号时,从第6颗牙齿开始,在第3和第4颗牙齿的偏位上应用圆圈,可以得到三圆几何形状。我们决定将其应用于这个空间。圆形重叠的外部和内部空间将被含糊地定义。限制直线,在狭小的空间内放置曲线,使审美最大化。
When listing symbols associated with each of them, three-round geometric shapes can be obtained when circles are applied to the offbeat of the 3rd and 4th teeth starting from the 6th tooth. We decided to apply this to this space. The external and internal space in which the rounds overlap will be defined vaguely. Limiting straight lines and placing curves inside the tight space maximize esthetic.

功能性因素减少了,但审美稳定性得到了最大化。白色的颜色加上暖色的灯光,有明显磨损的水磨石家具,插在墙上的木制配件和充满生机的植物,为来这里治疗的人提供了轻松和放松的感觉。
Functional factors are reduced but esthetic stability is maximized. White-colors with warm-colored lights, terrazzo furniture with clear abrasion, wooden fittings stuck in walls and plants full of vitality provide a sense of ease and relaxation for those who visit this place for treatment.







Architects: STARSIS
Area: 204 m²
Year: 2019
Photographs: Hong Seokgyu
Manufacturers: Ikea, LIMAS, E plus, JEVISCO
Lead Architect: Park Hyunhee
City:Hwaseong
Country:South Korea