Malpyo,一个具有悠久历史的家族企业,跨越了三代人,正在向化妆品领域扩张。URBANTAINER的任务是通过新的公司总部来捕捉公司向现代和趋势导向的品牌转型的精神。设计概念的出发点是克服工厂作为生产场所的字面概念,通过有效利用航运集装箱的情感唤起色彩,创造一个象征性地承载公司新品牌形象能量的空间。Malpyo的新总部由两部分组成,办公区和生产设施。为了创造一个有效的、具有独特个性的空间,办公区是用海运集装箱建造的。
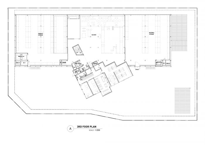
Malpyo, a family business with a long history spanning over three generations, is expanding into the cosmetics sector. URBANTAINER’s mission is to capture the spirit of the company’s transition to a modern and trend-oriented brand with the new company headquarter. The starting point for the design concept was to overcome the literal notion of a factory as a place of production by creating a space that symbolically carries the energy of the company’s new brand identity, by effectively utilising shipping containers in emotion-evoking colours. Malpyo’s new headquarter consists of two parts, the office area and the production facilities. In order to create an efficiently built space with a unique character, the office area was built with shipping containers.



由于其规模庞大,生产设施是基于钢架结构,并涂有集装箱表皮。这座建筑的独特之处在于两部分的安排--办公区是有角度的,就像它从生产大厅的对角线上突出来一样。在重新设计之前,工厂是一个典型的生产,完全与外界隔绝,办公区和生产区之间有明显的分隔。在这种设置中,机器是为制造商品的唯一目的服务的。URBANTAINER的设计策略的一个重要部分是旨在打破这种二元对立。办公室和生产区之间的隔离墙是由玻璃制成的,提供了一个从办公室到工厂的透明视野,反之亦然。
Due to its large scale, the production facilities are based on a steel-frame structure, coated with container skin. What makes this building unique is the arrangement of the two parts–the office area is angled as if it diagonally protruded from he the production hall. Before the redesign, the factory was a typical production, completely shielded to the outside world, and with a clear separation between office space and production area. In this setup, machinery served the sole purpose of manufacturing goods. An important part of URBANTAINER’s design strategy is aimed at breaking up this dichotomy. The separating wall between the office and production areas is made of glass and provides a transparent view from the office to the factory and vice versa.

机器现在成为了空间内部设计的一部分。构成工厂核心的所有程序,从制造到物流,都变得清晰可见,并成为向参观者传达品牌精髓的关键部分。设计还延伸到生产过程的功能层面。为了最大限度地提高生产效率,现在的空间布局通过考虑工人的移动和优化空间利用,满足了从原材料到达、制造到成品的完整生产链的流动。在新的设计布局下,原材料和成品部分的独立交付和装载区保证了工作流程的顺畅和不间断。
The machinery now becomes part of the interior design of the space. All procedures that make up the heart of the factory, from manufacturing to logistics, are made visible and become a crucial part of communicating the brand essence to visitors. The design also extends to the functional dimension of the production process. In order to maximize production efficiency, the space layout now accommodates the flow of the complete production chain from arriving raw materials to manufacturing to the finished product by taking into account workers’ movements and optimising space utilisation. With the new design layout, separate delivery and loading zones for the raw materials and the finished product section guarantee a smooth un-interrupted workflow.


对工人来说,另一个优化点是增加了直接通往他们的休息设施的通道,以减少不必要的通道。Malpyo总部大楼建设的一个早期挑战是该建筑的特殊位置。虽然位于一条主街和一条小街之间,但由于当地的交通法规,不可能从主路进入。由此产生的从侧街进入大楼的必要迂回和混乱的外墙排列给游客带来了极大的不便。解决这个问题的方法是将建筑体沿陡峭的对角线轴线排列,从主干道上打开立面的视野,使游客能够立即找到通往主入口的方便通道。
Another point of optimization for the workers is the addition of direct access to their rest facilities to cut unnecessary passages. One early challenge for the construction of the Malpyo headquarter building was the characteristic position of the building. While located between a main and a side street, access from the main road was not possible due to local traffic regulations. The resulting necessary detour to access the building from the side street and confusing facade alignment presented an enormous inconvenience for visitors. This problem was solved by aligning the building mass along a steep diagonal axis which opens up the facade view from the main road, allowing visitors to instantaneously find easy access to the main entrance.






















Architects: URBANTAINER
Area : 4797 m²
Year : 2017
Photographs :Seungbok Lee
Architecture Design : Jiwon Baik, Jungsic Kwon, Jihae Ock
Mechanical Engineer : ENG Energy Design Lab
Structure Engineer : Gawon Structural Engineers Co.Ltd.
Modular Construction : Jesam Construction Co.
Electrical Engineer : Kunil MEC
Landscape Design : URBANTAINER
Exterior Color & Signage : Yejee Lee, Minjeong Choi
Construction : Dasan Engineering Co.Ltd.
Client : MALPYO
Interior Design : Donhee Yoon, Dongwook Kim
City : Gimpo-si
Country : South Korea