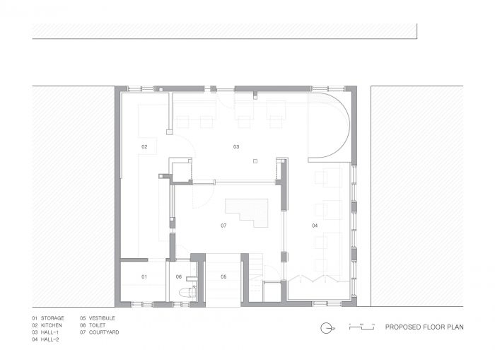
餐厅 "mångata "在瑞典语中的意思是 "月光在水上的路状反射"。我们对 "mångata "的做法是共存。这家餐厅提供软性和硬性的服务,并通过课程膳食提供各种体验。
厨师有很好的能力使用相反的成分,以和谐的方式共存于一起。我们试图为他的食物做一个合适的外壳和合适的空间标识。
Restaurant ‘mångata’ means ‘the roadlike reflection of moonlight on water’ in swedish. Our approach for the ‘mångata’ was coexistence. This restaurant serves softness and hardness with variety of experience through the course meal.
The Chef had a great ability of using opposite components to coexist together with a harmony. We tried to make a right shell for his food with a right space identity.




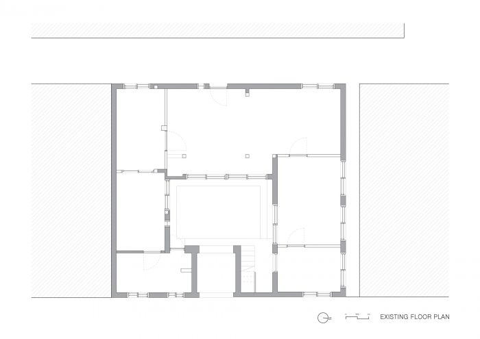
幸运的是,他的餐厅新址是一个非常古老的韩屋(韩国传统房屋)。我们决定用原始韩屋的氛围给人以现代感,以代表 "共存"。原始韩屋通常有非常粗糙的表面处理和弯曲的结构。我们使用了混凝土,使其有一个干净的表面和粗糙的纹理。
Luckily his new site for the restaurant was a very old hanok (Korean traditional house). We decided to give a modern touch with an original hanok atmosphere to represent ‘coexistence’. Original hanok usually have very rough finishes with curvy structure. We used concrete to have a clean finish with a rough looking texture.

此外,我们还使用了金属顶棚来掩盖照射韩屋典型结构的线性光线。由于天花板是韩屋的一个巨大特征,我们想完全隐藏它或完全不碰它。我们隐藏了某些天花板,以隐藏旧的损坏和定位我们的电子系统。
Also we used metal canopies to hide linear light which irradiate the typical structure of the hanok. Since the ceiling was a huge identity of the hanok, we wanted to either totally hiding it or totally not touching it. We hid certain ceiling in order to hide old damages and locate our electronic systems.


由于餐厅提供的是套餐,我们认为为餐厅设置不同的层次会很有趣。
为了进入餐厅,游客必须穿过繁忙的城市--相当的小巷--狭窄的前庭--开放的法院--现代韩屋空间。我们认为这对游客来说可能是非常戏剧性的体验。
Since the restaurant serves a course meal, we thought it would be interesting to have different layers for the restaurant.
In order to enter the restaurant, a visitors must go through the busy city – quite alley – narrow vestibule – open courthouse – modern hanok space. We thought this could be very dramatic experience for visitors.

家具也是专门为这个空间设计的。传统的韩国家具是由实木和特殊接头制成的。为了使家具现代化,所有的设计都是基于现代最小形式的椅子和传统的关节。
这种家具设计强调了现代和传统的共存。
Furniture were also specifically designed for the space. Traditional Korean furniture were made by solid wood and special joints. In order to modernize the furniture, all designs are based in modern minimal form of chairs with traditional joints.
This furniture design emphasized the the coexistence of the modern and traditional.




















Architects: NOMAL
Area : 91 m²
Year : 2019
Photographs :Choi Yongjoon
Manufacturers : Benjamin Moore, KCC, Sejeonsa, Younhyun
Landscape : Greenbrother, Jogyoung Sanghoi
Construction : Koopartner
Architect In Charge : Seyeon Cho, Minyuk Chai
Furniture And Wood Works : NOMAL, General Gray
City : Jongno-gu
Country : South Korea