今天,教育机构和校园已经从平淡无奇的枯燥盒子演变为创新和实用的建筑,旨在促进在一个温馨和振奋人心的环境中学习。曼氏学校女生宿舍的设计理念是以提供促进学习和全面发展的 "家外之家 "设施为中心。
Today, educational institutions and campuses have evolved from being bland and boring boxes to innovative and practical buildings that intend to foster learning in a welcoming and uplifting environment. The vision for the design for the Girls’ Hostel at The Mann School centres on the importance of providing facilities to promote learning and all-round development at a home-away-from-home.





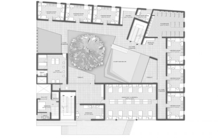
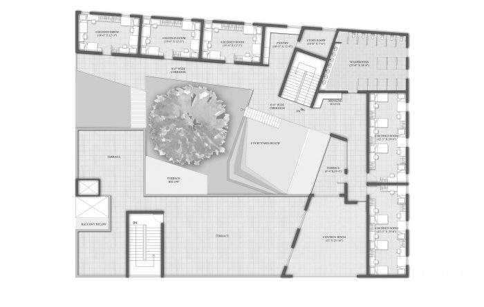
由于现有的寄宿设施无法满足不断增加的学生人数和他们的要求,因此建议在学校的综合楼内建造宿舍楼。我们的想法是为女生创造一个安全的环境,并提供所有必要的功能要求和大量的公共空间。新楼位于行政楼和高年级教学楼之间,设有1-12年级的宿舍、自习室,以及游戏室、电视室、电脑室和沙龙等公共休闲区。它传承了学校的校风,以开放性和连续性作为设计意图的一部分。校园现有的红色和灰色的配色方案被保留下来,而砖作为一个关键的设计元素被用于外墙,以帮助新建筑与周围的环境融为一体。
The hostel building was proposed within the complex of the school since the existing boarding facilities could not cater to the increasing number of students and their requirements. The idea was to create a safe environment for the girls with all the necessary functional requirements and a multitude of public spaces. The new building is positioned between the executive block and the senior academic wing and houses dormitories for grade 1-12, a study hall, and common recreational areas like a games and television room, a computer room, and a salon. It carries on the legacy of the school ethos with openness and continuity as part of the design intent. The campus’ existing colour scheme of red and grey is maintained while brick is used as a critical design element on the facades to help the new building blend cohesively within its surroundings.

宿舍楼的外立面还安装了金属jaali,辅以郁郁葱葱的绿色植物,使建筑不会因过多的建筑体量而显得突兀。为了孩子们的健康,创造户外空间,如花园和露台,并在建筑内融入绿色植物,是优先考虑的。宿舍的规划是俯瞰中央庭院,宿舍面向走廊,以确保一个生动和互动的环境。走廊以棱角分明的方式拓宽,以容纳儿童休息的座位空间。建筑物每层都以不同的角度向外开放,向内的露台错落有致,帮助每个人创造视觉上的联系感,无论他们身处何处。
A metal jaali is also installed on the façade of the hostel building, supplemented by the lush greenery so that the building does not stick out like a sore thumb with too much-built mass. For the well-being of the children, creating outdoor spaces such as gardens and terraces and incorporating greenery within the building was prioritised. The hostel is planned to overlook a central courtyard, with dormitories facing the corridors to ensure a lively and interactive environment. The corridors are widened in an angular fashion to accommodate seating spaces for children to relax. The building opens out at a different angle on every floor, with inward-looking terraces staggered to help create a sense of visual connection for everyone, regardless of where they are positioned.


低龄儿童(1-4年级)的住宿设施规划在一楼,不用爬楼梯,保证了安全。宿舍的设计确保了最佳的日照和通风,沿着定制设计的双层床铺开窗,让每个孩子都能看到外面的风景。餐厅、家长休息室以及室内游戏区等娱乐空间也位于一楼。而一楼和二楼则是专门为大龄学生准备的设施。四人间和六人间的宿舍,有独立的床位和学习区。医务室和美容院也被安排在一楼,将所有设施集中在一起,使宿舍自给自足。
The residential facilities for younger children (grade 1-4) are planned on the ground floor, so they don’t have to climb up the stairs, thus ensuring safety. The dormitories are designed to ensure optimal ingress of daylight and ventilation with windows along the custom-designed bunk beds, allowing each child with a view to the outside. The dining area, the parent’s lounge, as well as recreational spaces like the indoor play area are also located on the ground floor. The first and second floors, on the other hand, are dedicated to facilities for older students: 4-bedded and 6-bedded dormitories with individual beds and study areas. The infirmary and the salon are also positioned on the first floor to accommodate all the facilities in one place, making the hostel self-sufficient.

所有的活动区域,如休息室、计算机实验室、游戏室等都被规划在地下室,围绕着中央庭院和下沉式露天剧场,使其成为建筑中最热闹的区域。作为休息室的延伸,露天剧场被设计成一个聚会场所,学生和教职员工经常聚集在这里庆祝生日派对和音乐聚会。
All the activity areas like the common room, computer lab, and the games room are planned in the basement around the central courtyard and the sunken amphitheatre, making it the most lively zone in the building. Designed as an extension of the common room, the amphitheatre acts as a congregation spot where students and staff often come together to celebrate birthday parties and musical get-togethers.

远离家乡的孩子需要巨大的身体和情感支持。学校对他们来说就像父母一样,因此安全被认为是设计的重要部分。舍监的住所被规划在建筑内,可以俯瞰中央庭院,让她在客厅里就能看到宿舍的全貌,同时也保留了隐私感。同时,减少了建筑出入口的数量,窗户安装了金属格栅,走廊的扶手和天花板之间使用了十字线作为防范。
Children who are far away from home require immense physical and emotional support. The school is like a parent to them, and hence safety was considered an essential part of the design. The warden’s residence is planned within the building and overlooks the central courtyard, giving her a complete view of the hostel from her living room while retaining a sense of privacy. Also, the number of building entry and exit points are reduced, windows are fitted with metal grills, and criss-cross wires are used between the handrails in the corridors and the ceiling as a precaution.

在可持续发展的驱动下,建筑的露台上安装了太阳能电池板。中央庭院精确地排列在西北-东南方向,以便在季风期间抓住西南风,从而确保整个建筑的通风。建筑物的南墙和西墙采用捕鼠器结合(砖块以垂直位置放置,而不是传统的水平位置,形成空腔),以提供热舒适性。 泥浆(用干草压实的土壤)用于保温,以减少近70%的热量进入。现场使用的砖块是从当地的窑炉采购的,以减少碳足迹。即使是建筑中使用的饰面和材料也是低维护和经济实惠的--油漆和瓷砖、花岗岩、门上的层压板--所有这些都考虑到了这个环境是供幼儿使用的。
Driven by sustainability, solar panels are installed on the terrace of the building. The central courtyard is precisely aligned in the North West - South East direction, to catch the southwesterly winds during the monsoon, thus ensuring ventilation throughout the building. The South and West walls of the building are made with the rattrap bond (bricks are placed in a vertical position instead of conventional horizontal position, creating a cavity) to provide thermal comfort. Mud phuska (compacted soil with hay) is used for thermal insulation to reduce the ingress of heat by almost 70%. Bricks used on-site have been procured from local kilns to reduce the carbon footprint. Even the finishes and materials used in the building are low maintenance and affordable - paint and tiles, granite, laminates on the door - all keeping in mind that the setting is to be used by young children.

所有从地下室挖出的土都被用来在女生宿舍前的花园里平整和建造土墩。从建筑材料中出来的碎石被利用来制造学校的道路和人行道。现场枯萎的老树上的木材被用来制造大楼的门。此外,从650平方米的平台上收集的雨水通过一系列的排水沟进入两个坑中,用于园艺和冲洗。家外之家--新德里曼恩学校的女生宿舍遵循了一种感同身受的设计方法,为孩子们提供了一个安全的学习环境,让他们可以自由地互动、参与和成长。
All the site-excavated earth from the basement is used to level and create mounds in the garden in front of the girl’s hostel. The debris that came out of the construction material was utilised to make the roads and footpaths of the school. Timber from old trees withering away on site was used to manufacture doors for the building. Additionally, rainwater is harvested from the 650 sqm. terrace into two pits through a series of drains and used for horticulture and flushing. A home away from home – the Girls Hostel at Mann School, New Delhi follows an empathetic design approach, offering children a safe learning environment with the freedom to interact, engage and grow.



[caption id="attachment_41910" align="alignnone" width="700"]
DCIM100MEDIADJI_0008.JPG[/caption]






建筑师: Envisage
占地面积: 3000 m²
年份:2020年
摄影作品:Suryan // Dang
制造商: Jaquar, Saint-Gobain, Asian Paints, Kajaria, Philips, TOSHIBA
主要建筑师:Meena Murthy Kakkar, Vishal Kakkar。
客户:曼氏学校
Sructural Engineering:Pramod Kr. Ojha
电气工程:Puneet Singh
土木工程:Pramod Kr. Ojha
暖通工程:Dhiraj Chowdhary
结构承包商:Prabhu Dayal
机械承包商:Maheshwari
电器承包商:Mr. Shiva
土木工程承包商:Prabhu Dayal
景观承包商:Prabhu Dayal
Hvac Contractor :Dhiraj Chowdhary, Inc
水管工程:Mr. Rajesh
外墙承包商:Prabhu Dayal & Mr. Anil
景观设计:Envisage
管道:Envisage
丽景设计:Envisage
PMC:Envisage
外立面设计:Envisage
城市:Delhi
国家:印度
Architects: Envisage
Area: 3000 m²
Year: 2020
Photographs: Suryan // Dang
Manufacturers: Jaquar, Saint-Gobain, Asian Paints, Kajaria, Philips, TOSHIBA
Principle Architects:Meena Murthy Kakkar, Vishal Kakkar
Client:The Mann School
Sructural Engineering:Pramod Kr. Ojha
Electrical Engineering:Puneet Singh
Civil Engineering :Pramod Kr. Ojha
Hvac Engineering:Dhiraj Chowdhary
Structural Contractor:Prabhu Dayal
Mechanical Contractor:Mr. Maheshwari
Electrical Contractor:Mr. Shiva
Civil Contractor :Prabhu Dayal
Landscape Contractor :Prabhu Dayal
Hvac Contractor :Dhiraj Chowdhary
Plumbing :Mr. Rajesh
Facade Contractor :Prabhu Dayal & Mr. Anil
Landscape Design:Envisage
Plumbing:Envisage
Lihgting Design:Envisage
PMC:Envisage
Facade Design:Envisage
City:Delhi
Country:India