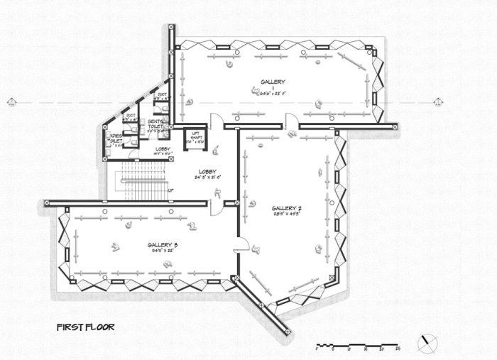
博物馆都是关于运动和自然光的。运动在所有类型的建筑中都很重要,但在博物馆中,它变得至关重要,因为它能让参观者清楚地了解他的内部方向(附gif),如果不解决这个问题,就会形成一个无意识的迷宫:在Mindgym,它是通过采取印度教的精神象征形式来解决的,这使得引入圆形运动成为可能。
Museums are all about Movement and Natural Light. Movement is important in all typologies but in Museums, it becomes paramount because it gives clarity to the visitor regarding his internal orientation(gif attached) which if it is not resolved results in a mindless maze: at Mindgym it was resolved by taking the Hindu symbol of spirituality a form which made it possible to introduce a circular movement.



如果自然光与人造光一起被用作照明的来源,那么自然光就变得更加重要了,光照亮了展示,却没有投下阴影。自然光是通过根据太阳路径图演变出的立面带来的,导致光线间接进入房间,除了北侧是无影的北光外,没有来自东西和南的阴影。
Natural Light becomes even more important if it is to be used as a source of illumination along with Artificial Light, Light illuminates the display without casting shadows. Natural light was brought in by evolving the façade based on the sun path diagram leading to light entering the room indirectly sans shadows from East West and South except for the North side which is shadowless North Light


更大的挑战是通风,因为客户的要求是自然通风的建筑,没有任何机械冷却的帮助。这有助于将形式定义的墙体变成博物馆的肺部。墙体上有管道,通过离心式风扇在阳台层面吸收污浊空气,从而形成真空(自然界厌恶真空),新鲜空气从同一墙体中面向迎风面的隐蔽管道填充(附gif)。
The bigger challenge was Ventilation as the client's brief was to have a naturally ventilated building without any assistance of Mechanical cooling. It helped as the form facilitated to turn off the Form Defining Walls into the lungs of the Museum. The walls have ducts that take foul air by centrifugal fans at the terrace level thereby creating a vacuum(nature abhors a vacuum) which gets filled by fresh air from hidden ducts within the same walls facing the windward side(gif attached)


因此,博物馆的形式在许多层面上起作用,从而促进运动、自然光和通风。
So the Museums Form works on many levels thereby facilitating Movement, Natural Light, and Ventilation











Architects: Design Workshop
Area : 15000 m²
Year : 2019
Photographs :Onil Shah
Manufacturers : Jaquar, Hindware, NITCO TILES
Structural Consultant : ECCIPL
Civil Contractor : Vastu Kirti Pvt Ltd
Landscape : Design Workshop
Irrigation : Takate
Principal Architect : Shabbir A Unwala
Senior Architect: : Gauri Godakhindi
Junior Architects : Kashmira Shreeram, Rohinesh Kondhalkar
Student Interns : Suchithra Ramkumar, Yash Siroliya
Aluminium & Glass Work : Aluwind Glaziers
Lifts Consulting : Schindler
City : Lonavla
Country : India