Mar Jónico大厦位于Vitacura区,这个住宅区在过去几年中经历了激烈的密集化进程,在70年代只有一、二层楼房的地区开发了8层楼房。
The Mar Jónico Building is located in the district of Vitacura, a residential neighborhood that has undergone an intense densification process over the past few years with the development of eight-story buildings in an area that had one- and two-story houses in the 1970s.



该地块位于Calle Mar Jónico和Nilo Azul的拐角处,在建筑高度方面处于一个中间位置。在南面,它面对着上述地区,那里有平均8层高的建筑。在北部,当地法规规定最高高度为三层,以保持该地区的规模。
The lot is located on the corner of Calle Mar Jónico and Nilo Azul in an intermediate situation regarding the height of the building. To the south, it faces the aforementioned area that is home to buildings that are an average of eight stories tall. To the north, the local regulations have set the maximum height at three floors in order to maintain the area’s scale.

正是这种中间情况,也就是附近两个规模之间的缓冲区,指导了我们的设计过程,因为尽管该物业允许建造五层楼,但我们选择建造一个四层的结构,我们认为它与周围的环境更适合。不超过四层,使我们能够遵守《一般建设和城市化条例》第6.1.8条的法案,该法案允许在某些情况下,项目的公寓数量可以增加25%,其中之一就是不超过四层。这使得我们可以选择比五层楼所允许的更大的建筑表面。因此,这种降低高度以更好地适应周围环境的策略使客户能够开发出更有市场的表面积,从而使项目可行,我们认为这种做法对各方都有利。
It is this intermediate situation, that is, a buffer between the neighborhood’s two scales, that guided us in the design process because although the property allows for five stories, we chose to build a four-story structure that we believe to be a better fit with its surroundings. Refraining from going beyond four stories allowed us to comply with the bill for Article 6.1.8 of the General Construction and Urbanism Ordinance, which allows the number of apartments in the project to be increased by 25% in certain circumstances, one of which is not exceeding four stories. This allowed us to choose to have a larger built surface than would be allowed for a five-story building. As such, this strategy of lowering the height as a way to better fit with the surroundings allowed the client to develop a more marketable surface area and thus make the project viable in an exercise that we believe benefited all parties.

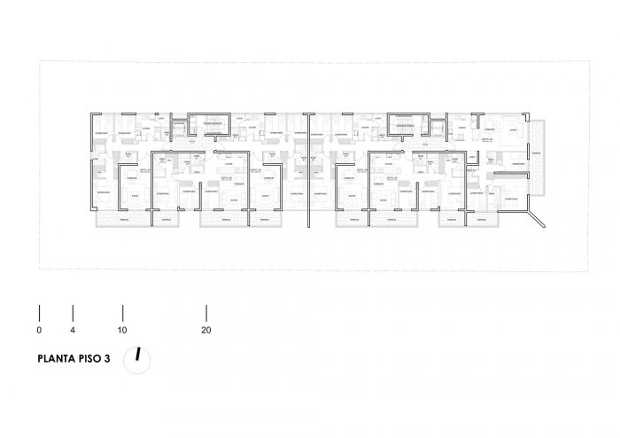
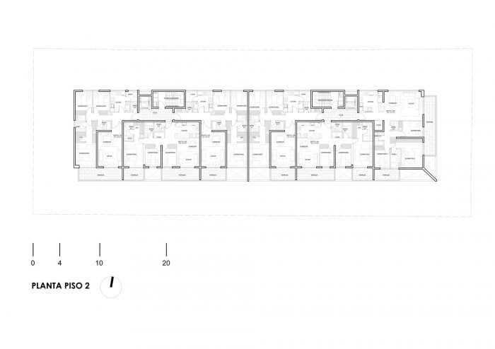
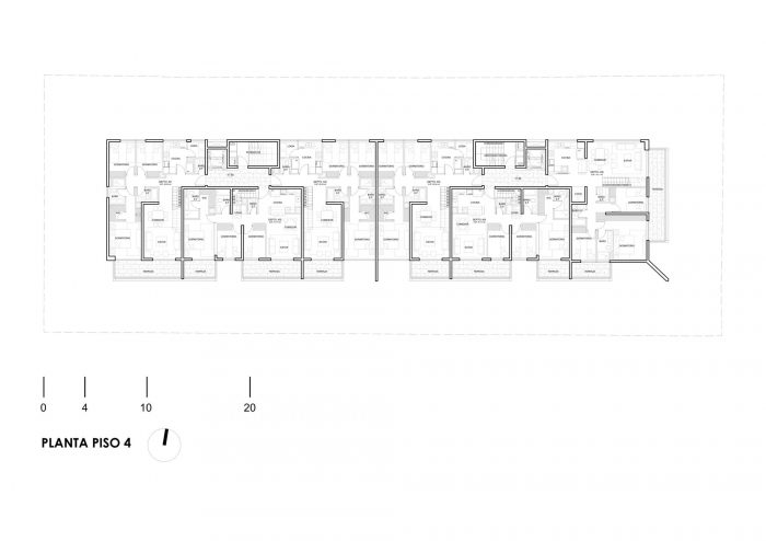
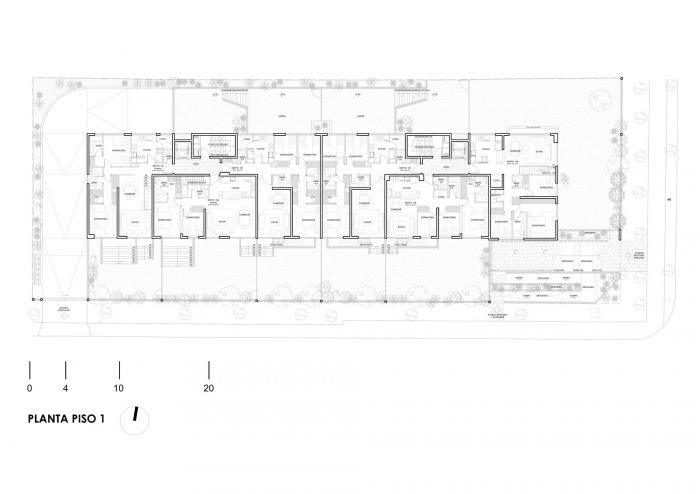
该项目是一个由裸露的混凝土制成的规则、细长的结构。所有的公寓都向街道望去,悬空的露台也是由裸露的混凝土制成。入口被放置在一个角落里,通过一个庭院进入,庭院完全向公共空间开放,有楼梯和残疾人坡道。这实现了街道层和低半层的建筑入口之间的流畅流动。
The project is a regular, elongated structure made of exposed concrete. All of the apartments look out onto the street with overhanging terraces also made of exposed concrete. The entrance was placed on a corner and is accessed through a courtyard that is completely open to the public space with stairs and a ramp for the disabled. This achieves a fluid flow between the street level and the building entrance, which is a half-story lower.

一楼的单位有天井,四楼的单位有私人屋顶区域,以利用建筑群的屋顶。
The units on the first floor have patios and those on the fourth have private rooftop areas to make use of the complex’s roof.

鉴于该建筑只有26套公寓,并且为了降低管理成本,我们选择在门禁和电子商务接收方面尝试使用智能技术,我们相信这将对未来几年的社区设计产生影响。因此,该项目设计了一个由隔断和卡控制的访问点、wi-fi技术组成的系统,以及旨在通过一个盒子接收快递的空间,该盒子在快递人员和收件人之间提供了数字连接。这使得此类活动更快、更安全、更流畅。这意味着大楼可以用最少的工作人员和负责监控摄像头和登记访客的远程门房来运作,从而减少必须由业主承担的每月费用。
Given that the building has just 26 apartments, and in an effort to lower administrative costs, we chose to experiment with smart technology for both access control and e-commerce reception, which we believe will have implications for the design of communities in the coming years. The project was thus designed with a system of partitions and card-controlled access points, wi-fi technology, and space designed to receive deliveries through a box that provides a digital connection between the delivery staff and the recipient. This makes such activities faster, safer and more fluid. This means that the building can function with minimal staff and a remote concierge responsible for monitoring cameras and registering visitors, thus reducing the monthly costs that must be covered by the owners.














Architects: SML Arquitectos
Area : 51742 ft²
Year : 2021
Photographs :Cristóbal Palma
Manufacturers : AutoDesk, Hunter Douglas
Lead Architects : Franco Somigli, Sebastián Mundi, Diego Brieva, Nicolás Gallo
Builder : Cerro Apoquindo 4 / Guillermo Bustamente
ITO : GT consultores / Jose Fortuni
Landscaping : Bernardita de Corral
Program : Collective Housing
City : Vitacura
Country : Chile