该项目位于一栋两层楼的建筑中,底层是以前的葡萄酒仓库,上层是两套公寓。由于现有结构的破损程度很高,因此有必要对内部和屋顶进行彻底拆除。
The intervention is in a two-storey building in which the ground floor was a former wine warehouse and the upper floor contained two apartments. The advanced state of dilapidation the existing structure found itself in made complete demolition of the interior and the roof necessary.





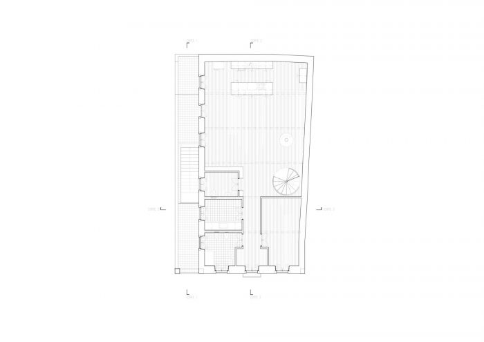
在重建过程中,原有的屋顶和分隔层都被重现,但它们被赋予了不同的结构--屋顶上的木梁,使得屋顶下的空间完全被释放出来,而混凝土地板则分隔了楼层。充分利用屋顶的空隙,拆除一楼的隔墙--除了一些封闭空间的隔墙,即一间卧室、洗衣区和两间浴室,提供了一个宽敞的空间,在屋顶屋脊的正下方建立了一个夹层,从而可以全面阅读空间。
In the reconstruction, the pre-existing roof was reproduced, as was the dividing floor, but they were given a different structure – wooden beams in the roof, which made it possible to entirely free up the space under the roof, and a concrete floor separating the storeys. Making full use of the roof void and removing the dividing walls on the first floor – with the exception of those for some closed-off spaces, namely a bedroom, the laundry area and two bathrooms – provided an ample space where a mezzanine floor was created directly below the ridge of the roof, thus allowing for a comprehensive reading of the space.



底层保持了宽敞的空间--为车库和其他偶尔的用途提供了空间。材料的选择确保了与干预前存在的东西(石灰砂浆、木材、液压瓦)的连续性,此外还通过其材料性(铁、砖瓦、木材)提供了一种特殊的氛围,唤起了建筑的工业历史。
The ground floor was kept spacious – with room for a garage and other occasional uses. The choice of materials ensured continuity with what existed before the intervention (lime mortars, woods, hydraulic tiles), in addition to providing a particular ambience through their materiality (iron, brickwork, wood) which evokes the building’s industrial past.













建筑师:RA+TR arquitectos
面积: 457 m²
年份:2017年
摄影:Rui Cavaleiro
制造商:AutoDesk, Focus, Geberit, Investwood, Fantini, Recer, Damásio & Leal, Duravit, Fradical, Somor, Velux
牵头建筑师:Rui Reis Alves,Teresa Rodeia
工程师:Francisco Salpico
合作者:Pedro Crespo
城市:Lisboa
国家:葡萄牙
Architects: RA+TR arquitectos
Area: 457 m²
Year: 2017
Photographs: Rui Cavaleiro
Manufacturers: AutoDesk, Focus, Geberit, Investwood, Fantini, Recer, Damásio & Leal, Duravit, Fradical, Somor, Velux
Lead Architect:Rui Reis Alves,Teresa Rodeia
Engineer:Francisco Salpico
Collaborator:Pedro Crespo
City:Lisboa
Country:Portugal