"这个城市有许多广场,那里有一个连续的市场,我试着去买和卖。它有一个广场,其大小是萨拉曼卡市的两倍,周围仍有门户之见;那里每天有六万多人在买卖。" 埃尔南-科尔特斯
“This city has many squares where there is a continuous market and I try to buy and sell. It has a square as big as twice the city of Salamanca, still surrounded by portals around it; where there are over sixty thousand souls buying and selling daily." Hernán Cortés

背景。市场不仅仅是购买和销售日常用品的简单空间,它们是一个地区的文化和历史以及与邻国的商业关系的综合体。从历史上看,不仅是产品到达这些地方,而且还有用途和习俗、艺术形式、知识和看待世界的不同方式。
Background. Markets are more than simple spaces for buying and selling for daily supplies, they are a synthesis of the culture and history of a region as well as of the commercial relations with its neighbors. Historically, not only products have arrived at these sites but also uses and customs, artistic forms, knowledge, and different ways of seeing the world.



该国东北部的乡土建筑自然具有防御性和节约资源的特点;安全、气候、热量和缺乏湿度反映在坚实的原型上,比例庞大;使用天井来保护内部空间免受恶劣天气的影响;使用现有的资源和材料,是该地区的典型;方向、光线密度和交叉通风的空气流动是其主要特征。
Vernacular constructions in the northeast of the country naturally have a defensive and resource-saving character; security, climate, heat, and lack of humidity were reflected in solid archetypes, in massive proportions; the use of the patio to protect the interior space against inclement weather; the use of existing resources and materials, typical of the region; the orientations, the density of the light and the flow of air by cross-ventilation are some of its main characteristics.

该战略。2019年3月底,墨西哥国立自治大学建筑学院召集了一批学术-实践者参加竞赛,为SEDATU(领土和城市发展秘书处)开发可复制的公共工程项目,在高度脆弱的环境中,特别是当年在该国北部的边境城市。这些项目的开发时间只有三个月,三个月内要执行工程;预算有限(这个空间从2019年12月到2020年3月建成,如果不是因为COVID19而处于应急状态,4月4日就会落成)。
The strategy. At the end of March 2019, the School of Architecture of the National Autonomous University of Mexico, summoned a group of academic-practitioners to participate in a contest to develop replicable public works projects for the SEDATU (Secretariat of Territorial and Urban Development), in highly vulnerable contexts, specifically that year in border cities in the north of the country. The development time for these projects would be only three months and three months to be executed works; with limited budgets (this space was built from December 2019 to March 2020 and would have been inaugurated on April 4, had it not been in contingency due to COVID 19).

由于这些原因,我们考虑了三个主要的设计策略;第一,构造标准,我们将土建工程的使用合理化了50%,其余的留给轻型预制;第二,对材料灵活性的回应,最后,对其空间精神的多功能性。认识到运输、移民导致的人口密度变化,以及被干预地区基础设施资源的缺乏,是想象一个有绿色区域和娱乐的不同用途的公共空间的轴心。在提出建筑建议之前,我们似乎必须提出一个灵活的社区结构,能够加强社会联系并产生归属感,唤起老 "Parián "的形象,形成一个PLAZA-MARKET。
For these reasons, we considered three main design strategies; the first, the constructive criteria, where we rationalize the use of civil works by fifty percent and the rest we leave it to light prefabrication; the second, the response to material flexibility to the place and the last, the versatility to its spatial spirit. Recognizing the haulage, the changes in population density as a result of migration, and the lack of resources in infrastructure in the areas to be intervened, were the axis to imagine a public space of varied use accompanied by green areas and recreation. Before proposing a building, it seemed critical to us to propose a flexible community structure capable of strengthening social ties and generating a sense of belonging, evoking the image of the old "Parián" to form a PLAZA-MARKET.

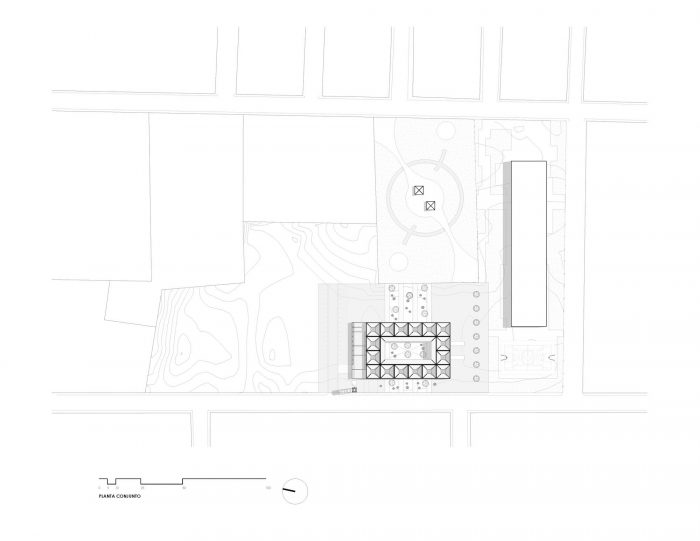
Matamoros市场。该建筑结构位于城市郊区的一个住宅区内以前的剩余空间内。该建筑被巧妙地隐藏起来,用绿色空间和广场包围它。第一个组成部分,墙,回顾了旧的封闭在外面的固体结构,允许以灵活的方式进行钻探,在这种情况下,产生三个方向的交通,与一个体育空间和一个休闲空间相连接。这堵墙是由40个固定的场所以及对阳光最不利的服务区所定义的。这面墙的高度很低,由红砖砌成,由于以拱门的方式划分房舍而获得其刚性,并创造了通往门廊中心的入口走廊。
Matamoros Market. The architectural structure is located in a previously residual space in a residential area on the outskirts of the city. The building is subtly tucked away to surround it with green space and squares. The first component, the wall, recalls the old solid structures closed to the outside that allows drilling in a flexible way, in this case, to generate transit in three directions that connect with a sports space and a recreational space. The wall is defined by forty fixed premises, as well as by the service area with the most unfavorable orientation for sunlight. This skin, low in height and made of red brick, acquires its rigidity due to the divisions of the premises in the manner of buttresses and creates the entrance hallways to the heart of the portico.


一个基于金属三角梯形结构的雨伞系统以模块形式预制,其形状赋予了刚性,建立了一个覆盖9米距离的周边门廊,其结构不超过5英寸,尽管它很轻,却能承受飓风或洪水。倾斜的角度除了对结构性的压力工作作出反应以减少负荷外,还为水和雪提供最佳的径流。该系统考虑了一个作为热绝缘体的下层皮肤,在这种情况下,是一个2厘米厚的隔板,保持了一个对天气和雨水收集非常理想的外部板材皮肤,也作为一个太阳能反射器。灯笼促进了风的穿越,并为其他40个场所提供了最佳的自然照明,这些场所非正式地坐落在门廊的中心,有3x3米的指定区域,允许保持空间的灵活性和对社区居民的使用。
An umbrella system based on a metal triangular-trapezoidal-shaped structure prefabricated in modules to which their very shape gives rigidity build a perimeter portico covering gaps of nine meters in distance with structures no larger than 5 inches capable of withstanding a hurricane or flood despite its lightness. The angle of inclination responds to the load reduction in addition to the structural stress work, also providing optimal runoff for water and snow. The system considers a lower skin that works as a thermal insulator, in this case, a 2 cm thick partition, maintaining an exterior sheet skin that is ideal for the weather and rain catchment, also functioning as a solar reflector. The lanterns facilitate the crossing of the wind and the optimal natural lighting for the other 40 premises that sit informally in the heart of the porch with assigned areas of 3x3mts that allow maintaining spatial flexibility and use for the people of the community.

最后,绿洲是一个对当地条件敏感的花园,在这种情况下,是一个低维护的沼泽花园,由保留的水浇灌,在穿透建筑的主要外墙展开。一个灵活的空间,随着时间的推移将增加其绿色,以促进自然阴影、热床垫和安静的空间。
Finally, the oasis is a garden sensitive to local conditions, in this case, a low-maintenance swamp garden that is watered from the retainment of water and that unfolds on the main facades penetrating the building. A flexible space that in time will increase its green to promote natural shadows, thermal mattresses, and spaces of silence.













Architects: C733
Area: 2868 m²
Year: 2020
Photographs: Rafael Gamo
Authors:Gabriela Carrillo, Carlos Facio, Eric Valdez, Israel Espín, José Amozurrutia - Facultad de Arquitectura UNAM
Collaborators:Misael Romero, Rosendo Casarrubias, Pedro Domingues
Clients:SEDATU - Secretaría de Desarrollo Agrario, Territorial y Urbano
Installations:Enrique Zenón
Landscape:Hugo Sánchez Paisaje
Visualizations:Paul Espinoza
City:Matamoros
Country:Mexico