MB公寓位于1960年代的金砖建筑群中,以客户玛丽和本的名字命名。它属于他们的祖母,她在德国二战中幸存下来,并迁移到澳大利亚,购买了这个单位作为投资物业,出租了35年,没有得到维护。客户继承了它,想把它改造成他们的第一个家。
MB apartment within the 1960’s blonde brick complex is named after clients Mary and Ben. It belonged to their grandmother who had survived WW2 Germany and relocated to Australia, purchasing this unit as an investment property which was rented and unmaintained for 35 years. The clients inherited it and wanted to modify it into their first home.





新的工作希望通过一系列小的手术干预来改变公寓现有的逻辑,在紧张的预算下完全重新想象空间体验。原来的单元有一种感觉,就像空间被雕刻出来的质量,残酷的黄砖形式。新的干预措施是这一想法的延伸,进一步雕刻和磨练空间,使其具有稳固性和平静的包围感。现有建筑群的时期被借鉴,有纹理的天花板被延续到一个基准舱壁,庆祝空间之间的门槛。材料的选择,如水磨石、棕色大理石和遮光木贯穿始终。
The new work aspired to transform the existing logic of the apartment with a series of small surgical interventions completely reimagining spatial experience on a tight budget. The original unit had a quality of feeling like space carved out mass, the brutal yellow brick form. The new interventions are an extension of this idea, further carving and honing the space giving them solidity and a calm sense of enclosure. The period of the existing complex is drawn from, the textured ceiling is continued down to a datum bulkhead celebrating the threshold between spaces. The selection of materials like the terrazzo and brown marble & blackout timber throughout.

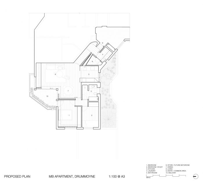
现有的两室一厅的计划受到了一个超大的朝南的厨房的影响,与主要的生活空间或其港口景观没有联系。它的入口处没有到达的感觉,周边的天花板有来自上面公寓的结构隔板,混淆了空间的逻辑。
The existing two-bedroom plan suffered from an oversized south-facing kitchen with no connection to the main living space or its harbour views. It had no sense of arrival at its entry and the perimeter ceilings had structural bulkheads from the apartment above which confused the logic of the spaces.


虽然干预措施很小,但对86平方米的空间来说,其影响是巨大的。这种额外的空间雕刻更有效率,也导致了未来第二间浴室的增加,在此期间,它被用来储存客户大量的乐器储存。我们在入口处开了一个小口,创造了一个关键的落差,光线和视线轴进一步进入和穿过公寓,以增强空间感和超越信封的联系,所有这些都有助于使空间感觉比其测量的尺寸更大。
While the interventions are small, the impact is transformative for the 86m2 space. This additional carving of space was more efficient and also resulted in the addition of a future second bathroom which in the meantime is used for storage of the clients' huge amount of musical instrument storage. We opened up a small opening upon entry to create a key drop, light & view shaft further into and through the apartment to enhance the sense of space and connection beyond the envelope all helping making space feel larger than its measured size.

客户Ben作为一名专家从事长班工作,我们建议在用餐区后面设置滑动墙,以便能够将卧室和浴室与主要空间隔开,这样在睡觉时可以有一些额外的安静。当本或玛丽在练习或录制音乐时,它也可以反向工作。
Client Ben works long shift work as a specialist and we proposed the sliding wall behind the dining area to be able to close off the bedrooms and bathroom from the main spaces so there can be some additional layers of quiet when sleeping. It also works in reverse when Ben or Mary are practising or recording music.

引入的隔板带有原始的天花板纹理,使天花板的帽子感觉比它们高,但也确保了空间之间的过渡是一种实质性的、有意识的体验,它们也隐藏了原始建筑遗留下来的不良建筑的板块设置问题。
The introduced bulkheads carry the original ceiling texture making the ceiling hat feel taller than they are but also ensures that transitioning between spaces is a substantial, conscious experience, they also hide slab set downs from poor construction legacy from the original building


松散的简介是重塑空间,使其更符合客户对其第一居所的品味。预算既是驱动因素,也是限制因素,这有助于我们确定最终交付的工程范围,这超出了客户的想象。
The loose brief was to reinvent the space and bring it more into line with the clients' tastes for their first home. The budget was both driving and limiting factor which helped us determine the final delivered scope of works which was beyond what the clients thought possible.

在悉尼的污染中,我们为对呼吸道敏感的客户安装了空调。由于项目的性质,可持续性仅限于材料的选择和回收,我们使用了当地的硬木地板、木皮和水磨石,以及节能/节水产品。
Air conditioning was installed for respiratory sensitive clients in Sydneys pollution. Sustainability was limited to the selection of materials & recycling due to the project's nature, we used Local hardwood flooring, veneers and terrazzo, and energy / water-efficient products.





Architects: Bokey Grant
Area: 86 m²
Year: 2020
Photographs: Clinton Weaver
City:Sydney
Country:Australia