Mediona 13是对塔拉戈纳历史中心众多无人居住的房屋之一的修复。干预措施包括允许更灵活地使用空间,带来自然光,并尽可能地保留现有建筑。
Mediona 13 is the rehabilitation of one of the numerous uninhabited houses of the historical center of Tarragona. The intervention consists in allowing more flexible use of the space, bringing natural light, and preserving as much as possible the existing construction.







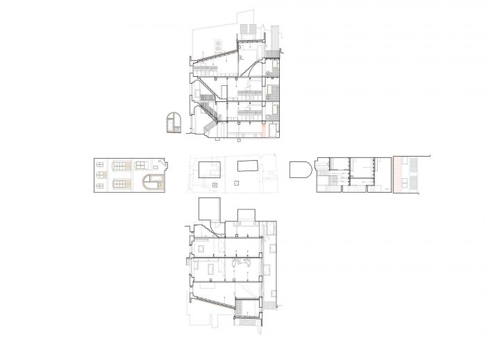
新的大门允许光线穿过房子的中心,即接待居民的内部广场,并将他们带到他们的私人单元。现有的院子被拓宽,新的窗户被打开。
The new gateway allows light to travel through the heart of the house, the inner square that receives its inhabitants and transports them to their private units. The existing courtyard is widened and new windows are opened.


现有的结构被加固,墙壁被巩固。在新的结构元素中使用的颜色是在现有的墙壁上发现的。
The existing structure is reinforced and the walls are consolidated. Colors that are used in the new structural elements were discovered in the existing walls.


浅蓝色 "被选为公共空间的颜色,这是一种传统上用于窗户、外墙和入口处的卫生和精神原因的颜色。
The 'light blue' is chosen for the common space, a color traditionally used for hygienic and spiritual reasons in windows, facades and entrances.
































Architects: NUA arquitectures
Area : 300 m²
Year : 2021
Photographs :José Hevia
Lead Architects : Maria Rius, Arnau Tiñena, Ferran Tiñena
Team : Lluis Delclòs, Rebeca López
Technical Architect : Jordi Ventura
Sponsors : Noemí Juncosa, Òscar Martí
Structure : Gemma Humbert
Engineering : Enric Sanz
Phase 1 Construction : Baumester
Phase 2 Construction : Construcciones Silvio
City : Tarragona
Country : Spain