总部位于克罗地亚的建筑工作室 TOBIS Engineering 最近完成了位于克罗地亚普拉的华丽地中海别墅 Villa Martinuzzi。
Croatia-based architecture studio TOBIS Engineering recently finished Villa Martinuzzi, a gorgeous Mediterranean villa located in Pula, Croatia.The house was dating back to 1890.






新主人对别墅的要求很简单,但细节并不简单:一个传统与现代相结合的居住空间,但在设计时不强求这种流行的 "做旧 "风格。
New owner had one simple request for his villa, with not so simple detail; a living space that is combination of traditional and modern, but designed without forcing this popular “let’s build old” style.




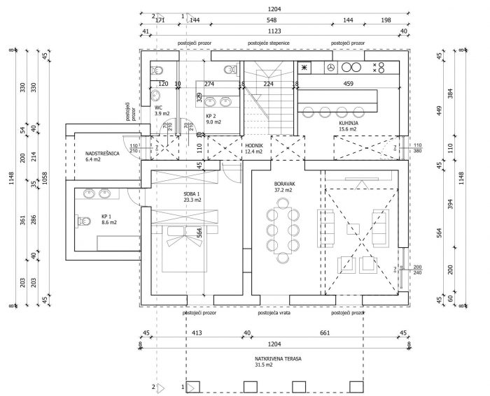
一楼有 45 厘米厚的石墙,是现代一楼的传统基础。一楼设有现代厨房、原始楼梯、浴室、卧室和带餐厅的起居室。斜屋顶的一部分用玻璃覆盖,让日光通过屋顶和上层的玻璃走廊地板一直照射到地面。上层设有两间浴室和三间卧室。
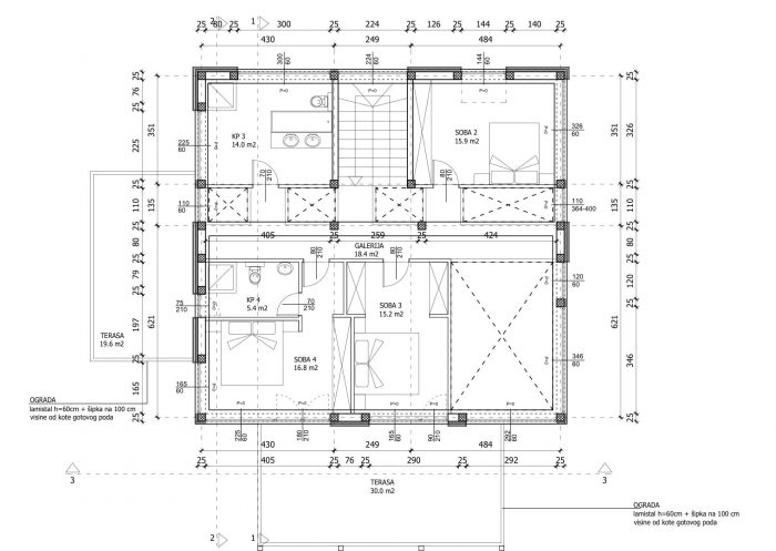
Ground floor with 45 cm thick stone walls was imagined as a traditional base for the contemporary first floor. Ground floor features modern kitchen, original staircase, bathroom, bedroom and living room with the dining room. Part of the slanted roof is covered in glass, letting the daylight pass through the roof and glass hallway floor on the upper level all the way to the ground floor. Upper floor features two bathrooms and three bedrooms.




外墙板格式各异,排列成不规则的光栅。最后,一切都变成了一个整体,既有新的也有旧的,既有石头也有玻璃,既有黑色地板也有石墙。
The façade panels are of different formats, arranged in irregular raster. In the end everything became whole, both old and new, and stone and glass, and black floors and stone walls.
































Architects: Architectural office TOBIS-inzenjering
Area: 328 m²
Year: 2015
Manufacturers: Swisspearl, kamen benkovac, staklo-piletic
City:PULA
Country:Croatia