混凝土结构,铝窗框,镶木地板,柚木甲板,金属楼梯扶手,墙面涂料和柚木百叶窗板。
Concrete Construction, Aluminum window frame, Parquet wood floors, Teak wooden deck, Metal staircase handrails, Stucco coating and Teak Louver Panels on elevations.



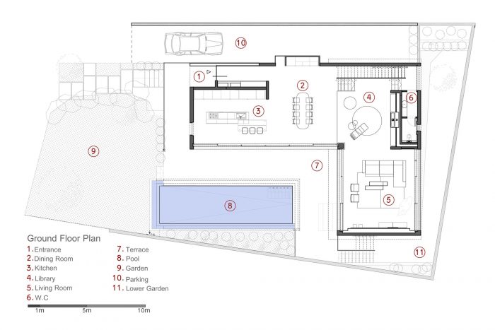
在规划别墅时,主要的设计理念是围绕一个游泳池和三个不同的花园区域设计现代房屋L型的房子。该方案是为一个有孩子的家庭规划的,有一个大的主人套房。在一楼,一个开放的计划提供了公共空间,如:厨房、餐厅、图书馆和围绕游泳池区域的客厅。通过将卧室规划在房子的上层和下层,底层成为主人套房和下层卧室之间的过渡空间。
In planning the villa, the main design concept was designing modern house L shape house around a pool and three various garden areas. The program was planned for a family with children with a large master suite. On ground floor an open plan provides public spaces such as: kitchen, dining, library, and living room around the pool area. By planning the bedrooms in the upper and lower levels of the house the ground floor becomes a transitional space between the master suite and the lower bedrooms.

该计划整合了3个地中海花园类型,这些花园的类型和位置在别墅周围有所不同。在上层,主人套房通向一个屋顶花园。在屋顶上,钢制容器容纳了绿色区域,从而成为花园中的一个物体。在地面上,栽培的动物群落成为桉树的背景。在低层,一个私人庭院位于卧室的旁边。
The plan integrates 3 Mediterranean garden types, these gardens vary in type and location around the villa. On the upper level the master suite opens to a roof garden. On the roof steel containers hold the green area thus becoming an object in the garden. On ground level, cultivated fauna acts as a back drop towards the eucalyptus trees. At the lower level a private courtyard is situated next to the bedrooms..

在设计外立面时,使用了一个框架元素来捕捉景观的一部分。
In designing of the exterior elevations, a framing element is used to capture a segment of the landscape scenery.

房屋设计通过使用自然光和朝向南面和西面的透明玻璃立面,重新审视了地面层的内部空间的界限。底层的这些玻璃立面被用作动态隔断,而上部的木质百叶窗则允许过滤后的阳光进入主人套房。
The house design re-examines the boundaries of interior space on the ground level by the use of natural light and transparent glass elevations towards the south and west directions. These glass elevations on the ground floor are used as dynamic partitions, while the upper wooden louvers allow filtered sunlight into the master suite.

外墙的设计通过对精确比例的分析而演变,这些比例可以在整个房子里看到。这座房子是在寻找一种现代建筑语言的同时进行规划的,既使用了当地的参考资料,又结合了地中海建筑元素。
The design of the facades evolved through an analysis of precise proportions, these proportions can be seen through the entire house. The house was planned while searching for a contemporary architectural language, both using local references with the combination architectural Mediterranean elements.













Architects: Paz Gersh Architects
Area : 450 m²
Year : 2015
Photographs :Amit Geron
City:TEL AVIV-YAFO
Country:Israel