作为伯明翰天际线上引人注目的新成员,Moda, The Mercian重新定义了该市的高层生活,并成为其最高的住宅楼。该项目由租赁生活的先驱Moda Living开发,由Glenn Howells Architects设计,它代表了建筑租赁社区的前沿新模板,在一个非常令人向往的中心位置,将方便的、令人向往的房屋与慷慨的居民设施和服务相结合。
A striking new addition to Birmingham’s skyline, Moda, The Mercian has redefined high-rise living in the city, and become its tallest residential tower. Developed by rental living pioneer Moda Living and designed by Glenn Howells Architects, it represents a cutting-edge new template for build-to-rent neighborhoods, combining accessible, aspirational homes, with generous resident amenities and services in a highly desirable central location.




随着伯明翰人口的增长,以及经济的复苏,推动了金融、技术和先进制造业方面越来越多的国际投资,该市需要更多与工作、娱乐和文化场所连接的住房。这个新项目将迎合这一趋势,通过混合使用、高密度的设计原则,带来现代的住宅类型,促进福祉、社区价值和可持续的生活。
With the population of Birmingham growing, alongside a resurgent economy that is driving increasing amounts of international investment across finance, technology, and advanced manufacturing, there is a need for more housing in the city that is better connected to places of work, recreation, and culture. This new offer will cater to this influx, bringing a contemporary residential typology promoting well-being, community values, and sustainable living through mixed-use, high-density design principles.

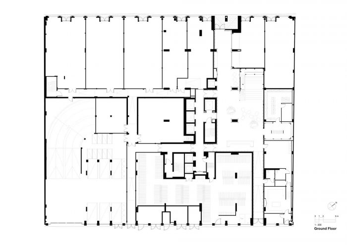
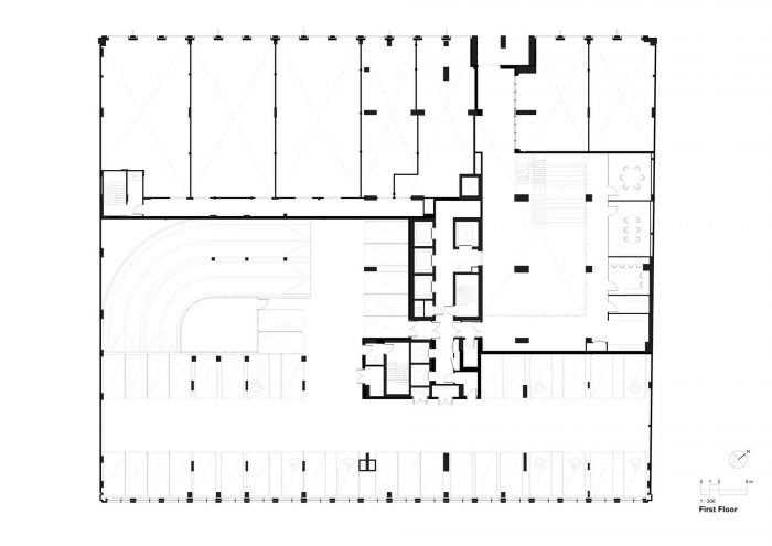
该建筑由481套新住宅组成,从宽敞的一居室到三居室的家庭住宅,还包括居民休息室、24小时健身房、私人餐厅、电影院和游戏室,以及一个200米长的跑道,位于俯瞰城市的屋顶平台上的1400平方米的户外空间。Mercian位于Broad街的中心位置--距离张伯伦广场只有五分钟的步行路程,张伯伦广场是城市新的商业地址,也是由Glenn Howells建筑事务所总体规划的--Mercian标志着城市中心的西部门户,是这个快速发展的社区持续更新的主要催化剂。
Comprising 481 new homes, from spacious one-beds to three-bed family homes, the building also incorporates a residents’ lounge, 24-hour gym, private dining room, cinema and games rooms, and a 200m running track set within 1,400 sqm of outdoor space on a rooftop terrace overlooking the city. With a central location on Broad Street - just a five-minute walk from Chamberlain Square, the city’s new business address, also master planned by Glenn Howells Architects – The Mercian marks the western gateway to the city center and is a major catalyst for the continuing regeneration of this fast developing neighborhood.

作为填充该地块的三层裙楼的一部分,灵活的商业单元的活跃正面现在与Broad街的地面相接,重新建立了该地区历史上的城市纹理,并改变了以前未被充分利用的空间。裙楼上还有一个三层高的门厅和接待区,以及店面和489个自行车存储空间,这些都促进了积极和可持续的旅行,减少了建筑整个生命周期的碳排放。
As part of a three-story podium filling the site’s footprint, an active frontage of flexible commercial units now meets Broad Street on ground level, re-establishing the urban grain that has historically characterized the area, and transforming a previously underutilized space. The podium is also home to a triple-height foyer and reception area, together with shopfronts and 489 cycle storage spaces, which promote active and sustainable travel, reducing the building’s whole life-cycle carbon emissions.



高大修长的塔楼耸立在预制石料覆盖的裙楼之上,被青铜金属片和玻璃板的动态组合所包裹。这个立面强调了建筑形式的垂直性和优雅性,带来了色调和纹理的对比,并参考了曾经位于该地块的前蒂明斯黄铜厂。为了减少体现能源,最大限度地减少场地浪费,并在市中心有限的场地上提供一致的质量,外墙是由3600多块单元化的面板构成的,这些面板是由现场外生产的预制装配而成。
The tall, slender proportion of the tower rising above the precast stone-clad podium is wrapped in a dynamic mix of bronze metal fins and glazed panels. This façade emphasizes the verticality and elegance of the building form, brings contrast in tone and texture, and references the former Timmins brass works once located on the site. To reduce embodied energy, minimize site wastage and deliver consistent quality on a restricted city center site, the façade was constructed from just over 3,600 unitized panels from a prefabricated assembly with offsite manufacturing.


作为21世纪的智能建筑,热舒适度、二氧化碳和照明条件的数据通过住户的应用程序自动进行实时跟踪,并可进行调整以满足福利标准和环境性能。该技术还允许住户实时监测他们的能源使用和成本,鼓励他们尽量减少这些。该建筑100%使用来自风能、潮汐能和太阳能的可再生能源。作为一个长期运营商,Moda Living每次批量购买12个月的可再生能源,将节省的成本转嫁给住户。
Designed as a 21st-century smart building, data on thermal comfort levels, Co2 and lighting conditions is automatically tracked in real-time through the residents’ app and can be adjusted to meet well-being standards and environmental performance. The technology also allows residents to monitor their energy usage and costs in real-time, encouraging them to minimize these. The building operates 100% on renewable energy from wind, tidal and solar sources. As a long-term operator, Moda Living bulk buys renewable energy for 12 months at a time, passing the cost savings onto its residents.

Mercian以按需出租的模式交付,将有助于确保伯明翰拥有新一代的住宅产品,以吸引和保留在该市工作的不断变化的人口。该建筑不仅可以利用振兴的城市基础设施,而且还可以利用社会基础设施,建立一个联系更紧密、更健康、更环保的城市。
Delivered on the build-to-rent model, The Mercian will help to ensure that Birmingham has the next generation of a residential offer to attract and retain the changing demographic of people working in the city. Not only tapping into rejuvenated city infrastructure, but the building also stands to tap into the social infrastructure of a better-connected, healthier, and greener city.





















Architects: Glenn Howells Architects
Area : 48225 m²
Year : 2022
Photographs :Greg Holmes, Fred Howarth
Manufacturers : Inasus, Techrete, Aspex, British Gypsum, Dean Wilson, Elements Europe, Flood Precast, Haring & Co., IKO Group, Schindler
Structural Engineer : WSP Norge, WSP
Landscape Consultant : OOBE
Acoustic Consultant : Hann Tucker Associates
Project Manager : RPS Group
Main Contractor : John Sisk & Son
Interior Designer : Naomi Cleaver
M&E Consultant : WSP Norge, WSP
M&P Consultant Stage 4 : Imtech + Hydrock
Partner & Concept Design : Dav Bansal
Director & Concept Design : Rob King
Senior Architectural Designer & Delivery : Maria Jurardo-Wiseman
Senior Architectural Technologist & Delivery : Ieva Kubiliute
Senior Architect & Delivery : Josh Alliington
Quantity Surveyor : Arcadis
Fire Consultant : Jensen Hughes
Cdm Coordinator : CDM Services
Approved Building Inspector : Acivico
City : Birmingham
Country : United Kingdom