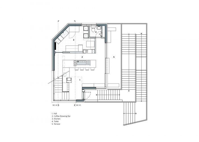
MEWB是一个源自Moredeepdonut的酿造专业咖啡品牌。空间的整体氛围与MEWB管理层的独特气质相似:别致而亲和,不慌不忙而又敏感。高大的不锈钢柱作为空间的中轴线,表达了他们的年轻和自信。此外,位于空间一角的甜甜圈抽屉和橙色的地板巧妙地包含了Moredeepdonut的身份,MEWB的成立。
MEWB is a brewing specialty coffee brand derived from Moredeepdonut. The overall atmosphere of the space is similar to the distinctive aura of MEWB management: chic yet affable, nonchalant yet sensitive. The tall stainless steel column acts as the central axis of the space and expresses their youth and confidence. Additionally, the donut drawer in a corner of the space and orange-tinted floor subtly contains the identity of Moredeepdonut, MEWB’s inception.




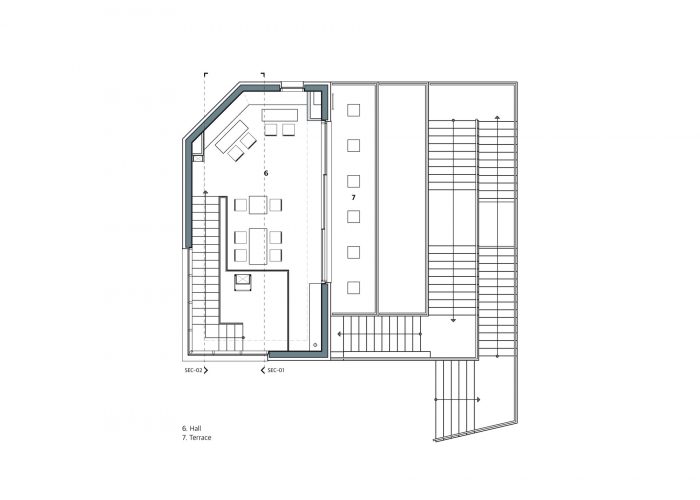
空间的主要概念是 "轴和连接"。通过空间的柱子和柜台设计,它同时具备了 "垂直连接 "和 "水平连接 "两个方面。横跨整个空间的主柱既表达了水电局的身份,又执行了各种功能。这根柱子在视觉上连接了4楼和5楼,使空间的开放感最大化,并且通过在一根柱子的不同部分放置各楼层的扬声器,它还能实现听觉的扩展。柱子的使用是为了诱导人们将两层楼的有限空间视为一个大块。连接甜甜圈抽屉、柱子和酿酒角的栏杆同时哄骗顾客的脚步,使其水平移动,同时创造一个整体空间的叙述。
The main concept of the space is “axis and connection.” Through the space’s column and counter design, it possesses both “vertical connection” and “horizontal connection” aspects. The main column that spans the space both expresses MEWB’s identity as well as executing a variety of functionalities. The column visually connects the 4th and 5th floors to maximize the space’s sense of openness, and by housing the speakers for each floor on different segments of one column, it also enables auditory expansion. The usage of the column was intended to induce perceiving two floors of limited space as one large mass. The bar that connects the donut drawer, column, and brewing corner simultaneously coaxes customers’ foot traffic to move horizontally while simultaneously creating a narrative of the space overall.


同时,建筑的弧形窗台和独特的白色外墙,在汉纳姆-戴罗的天桥上行驶时可以看到,吸引了外面路人的目光。从视觉上看,立交桥的高度接近于与相关建筑的4、5层持平,因此,尽可能利用能够一眼望到空间的内部和外部区域的优势。顾客可以先从建筑外间接地体验这个空间,然后在咖啡馆内有另一种连接性的体验。
Also, the building’s curved windowsills and distinctive white external wall that can be seen while driving on the overpass of Hannam-daero catch the eye of passersby outside. The height of the overpass is, visually, close to being level with the 4th and 5th floors of the building in question, and thus, the advantage of being able to gaze at both the internal and external areas of the space with one look was used as much as possible. Customers can experience the space indirectly from outside the building first, and then have another connective experience inside the café.


通过4楼的入口进入咖啡馆后,人们会被引入到空间的象征,银色的柱子和橙色的地板。由于该建筑没有电梯,顾客不得不费尽周折地走上几层楼。
Upon stepping into the café through its 4th-floor entrance, one is introduced to the symbol of the space, the silver column, and the orange-tinted floor. Since the building has no elevator, customers have to go through the trouble of going up quite a few flights.

由于天花板很高,从外面的立交桥上看不到空间的地板,顾客基本上只有在到达咖啡馆入口的高度时才会发现空间的一个隐藏特征。它被设计成对顾客的一种奖励。
As the space’s floor can’t be seen from the overpass outside due to the substantial ceiling height, customers essentially discover a hidden feature of the space only when they reach the heights of the café’s entrance. It is designed to act as a kind of reward for customers.













Architects: KKOL Studio
Area : 106 m²
Year : 2022
Photographs :Donggyu Kim
Construction : HYUN DESIGN
Design Team : Subin Haam, Hyeji Bae, Euisun Yoon
Client : MOREDEEPDONUT
City : Yongsan-gu
Country : South Korea