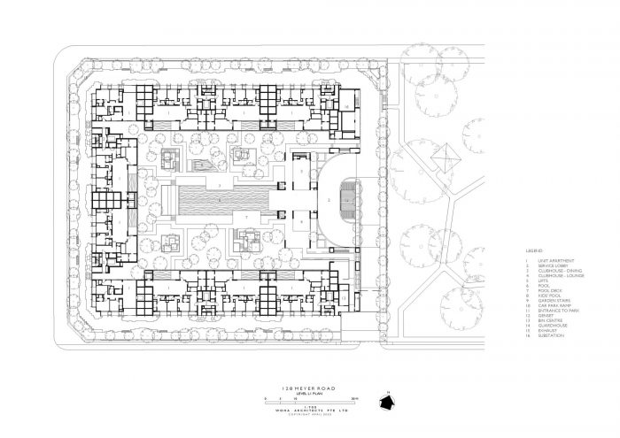
沿着新加坡东部住宅区的著名地址Meyer路,坐落着一个公寓项目,其中有56个豪华住宅单位,毗邻一个1公顷的森林公园。这座5层楼高的楼盘呈 "C "字形排列,住宅可以看到50米乘75米的内部森林花园,并延伸到附近的公园。
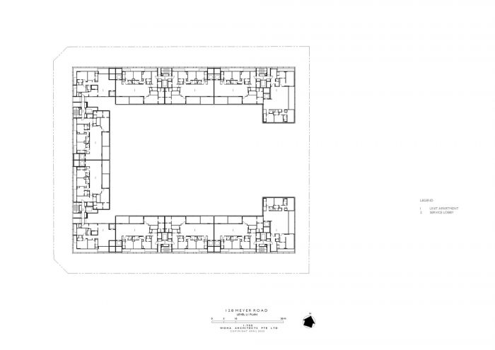
Along Meyer Road, a prestigious address along Singapore’s eastern residential enclaves sits a condominium development housing 56 luxury dwelling units adjacent to a 1-hectare forested park. The 5-storey with attic development is arrayed in a contiguous ‘C’ configuration with residences looking out onto a 50m by 75m internal forested garden that spills out onto the adjacent park.



生活空间延伸到大的户外房间,依偎在高大的森林树木中,坐落在一个正式的花园中。梯田花园和水体层层叠叠地落到较低的地面到达层,将地下的到达大厅和设施开放给自然光、通风和绿色植物。
Living spaces extend onto large outdoor rooms nestled amongst tall forest trees set amidst a formal garden. Terracing gardens and water bodies cascade down onto a lower ground arrival level, opening up the subterranean arrival lobbies and facilities to natural daylight, ventilation, and greenery.


从街道上看,该建筑是按照传统城堡的比例设计的,其庄严的外墙是由定制的GFRC百叶窗和镶板组成的,包围着整个造型。百叶外墙是倾斜的,以确保从街道层面的单位的隐私。外墙装饰延伸到屋顶,创造了一个雕塑般的抽象围墙。
From street level, the building is scaled to the proportions of a traditional Chateau with a stately façade of customized GFRC louvers and paneling that envelops the entire form. The louvered façade is inclined to secure privacy for units from street level. The façade finishes extend contiguously onto the roof, creating an envelope that is sculptural and abstract.



在内部,森林花园被木制百叶窗包裹着,这些百叶窗为住宅提供了温暖和特色的宁静的花园空间。在花园里,一个长长的游泳池沿着森林公园的主要轴线集中设置,反映了高大的树木和开发项目的温暖外墙。游泳池被客人和娱乐设施所俯瞰,这些设施包括一个宽敞的20个座位的餐厅,一个舒适的休息室,以及户外活动平台。
Internally, the forested garden is cocooned by timber blinds that screen the residences imbuing the tranquil garden spaces with warmth and character. Within the garden, a long pool set centrally along the main axial views of the forested park reflect the tall trees and warm facades of the development. The pool is overlooked by guest and entertainment facilities that house a generous 20-seater dining room, a cozy lounge, and outdoor activity decks.


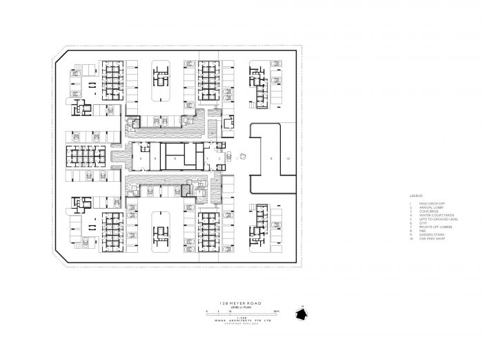
主要的落脚点位于地下水位较低的院子内。到达大厅通向梯田花园、游泳池和柱廊式人行道,通往私人住宅大厅和现代健身房,可以看到雕塑般的水球场。花园楼梯设置在梯田景观中,从下部庭院通往上部花园。
The main drop-off is located within the lower groundwater courtyards. The arrival lobby opens out onto terracing gardens, pools and a colonnaded walkway leading to the private residential lobbies and a modern gym with views out to a sculptural water court. Garden staircases set within terracing landscaping lead up to the upper gardens from the lower courtyards.


所有的住宅都可以通过私人车道、停车场和底层的大厅单独进入。每个住宅都有直接的 "个人 "电梯通往其上层单位,这给居民带来了独特的印象,他们的到家体验从他们把车停在下层的私人分层地段开始。车道是自然采光的,通向水景庭院。
All residences are individually accessed via a private driveway, carpark, and lobby on the lower ground. Each of these residences has direct ‘personal’ lift access to their upper-level units that extend the impression of exclusivity for residents where their home arrival experience begins the minute they park their vehicles on private strata lots on the lower ground. The driveways are naturally lit and open out to the water courtyards.


典型的住宅有一个12米长的起居区,全高的大板玻璃窗,向森林般的内部花园开放。自动百叶窗允许业主完全控制隐私和采光,确保保护花园的远景。
Typical residences feature a 12m long living area with full height large panel glazing that opens out to the forested internal garden. Automated Venetian blinds allow owners full control over privacy and daylighting, ensuring the long views out onto the gardens are protected.







Architects: WOHA
Area : 15684 m²
Year : 2022
Photographs :Patrick Bingham-Hall, Darren Soh
Manufacturers : Kebony, Kao Lee Aluminium Industrial Pte Ltd, Kone, Projalma, SHY Zip, Skk Paints, Warema
Landscaping : Ramboll Studio Dreiseitl
Interior Construction : Index Design Pte Ltd
Lighting Consultant : Light Collab LLP
Quantity Surveyor : Threesixty Cost Management Pte Ltd
M&E Engineer : DP Engineers Pte Ltd
Acoustic Consultants : Radian Acoustics Pte Ltd
Main Contractor : Unison Construction Pte Ltd
Interior Design : Yabu Pushelberg
C&S Engineer : KCL Consultants Pte Ltd
Country : Singapore