我们与这间公寓的故事开始于我们客户生活中的一个巨大变化的时刻。在同一间公寓里住了20多年后,他们的孩子搬走了(还有新孙子的到来),他们觉得是时候做一些改变了。因此,我们被委托将这套建于60年代的公寓改造成一个阁楼,其中有一个新的套房,一个供孙子使用的卧室--也可以用作家庭办公室--以及一个宽大舒适的客厅,光线非常好,与厨房融为一体,可以满足与朋友聚会的需要。
Our story with this apartment begins in a moment of great changes in our client's lives. After having lived in the same apartment for more than 20 years and having their children moving out (and also the coming of new grandsons), they felt that it was time to make some changes. So we were commissioned with the mission of remodeling this apartment built in the 60s into a loft, with a new suite, a bedroom for the grandsons - which can be also used as a home office - and a wide and comfortable living room, very well-lit and integrated with the kitchen to accommodate get-together with friends.




从建筑学的角度来看,设计的指导思想是将各个房间的定义放在一起,使之成为一个流动的、综合的、开放的空间,不同用途之间没有冲突。
From an architectural point of view, the design was guided by the definition of the various rooms that were put together to make a fluid, integrated and open space, with no clashes between the different uses.


我们试图为室内创造一个新的背景,从战略上讲,就像戏剧舞台的背景一样,将作为一个存储空间,可以保存日常使用的物品(衣服、餐具等),同时将社交区域与私密的房间分开。这个背景是用木制品构思的,从起居区开始,围绕着包含社交卫生间的混凝土体量向前移动,延伸到洗衣房,最后到达厨房。在后者,灵感来自于1951年密斯-凡-德-罗设计的著名的法姆沃斯住宅,木制品在一个缝隙中打开,以适应厨房的4.5米长的陶瓷台面和金属橱柜。
We sought to create a new background for the interior which, strategically, just as the background of a theatre stage, would function as a space of storage that can keep daily use belongings (clothing, tableware, etc) and separate the social areas from the intimate rooms at the same time. This background was conceived in woodwork and begins in the living area, moves ahead surrounding the concrete volume that contains the social bathroom and stretches through the laundry, finally reaching the kitchen. In the latter, inspired by the well-known Famrworth house, by Mies van der Rohe, in 1951, the woodwork opens in a gap to fit the 4,5m long ceramic countertop and metallic cabinets of the kitchen.

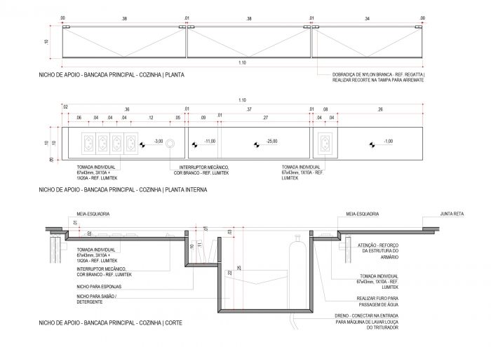
为了与这个木质背景形成对比,这个由混凝土浇铸而成的立方体容纳了浴室和厨房设备,位于空间的正中央,作为一个中心参考,帮助组织连接一个房间和另一个房间的路径。作为一个象征性的观点,这个立方体被想象成住宅的心脏,它容纳了烤箱(这是对旧壁炉的参考)和粉红色的内部浴室,这是对客户童年记忆的参考。
To contrast with this wooden background, the cube made of cast in place concrete that hosts the bathroom, and the kitchen equipment is located right in the center of the space, serving as a center reference that helps to organize the paths that connect one room to another. This cube was imagined, as a symbolic point of view, as the heart of the home, which shelters the oven (which is a reference to the old fireplaces) and a pink interior bathroom, that is a reference to the childhood memories of the clients.

客户的情况允许在改造工程中使用许多非常规的解决方案,这也要求在设计和执行方面都要有高水平的细节,并导致了高审美的结果。
The clients' profiles allowed the use of many unconventional solutions in remodeling works, which also demanded a high level of detailing both in design and execution and resulted in a high aesthetic outcome.

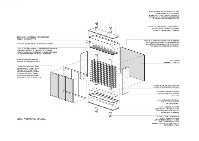
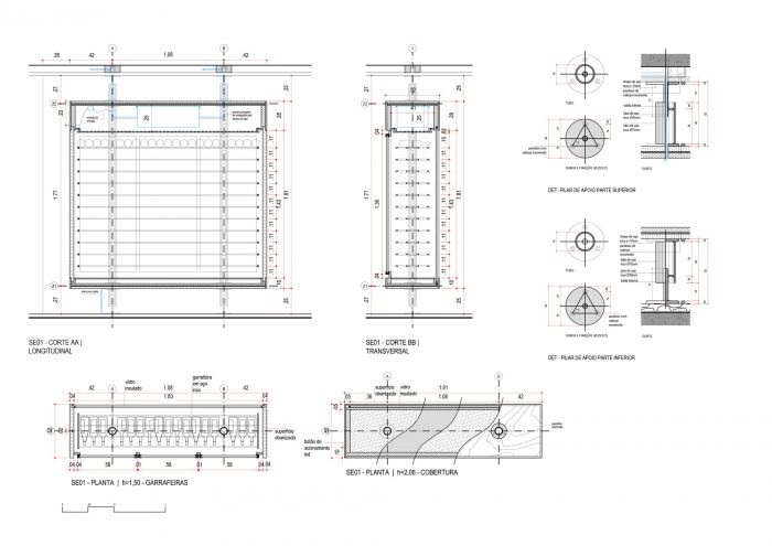
另一个例子是使用木制品来组织和塑造房间,而不是用砖石或干墙,这样可以更好地利用空间。最大的挑战是酒窖的解决方案,因为我们希望完成的审美结果加上结构、设备和空调的技术需求。
Another example is the use of woodwork to organize and shape the rooms instead of masonry or drywall, allowing better utilization of the space. The biggest challenge was the solution for the wine cellar due to the aesthetic outcome we wished to accomplish added to the technical need of structure, equipment, and air conditioning.

材料的选择是为了使空间与现有的元素相融合:树梢的景色,镶木地板,以及用建筑的大木板铸造的混凝土柱。家具和装饰的定义也考虑到了客户已经拥有的物品和艺术品。
The materials were chosen to make space blend with the existing elements: the view of the treetops, the parquet flooring, and the concrete columns cast with large wood planks of the building. Furniture and decoration were also defined taking the objects and artwork already owned by the clients into consideration.
















































Architects: Bruno Kim Arquitetura, Firma Arquitetura
Area : 150 m²
Year : 2019
Photographs :Vivi Spaco, Manuel Sá
Manufacturers : Air-Conditioning, Carpet, Civil work, Countertops, Fixtures, Furniture, Kitchen cabinets, Kitchen equipment, Lighting, Metalwork, Shading, Wine Cellar, Woodwork
Architects In Charge : Carlos Eduardo Murgel Miller (Firma arquitetura), Bruno Jin Young Kim (Oitentaedois)
City : Pinheiros
Country : Brazil