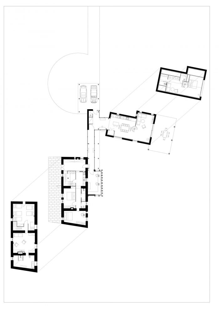
这个项目包括修复佩奇地区的一个传统法国农舍和改造附近的谷仓。业主是一个有六个孩子的家庭,他们希望为周末和假期的家庭聚会创造一个温暖舒适的空间。我们不仅问自己如何能解决这个实际的挑战,而且还反映了连接这两个结构的最佳方式。
This project consists of the restoration of a traditional French farmhouse from the Perch region and the transformation of the barn located nearby. The owners are a family with six children who wanted to create a warm and comfortable space for family gatherings on weekends and during holidays. We asked ourselves not only how we can solve this practical challenge but also reflected best to connect the two structures.






位于佩尔什自然公园中心的一片郁郁葱葱的林地中,我们希望保留在房子和谷仓之间的田野上行走时对花园的美丽眺望。我们决定,前者将是一个专门的儿童空间,而谷仓将作为公共区域和厨房,可以看到周围乡村的广阔景色。
Located in a lush woodland in the heart of the Perche natural park, we wanted to preserve the beautiful lookout over the garden as you walk through the fields between the house and the barn. We decided that the former would be a dedicated children's space while the barn would serve as the communal area and kitchen, with an expansive view of the surrounding countryside.


它还将包含一个安静的空间,在二楼为父母提供一个房间。这两座建筑之间的联系是由一个 "球状关节 "创造的,它覆盖了主入口并为两个生活空间服务。我们将这两座建筑之间的联系设想为一座天桥,视觉上轻盈而简约,使它们之间的物理连接成为可能。我们的灵感来自于日本传统的有顶桥,由杆子和双坡屋面穿插而成。
It will also contain a quiet space with a room for the parents on the second floor. The connection between the two edifices is created by a “ball joint” that covers the main entrance and serves both living spaces. We envisioned the link between the two structures as a footbridge, visually light and minimalist, enabling a physical connection between them. We were inspired by traditional Japanese covered bridges, interspersed by poles and a double slope roofing.


我们的目标是创造一个轻盈和谨慎的体量,与现有的建筑相匹配,而不是干扰原有的材料,同时保持对周围自然和植被的开放视野。我们对日本人的重新诠释采用了铺设在地面上的体量的形式,由一个木质框架组成,上面覆盖着非常薄的双坡锌屋顶,用一个悬空的地方欢迎客人,并通往为两个空间服务的主入口。框架是基于相同的重复性框架,由圆形的杆件支撑着轻质的锌盖。
We aimed to create a light and discreet volume that would match the existing building instead of interfering with the original material, whilst maintaining an open view of the surrounding nature and vegetation. Our reinterpretation of the Japanese takes on the form of a volume laid on the ground, made of a wooden frame covered with a very thin double sloped zinc roof, welcoming the guest with an overhang and access to the main entrance that serves both spaces. The frame is based on the same repetitive frame made up of round pols supporting a light zinc cover.

走廊和入口的不同宽度意味着重复的结构框架交替出现在内部和外部,这消除了限制。所有的墙都是全高的玻璃,只有主入口的一部分是用锌层覆盖的,后面隐藏着一个浴室和一个更衣室。烟灰色的锌板是对木质框架的一种提醒,选择它是为了尽可能地隐蔽,以消除这个新增的体积,给人的印象是它像一个嫁接的肢体一样出现了。
The differing widths of the hallway and the entrance mean that the repeating structural frame appears alternatively inside and outside, which erases the limits. All walls are glazed to their full height, saved for a part of the main entrance, which is covered with zinc cladding, behind which a bathroom and a dressing room are hidden. The anthracite zinc is a reminder of the wooden frame and was chosen in order to be as discreet as possible to erase this added volume, giving the impression that it has emerged like a grafted limb.

我们还试图将这一新增体量的影响降到最低,以保持原有的田园风光和宁静气氛。一个木制的棚子被改造成了一个办公室,采用了同样的整合逻辑,在现有的木制框架后面插入了玻璃。一旦进入室内,新旧之间的差异就不再明显,这要归功于木材的存在和延伸到主入口的连续木质镶木地板。
We also sought to minimise the impact of this added volume in order to preserve the pre-existing bucolic and peaceful atmosphere. A wooden shed has been transformed into an office using the same logic of integration, with glazing inserted behind the existing timber frames. Once inside, the differences between old and new are no longer visible, thanks to the presence of wood and of a continuous wooden parquet extending to the main entrance.

















Architects: clpp architectes
Area: 100 m²
Year: 2019
Photographs: VUENVILLE - DAVID COUSIN MARSY
Manufacturers: JACOB DELAFON, Stuv, ACOVA, Armony Cucine, VM Zinc
Lead Architects: Pier Paolo Bonandrini, Clara Georgelin - Conan
City:Nogent-le-Bernard
Country:France