词语是根,就像树木一样。线条是根,架构与字相同。树,是崛起的孩子。建筑是生活的边界。生活在内部和外部之间。每个元素都是一个术语,当与其他元素搭配时,创造出一个空间的句子。
Words are rooting, just as do trees. The line is the root and the architecture the same as the word. The tree, as the rising child. The architecture is the border of living. Living between inside and outside. Each element is a term that, when collocates with others, creates a sentence of space.





中脊别墅被安置在农田中心细长但繁荣的花园之间,为一个经常聚会的三口之家。一个十二岁的孩子,是故事的高潮,她的叛逆精神,加上她不断训练成为专业游泳运动员,以及她偶尔对隔离和隐私的渴望,一直是她父母关注的中心,然后是建筑师。
Mid-ridge Villa has been settled between a slender but prosperous garden in the heart of the farmlands, for a family of three who is always gathering. A twelve-year-old child, the climax of the story, and her rebellious spirit, along with her constant training to become a professional swimmer and her occasional desire for isolation and privacy, has been at the center of her parent's attention and then the architects’.



母亲的诗意天性使长廊成为一种必需品,因此树木间的空间和方便的通道被选为问题的最佳答案。另一方面,由于母亲的痴迷,为了提升私人区域的隐私事项,游泳池变成了私人和公共区域之间的主要差距。
Mother's poetic nature has made promenading a necessity, therefore spaces among the trees and easy access to them have been selected as the best answer to the question. On the other hand, to elevate privacy matters in private zones due to the mother’s obsession, the swimming pool turned into the main gap between the private and public zones.



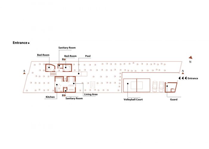
花园里的果树,为了尊重环境而必须保持,是设计的限制之一,在组织树木的空地(山脊)之间的质量的过程中,变成了一个机会。建筑师将这些空地考虑为住宅和日常活动的场所。
Fruitful trees in the garden, which were necessary to maintain in order to respect the environment, is one of the design limitations that has turned into an opportunity during the process of organizing the mass between the empty spaces (Ridge) of the trees. The architect took these empty lots into consideration as a dwelling and daily activities.


同时,游泳池位于土地的一个山脊上,作为区域的分界线,在质量之间有助于保持孩子的健康安全,并强调了所需的隐私。
The pool, meanwhile, located on one of the ridges of the land functions as a divider of zones, being between the mass helps to keep the health of the child safe and emphasizes the privacy needed.

所有这些边界创造了 "中脊"。空隙并不总是解释距离,有时它们会增加质量的灵活性,创造出舒适的孤独角落。这个特点可以从建筑的公共区域出现的缝隙中看出来,因此划分了部分,创造了更多的空间来容纳居住者。
All these borders created the Mid-Ridge. Gaps do not always interpret the distance, sometimes they add flexibility to the mass and create cozy corners of solitude. This feature can be looked at in the gaps that have been appeared in the public zone of the building, consequently dividing the portion and creating more space to accommodate habitants.

砖块体量在隐蔽区域的并置,旨在尊重自然材料的真实质量,并强调人类与自然在时间上的关系。中脊别墅由赭石砖制成,与景观的色调相辅相成:蓝色的天空,绿色的植被,黄色的沙地,因此,是一座红色的房子。
The juxtaposition of the brick volumes in a hidden zone seeks to honor the authentic quality of natural materials and highlights the relationship between human beings and nature over time. Mid-ridge villa is made of ochre brick that complements the palette of the landscape: blue sky, green vegetation, yellow sandy ground, and, therefore a red house.


















Architects: EZ Studio
Area: 150 m²
Year: 2021
Photographs: Ali Gorjian
Manufacturers: Azarchin, KELAR, Kazemi Wokshop, Khorshid Gallery, Moosavizadeh Kashi Paz, Zibasazanesfahan-Majid Tahmasebi
Lead Architect: Pedram Ezadi
Green Space Consultant: Goodarzi
Design Team:Foroogh Haddad
Client:Kasra Bagheri
Engineering:R.Saadat
Supervision:Pedram Ezadi
Execution:Pedram Ezadi
Architects:EZ Studio-Pedram Ezadi Boroujeni
Graphic:Studio ADD
City:Ghahderijan
Country:Iran